Mestské vily na Búdkovej
Niekoľko rokov dozadu sa našlo veľa solventných investorov, ktorý v sebe objavili developerské schopnosti a pustili sa do výstavby bytov. S prasknutou realitnou bublinou mnohí z nich flexibilne prepracovali svoj koncept, či už na papieri, alebo v hrubej stavbe, aby dokázali na realitnom trhu zaujať. Projekt mestských víl na Búdkovej v Bratislave je však celkom iný príbeh.
Horský park je bezpochyby jedna z najlukratívnejších častí Bratislavy. Nie je prehustená neriadenou zástavbou, poskytuje výhľad na všetky svetové strany a do mesta aj na hlavné dopravné napojenia je to skutočne len kúsok. Zhodnotiť pozemok v takejto lokalite si však v časoch, ktoré označujeme ako krízové, vyžaduje veľkú dávku nadhľadu a odvahy.
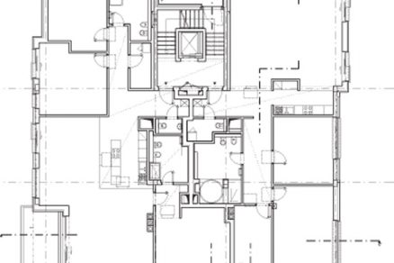
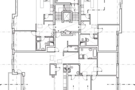
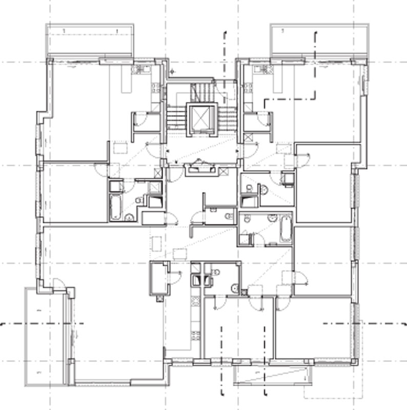
Na výsledok realizácie šiestich mestských víl mali zásadný vplyv viaceré faktory. Prvým z nich boli regulatívy územného plánu zóny Machnáč, z ktorých jednoznačne vzišla rozvoľnená nízkopodlažná zástavba. Jednotlivé objekty majú päť podlaží, posledné je vždy uskočené. V dostatočných odstupoch sú vily vždy mierne pootočené k susednej. Podarilo sa tak dosiahnuť dynamické prostredie a jedinečnosť polohy každého bytu a zároveň ľahkú orientáciu a priestorovú čitateľnosť. Areálové sadovnícke úpravy dopĺňa masív zelene susediacej Gaštanovej záhrady.
Druhým bola samotná poloha na severnom inverznom svahu so svojimi svetelnými podmienkami. Autori projektu s investorom celkom prirodzene rozvrhli bytové jednotky tak, aby bola každá orientovaná minimálne na dve, ideálne na tri svetové strany. Následne bolo jasné, že na typickom podlaží možno umiestniť maximálne dva byty. Vďaka svahu bolo navyše možné vybudovať suterénne podlažie na garáže s pohodlným vjazdom.
Ďalším, azda najpodstatnejším faktorom bolo rozhodnutie investora postaviť plnohodnotné mestské bývanie vysokej kvality s parametrami bývania v rodinnom dome. Podlahová plocha dvoj- až päťizbových bytov je naozaj veľkorysá. Ku každému z nich prináleží pobytová terasa alebo balkón a v celom uzatvorenom areáli je dostatok parkovacích miest v garážach alebo na teréne pre návštevy. Ako nám povedal investor Ing. Peter Bombík: „Náš projekt si svojich klientov našiel. V súčasnosti máme predaných 60 % bytov. Dokonca si myslím, že ani cesta holobytov nie je v tejto kategórii úplne najlepším riešením. Ponúkame možnosť dokončiť byty v štandarde podľa požiadaviek klienta, respektíve jeho interiérového architekta. Na lepšiu názornosť sú pripravené aj vzorové byty.“
–>–>
Mestské vily Búdková, Bratislava            Miesto: Mestská časť Bratislava-Staré Mesto, zóna Machnáč  | 
![]()  | 
![]()  | 
Koncept a konštrukcie
Podstatnú úlohu zohral, samozrejme, aj tím skúsených architektov, ktorí pochopili ideu zadania a našli s investorom spoločnú reč. Objemovo jednoduché kubusy s vyváženými proporciami ozvláštňuje jemné zalomenie strechy. Nadčasový architektonický koncept dosiahli architekti premyslenou kompozíciou okenných otvorov a citlivého vyberania alebo pridávania hmoty v podobe terás a balkónov. Fasády oživuje obklad z alucobondu alebo neomietaného muriva, vždy s iným zemitým farebným odtieňom na jednotlivých objektoch. 
Celkovo je farebnosť veľmi striedma, skôr sa dostávajú do popredia použité materiály – tak v exteriéri, ako aj v interiéri. Ing. arch. Peter Jančo dodal: „Skutočnú hodnotu hmotovo-priestorovej koncepcie predstavuje scéna nového obytného priestoru tvorená jemne rotujúcimi hmotami mestských víl. Priestorovú kvalitu riešenia zdôrazňuje kultivované architektonické stvárnenie a kvalita použitých materiálov a detailov a, samozrejme, samotná poloha v obkolesení zelene.
Použili sme komunikačné jadro v podobe trojramenného schodiska s vloženým výťahom v zrkadle. Dosiahli sme tým odhlučnenie, čo zvyšuje komfort bývania, a napokon aj zo schodiskového priestoru ponúkame obyvateľom príjemné výhľady do okolia.“
![]()  | 
![]()  | 
Objekty sú založené na základových roštoch. Suterén tvorí liaty železobetón. Stropy sú monolitické a nosné steny vyšších podlaží a vertikálnych jadier železobetónové. Tehlové výplňové murivo je zateplené minerálnou vlnou. Pod obkladmi sú prevetrávané fasády. Do každého bytu možno namontovať klimatizáciu a v každom je priestor na kozub. V hygienických priestoroch je podlahové vykurovanie, v ostatných sú buď podlahové konvektory pri výstupoch na terasy, alebo radiátory podľa výšky parapetu. Transparentné zábradlia balkónov sú z bezpečnostného skla s antikorovým držadlom.
Na tomto projekte je najsympatickejší postoj investora, ktorý presne vie, kam sa chcel realizáciou mestských víl zaradiť. Nedal sa odradiť nepriaznivou situáciou na trhu a nepoľavil v nárokoch na kvalitu. Výsledkom je, že v hľadaní klientov je trpezlivý a byty si postupne nachádzajú svojich majiteľov.
Mária Nováková
Foto: Dano Veselský
Dokumentácia: Brumi Uno Consulting
 Mestské vily, Búdkova, Bratislava – odborným okom
Uprostred mesta, a pritom v prírodnom prostredí. Takto na nás pôsobil komplex obytných budov nazvaný Mestské vily. Zámerom stavebníka bolo vytvoriť kvalitné bývanie na úrovni rodinných domov, ale so službami ako v bytovom dome (správa technologických zariadení, údržba sadových úprav, strážna služba v areáli a podobne). Ideálna kombinácia pre ľudí, ktorí túžia mať veľkorysé bývanie, ale nemajú čas a chuť riešiť množstvo detailov pri stavbe a následne zabezpečovať chod domu od vykurovania až po odhadzovanie snehu spred garáže. Stavba sa nachádza v kopcovitom teréne. Skalné podložie striedajúce sa s menej pevnými časťami kládlo nároky na zakladanie z pohľadu zabezpečenia rovnomerného sadania. Preto projektanti zvolili roštové základy podopreté miestami šachtovými piliermi. Horná stavba je riešená tradičnými systémami – železobetónové stropy a pilierové steny, murovaná tehlová výplň. Fasáda je zaujímavá svojou členitosťou, ale aj kombináciou rôznych materiálov. Nás zaujal hlavne tehličkový obklad. Podľa slov investora je z rezaných tehál. Pre svoju hmotnosť je obklad fixovaný na oceľovú mriežku kotvenú cez tepelnú izoláciu do obvodového muriva. Toto je technológia, ktorá si vyžaduje precíznosť a dodržiavanie technologickej disciplíny, aby systém dobre odolával poveternostným vplyvom. V záujme predísť problémom investor zveril túto časť prác renomovanej firme, ktorú mal overenú z iného svojho projektu. Zdá sa ale, že pri voľbe dodávateľa kontaktného zatepľovacieho systému už nemal až takú šťastnú ruku. Na niektorých miestach fasády sú viditeľné praskliny (obr.). Komfort bývania je vytvorený architektonickým riešením a použitím materiálov na vysokej úrovni, ale aj systémovými riešeniami technológií. Každý dom má svoju vlastnú kotolňu a každý byt vlastnú odovzdávaciu stanicu tepla. Byty sú vybavené podlahovými konvektormi v kombinácii s parapetnými konvektormi. V letnom období možno každý byt pripojiť na centrálny chladiaci systém. Byty sú vybavené optickou telekomunikačnou prípojkou. K celkovej pohode bývania prispeje aj kultivované prostredie vytvorené sadovými úpravami, o ktoré sa stará profesionálny záhradník.             Ing. Marián Kaššák Autor pracuje ako stavebný a technický dozor najmä na veľkých projektoch bytových domov.  | 
Článok bol uverejnený v časopise ASB.
													












Mestské vily, Búdkova, Bratislava – odborným okom
						
						
						
						
						
						


