Maximálny komfort na minimálnej ploche – Bytový dom Turecká
Bývanie v niektorej z atraktívnych novostavieb hlavného mesta je pre mnohých lákavé, no často finančne nedostupné. Situácia núti mladé rodiny i ostatných obyvateľov túžiacich po vyššom komforte uvažovať nad bývaním vo vzdialenejšej lokalite. Hoci má táto voľba niekoľko nevýhod ako dochádzanie za prácou či vyhradenie času na cestovanie, nižšie ceny nehnuteľností vyvažujú tieto zápory vyšším štandardom bývania.
Jedným z projektov, ktorý zhodnocuje všetky benefity menšieho mesta, je bytový dom Turecká. Nachádza sa priamo v centre mesta Senec. Medzi výhody patrí pešia dostupnosť rozličnej občianskej vybavenosti priamo v centre, menšie meradlo mesta s príjemným priestorom na rodinný život či dobrá dopravná nadväznosť na Bratislavu a okolie.Hlavnou ideou bytového komplexu je maximálne využitie plochy pre bývanie. Keďže pozemok s výmerou 775 m2 je pomerne úzky a jeho využitie vopred dané okolitou zástavbou a ostatnými limitmi, išlo o vopred dobre premyslené riešenie.
Projekt ukrýva jedenásť mezonetových bytov s terasou a šesť bytov na prízemí s predzáhradkou. Bonitu projektu zvyšuje zelené patio na druhom poschodí a komunikačné prepojenie presvetlené priamo z exteriéru. Ide o malometrážne bývanie, čo však pri rozvrhnutí priestorov bytu nie je citeľné. Samotný mezonet zvyšuje štandard bytu rozdelením dennej a nočnej časti a nadobúda tak charakter menšieho rodinného domu. Dispozície sú jednoduché, čisté, s možnosťou variability priestorov. Hmota stavby je navrhnutá v jednoduchých minimalistických líniách v kontraste s farebnými akcentmi fasádneho obkladu alucobond a výraznými zasklenými plochami. Bytový dom patrí do energetickej triedy B.
Bytový dom Turecká je situovaný v centre mesta Senec na ulici Turecká, v blízkosti pamiatkovo chráneného „Tureckého domu“. Pôvodná zástavba má rozmanitý, až chaotický charakter. Nový projekt tak vnáša čistými líniami kontrast a zároveň poriadok.
Overenie hmotovej štruktúry vo vzťahu k okolitej zástavbe a uličnému pohľadu prebiehalo od začiatku návrhu projektu pomocou modelu..
Uličný pohľad
Pohľad na predzáhradky bytov na dolných podlažiach
Komunikačné prepojenie s jednoduchou orientáciou a prirodzeným denným svetlom
Zelené átrium na 2. NP
Na prezentáciu finálneho riešenia boli vyhotovené reprezentačné vizualizácie, ktoré vystihujú kvality stavby a jej budúci vzhľad.
Proces výstavby bytového domu. Pozdĺžnu líniu ulice hmota vhodne dopĺňa a plynule nadväzuje na okolitú zástavbu.
Čelný pohľad z ulice
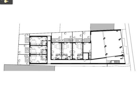
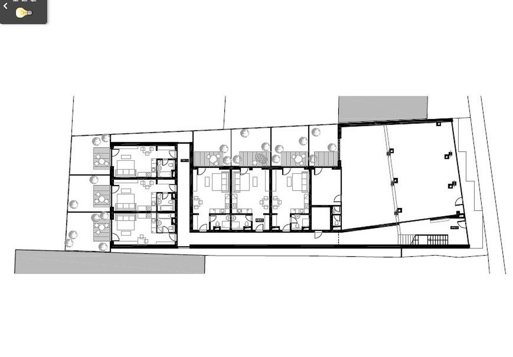
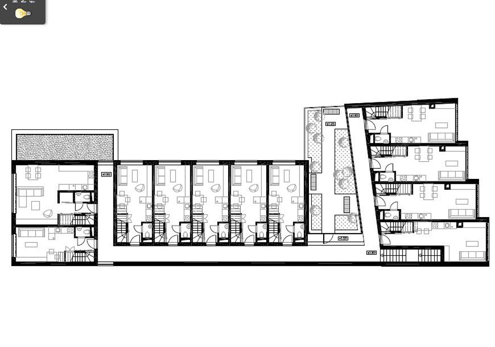
1.NP
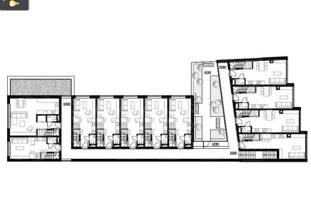
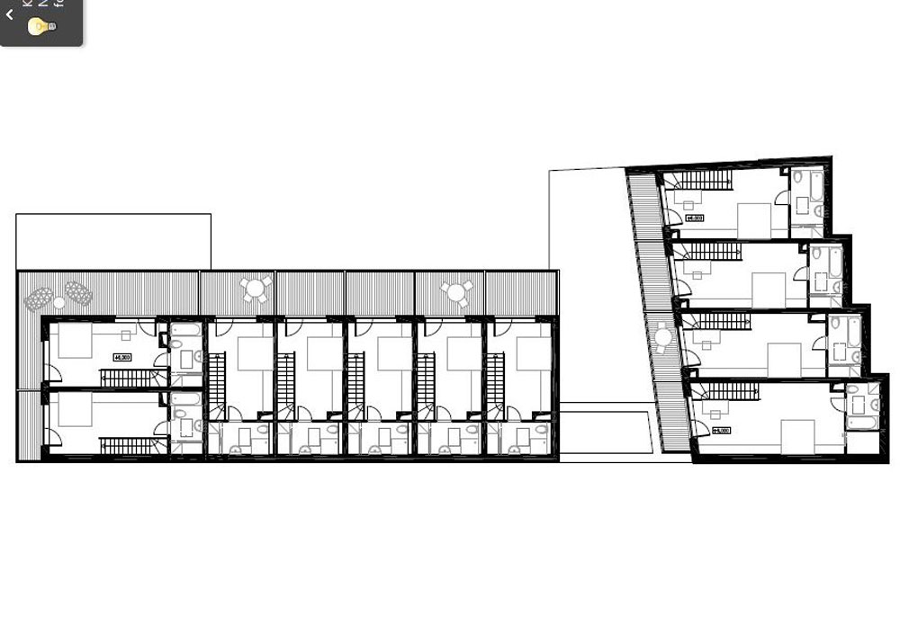
2.NP
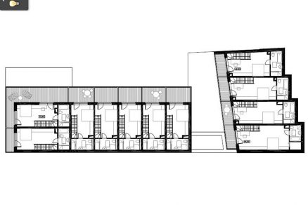
3.NP
POZDĹŽNY REZ
Dokumentácia prezrádza dispozície jednotlivých bytov. Hoci je obytná plocha minimálna, poskytuje dostatočný komfort na príjemné bývanie. Jednoduché komunikačné prepojenie uľahčuje orientáciu v bytovom dome.
Mezonetové byty s rozdelenou dennou a nočnou časťou vytvárajú spolu s exteriérovými priestormi charakter rodinného domu. V príklade je použitý dvojizbový byt s výmerou 46 m2.
Bytový dom vo finálnej podobe. Ako pri jednej z mála realizácií nesklamalo porovnanie vizualizácií s finálnou podobou. Realizátorom projektu bola firma Stav-Color investičná.
Autorky článku: Ing. arch. Paulína Oravcová, Ing. arch. Soňa Pohlová
Autori projektu: Nice Architects, Ing. arch. Tomáš Žáček, Ing. arch. Soňa Pohlová
Autor vizualizácií: Ing. Tomáš Žáček
Autor fotografií: Ján Mazúr
Investor, stavebník, generálny dodávateľ : Stav-Color investičná, s. r. o., Ul. SNP 10, Senec








































