Manhattan na Račianskej
To, že budovy v mestách rastú do výšky, sa dá chápať buď ako nevyhnutné zlo, alebo aj ako faktor, ktorý bude rozvíjať architektúru v mestách novým a originálnym spôsobom. Trend výškových budov však prichádza spontánne, nie vynútene. Je spôsobený najmä dopytom po bývaní v mestách, ktoré majú obmedzený priestor na horizontálnu zástavbu. Aj z tohto dôvodu v Bratislave pribudol ďalší mrakodrap – osemdesiatsedem metrov vysoký terakotový Manhattan na Račianskej ulici.
Špecifická lokalitaNový bytový dom vyrástol na jemnom meandri Račianskej, významného cestného ťahu. „Tento obytný dom sme sa snažili projektovať so zreteľom na princípy, ktoré považujeme v našom ateliéri za kľúčové,“ povedal v rozhovore pre ASB jeden z autorov architektonického konceptu, architekt Martin Kusý z ateriéru BKPŠ. Tie podľa neho spočívajú najmä v tom, že ako architekti sa snažia objavovať najmä genia loci, teda ducha miesta, jeho charakter a identitu. „To nám potom umožňuje vybudovať niečo, čo by na akomkoľvek inom mieste nevyznelo, no v danej lokalite to sadne ako zadok na šerbeľ,“ špecifikuje architekt. Lokalita areálu, v ktorom je tento nový bratislavský mrakodrap ukotvený, má podľa architekta práve z tohto hľadiska niekoľko špecifík, ktoré určili tvar Manhattanu. Prvým je zalomenie ulice, ktorá je jednou z hlavných komunikácií vedúcich z a do mesta, ďalším faktorom je, že v okolí sa nachádzajú už tri 15-poschodové bytovky a 24 poschodový internát. „Vyslovene sa tu núkalo vytvoriť vysokú budovu, ktorá by spoločne s internátom vytvárala akúsi bránu mesta. Aj preto tá výška,“ vysvetľuje architekt Kusý.
![]()  | 
![]()  | 
Dva projekty
Na začiatku projektu bola menšia interná súťaž, na základe ktorej si investor vybral z rôznych návrhov práve projekt architektonického ateliéru BKPŠ. Prvý projekt, ktorý architekti vytvorili v priebehu rokov 2003 až 2005, bol hmotovo dosť odlišný od súčasného zrealizovaného návrhu. Šlo o jednoduchší hranol, ktorý mal len 25 podlaží a originálny kosoštvorcový pôdorys s akoby do šikma „useknutým“ parterom a najvyššími podlažiami. Realizoval sa však nakoniec až druhý projekt, ktorý ateliér projektoval v rokoch 2006 až 2007. „Investor vedel, že súťaž sa mu vyplatí, pretože za relatívne veľmi málo peňazí získa množstvo informácií o lokalite a množstvo názorov a pohľadov na celkovú situáciu a objekt v nej,“ konštatuje architekt Martin Kusý. Dodáva, že oba projekty vychádzali z tých istých princípov. „To dokazuje, že ak si na začiatku stanovíte dobré princípy, riešení môže byť viac a všetky budú plnohodnotné,“ dodáva. 
Nad exotickejším geometrickým projektom nakoniec zvíťazil projekt troch dosák. „Do priestoru sú tieto dosky vsunuté tak, že pôdorysne sledujú urbanistickú štruktúru zástavby na Račianskej ulici, zároveň však lícujú aj urbanistickú štruktúru za zákrutou,“ opisuje dispozíciu objektu architekt Martin Kusý. Dodáva, že presne to je dôvodom zamerania sa na uskakované rohy stavby. Nie sú podľa neho samoúčelné – slúžia ako urbanistická smerovka. „Vždy keď tvoríme projekt, dúfame, že výsledok bude taký, že inak by sa to ani urobiť nedalo.“
![]()  | 
![]()  | 
Nie je všetko zlato…
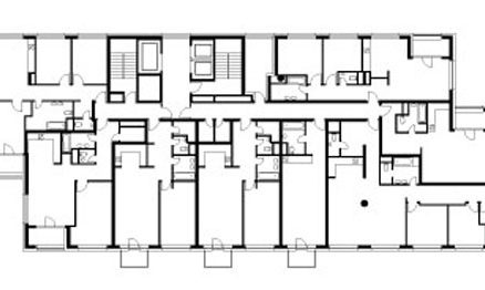
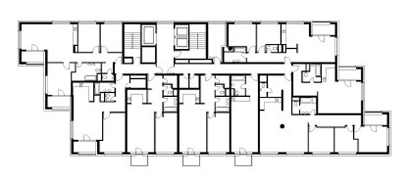
Dvadsaťšesť poschodový bytový dom obsahuje 161 jedno- až štvorizbových bytov. Najväčší podiel tvoria dvojizbové byty – je ich až 56. Najmenej je zasa jednoizbových – 32. Manhattan má jednoduchú a hladkú fasádu, ktorú tvorí keramický obvodový plášť Agrobuchtal s odvetrávanou vzduchovou medzerou a zateplením. „Jedným z našich zámerov bolo týmto objektom reagovať na prehnanú bohatosť tvarov, foriem a detailov, typickú pre súčasnú výstavbu,“ vysvetľuje architekt. Pri tomto projekte preto zvolili jednoduchý a čistý princíp. Architekti sa snažili túto myšlienku posunúť aj do inej roviny – rozhodli sa preto zjednotiť materiál domu s platformou, na ktorej stojí. 
„Nie je to ale až také jednoduché, ako sa na prvý pohľad môže zdať,“ spresňuje Martin Kusý. Naráža napríklad na to, že aj keď všetky fasádne otvory vyzerajú ako okná, nie je to tak – niektoré oknami sú, za inými sa však skrývajú lodžie. „Architektúru podľa nás nerobí architektúrou bohatosť tvarov. Manhattan by mal byť určitým spôsobom aj pokusom o výchovu verejnosti – aj keď neviem, či úspešným. Chceli sme ním ale jednoducho naznačiť, že nie je všetko zlato, čo sa blyští,“ hovorí architekt Kusý.

Manhattan patrí medzi desiatku najvyšších budov Bratislavy a je druhým najvyšším bytovým domom hlavného mesta. Napriek tomu je pojem mrakodrap v prípade tejto budovy trocha premrštený – i keď na druhej strane oficiálne neexistuje žiadna hranica, ktorú musí budova prekročiť, aby sa za mrakodrap považovala. Na porovnanie ale uveďme, že najvyššia budova na svete – Burj Khalifa (Kalifova veža) má 828 metrov a 162 podlaží, čo je na slovenské pomery takmer nepredstaviteľná výška. Bratislavský Manhattan je teda oproti svetovým velikánom iba„drobček“. 
„Hlas ľudu, ktorý sa mi dostal do uší, však hovorí, že bytový dom je privysoký,“ konštatuje architekt Kusý. Upozorňuje však na to, že ľudia by sa mali niekedy hlbšie zamyslieť nad momentálne najdiskutovanejšími témami v architektúre a stavebníctve – ekológiou a trvalo udržateľným rozvojom. „Výstavba má svoje príčiny a dôsledky. Ak chceme bývať v meste, musíme ísť do výšky. Keby sme mali byty z tohto domu roztiahnuť na plochu, zabrali by sme nimi niekoľko desiatok, ak nie aj stoviek hektárov,“ hovorí Martin Kusý a vyslovuje želanie, že by sa na otázky výškových budov malo nazerať aj z tejto stránky a nie len povrchne, ako je to u nás zvykom.
Objavenie Ameriky
Pracovný názov stavby bol „Obydick“, vytvorený z mena slávnej veľryby z románu Hermana Melvilla Moby Dick. Názov realizovanej stavby sa zmenil na Manhattan relatívne nedávno, a až s novým názvom sa začala kampaň zameraná na tzv. americké bývanie. Jeho podstatou je štandard, ktorý sa na Slovensku udomácnil len nedávno: každý byt má samostatné vykurovanie a prípravu teplej vody. V každom byte je nainštalovaný systém vetrania bez otvárania okien a samozrejmosťou vybavenia sú všetky potrebné rozvody na pripojenie na internet, káblovú televíziu a telefón prostredníctvom optických káblov. 
Pri novostavbách je dnes už samozrejmosťou priniesť riešenie parkovania pre obyvateľov – bytový dom Manhattan má k dispozícii tri podzemné podlažia a spevnené státia v okolí – dohromady disponuje 195 parkovacími státiami.
![]()  | 
![]()  | 
Jablko a farby
Pri vstupe do bytového domu obyvateľa alebo návštevníka privíta útulná recepcia. Jej služby budú môcť obyvatelia využívať nepretržite.Vstupný priestor prvý pohľad prekvapí množstvom farieb, ktoré inak nie celkom presvetlený priestor rozjasňujú a rozveseľujú. Steny sú rôznofarebné; ich farebná škála siaha od teplých pastelových farieb až po výraznú staroružovú. Interiéroví dizajnéri ich ozdobili maľbami s tematikou mrakodrapov. Odkaz na Manhattan však podporili aj tak, že niektoré dvere, recepcia a dokonca aj okenné sklá sú nosičmi symbolu jablka, ktoré odkazuje na „Big Apple“, symbol mesta New York. Spoločné priestory s jabĺčkovou tematikou vedú k trom osobným výťahom. Z tých sa vchádza na jednotlivé podlažia. 
Parter a prvé nadzemné podlažie bytového domu sú určené na obchodné prevádzky, ktoré plánuje investor prenajímať predovšetkým takým nájomcom, ktorí podporia kvalitu bývania a prinesú služby samotným obyvateľom tohto bytového domu a jeho okolia.
Na druhom nadzemnom podlaží sa nachádza spoločenská miestnosť – ďalšia pridaná hodnota, ktorá je výrazom nadštandardu tohto bytového domu. Táto miestnosť je určená pre všetkých obyvateľov bytového domu na príležitostné využívanie. Nachádza sa tu kuchyňa, obývací priestor so sedačkou a samozrejmosťou je lodžia.
„Dispozície interiéru pripravovala architektka Alexandra Kusá. Veľakrát ich však prepracúvala – čo je ale bežné. Takýto dom sa nerodí mesiac ani pol roka. Menili sa vonkajšie podmienky, na ktoré investor musel reagovať. Nemali sme s tým žiadny problém, je to normálne,“ opisuje vývoj interiéru architekt Martin Kusý.
![]()  | 
![]()  | 
| Miesto:  Račianska 69/A, Bratislava Druh výstavby: novostavba Využitie: obytná budova Autori architektonického riešenia: Ing. arch. Martin Kusý, Ing. arch. Pavol Paňák, Ing. arch. Martin Kusý, ml., Ing. arch. Alexandra Kusá Hlavní projektanti: Ing. arch. Martin Kusý, Ing. arch. Pavol Paňák, Ing. arch. Martin Kusý, ml., Ing. Jana Jandová Hlavný zhotovovateľ: ZIPP BRATISLAVA, spol. s r. o. Stavebník: ZIPP BRATISLAVA, spol. s r. o. Investičné náklady: 32,20 mil. € Začiatok výstavby: 5/2007 Koniec výstavby: 4/2010 Počet podlaží: 3 PP, 26 NP Počet bytov: 161 Počet parkovacích státí: 195 vnútorných, 14 vonkajších  | 

Byty sa začínajú tretím nadzemným podlažím a sú naozaj rôznorodé. Budúci majitelia majú na výber z rôznych dispozícií. Pri voľbe vhodného priestoru môžu pomôcť aj vzorové byty, zariadené jednoducho, no vkusne. Takmer každý byt má k dispozícii pivnicu – no pivnicou je tento úložný priestor len podľa svojej funkcie. Tieto priestory by sa skôr dali nazvať externou komorou, ktorá sa nachádza na chodbe pri byte, ku ktorému patrí. Každý byt má vždy buď balkón, alebo zasklenú či nezasklenú lodžiu. Byty na 23. a 25. podlaží však majú k dispozícií priam kráľovské terasy – najmenšia má rozmer 45,90 m2 a najväčšia až 163 m2. Terasy na najvyšších poschodiach sú chránené priehľadnými vetrolamami, ktoré umožňujú vychutnávať výhľad v poveternostnej pohode, čo by bez nich možné v takejto výške nebolo. 
Vždy pre seba
„Keď projektujem akúkoľvek stavbu, vždy ju projektujem akoby pre seba. V tomto bytovom dome by som bývať rozhodne chcel – jediným problémom by pre mňa bolo rozhodnúť sa, kde,“ konštatuje architekt Kusý a odôvodňuje, že v dome je veľmi veľa možností, z ktorých každá má veľa plusov. „Byty sa začínajú na treťom podlaží, no nie je to nádhera? Byty na piatom podlaží majú výhľad na Bratislavský hrad, ktorý akoby sedel na strechách domov. Čím vyššie sa vyberiete, tým sa výhľad viac otvára; od desiateho podlažia to už ani nie je výhľad, je to panoráma.“ 
Na najvyšších podlažiach sa nachádzajú veľkoryso navrhnuté mezonetové byty vo vyššom štandarde – od dvoj do štvorizbových. Práve k nim patria aj obrovské terasy, ktoré skutočne poskytujú výhľad na celé mesto. Všetky Bratislavské dominanty sú ako na dlani. Nehovoriac o tom, že dispozícia bytov často otvára výhľady na viacero strán, nielen na jednu. Každý kút má preto akoby iný „návod na použitie“.
Celkovo poskytuje bytový dom Manhattan na výber naozaj veľmi veľa možností. Riešenia bytov sú praktické, dispozične vyhovujú požiadavkám súčasného človeka. Cieľová skupina projektu – teda mladí mestskí ľudia vyhľadávajúci pohodlie, dobrú lokalitu a dobrú dostupnosť, si majú z čoho vyberať.
![]()  | 
![]()  | 
![]()  | 
Tamara Leontievová
Foto: ZIPP
Vizualizácie, nákresy: Architekti – BKPŠ
Článok bol uverejnený v časopise ASB.
													


















						
						


