Malometrážne byty s lákavou fasádou: Miletičova 60
Z Miletičovej ulice sa stáva atraktívna pulzujúca tepna s ponukou bývania pre všetkých, ktorí to do práce a na nákupy nechcú mať ďaleko. Ďalší projekt štartovacích bytov je tentoraz nachystaný na popisnom čísle 60.
Miletičova ulica funguje ako prepojenie niekoľkých dôležitých dopravných ťahov v hlavnom meste, a ako sme písali už v minulom čísle, z „Miletičky“ je všade blízko. Sympatická myšlienka zobrať do parády málo využívané či chátrajúce budovy a premeniť ich na štartovacie byty oslovila už viacerých investorov v rezidenčnom segmente a zdá sa, že naberá na popularite.
Dobré body
Dobré body píšeme za ohľaduplnosť k životnému prostrediu, keďže sa využijú existujúce konštrukcie, za ohľaduplnosť k životnému priestoru, keďže investor nepchá ďalšiu stavbu do hustej existujúcej zástavby, a tiež za vybudovanie parkovacieho domu, ktorý by sa pri dobre nastavenej predajnej stratégii mohol zaplniť autami budúcich obyvateľov. Otáznik visí nad pomerom bytov k parkovacím miestam a nad netradičnými dispozíciami.
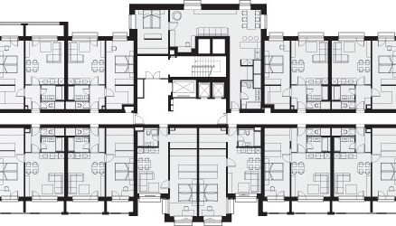
Sklad ako bonus?
Malometrážne jedno- až dvojizbové byty dokážu zaručiť developerským projektom úspech, či už si ich kúpia mladí ľudia na skutočné bývanie, alebo solventnejší klienti ako konzervatívnejšiu investíciu. Inak to nie je ani v prípade panelového objektu neďaleko križovania Miletičovej ulice s Košickou. Hlavnú „lodžiovú“ fasádu má otočenú na severovýchod smerom do rušnej ulice, na opačnej strane ponúka pokojnejšiu dvorovú atmosféru. Hlavným triumfom malometrážnych bytov býva najmä lákavá cena. Priaznivá dispozícia bytu či orientácia na svetové strany môže teda ťahať za kratší koniec. Architekti Bluhm Partner sa snažili statočne popasovať s existujúcim konštrukčným systémom. Hĺbka traktu však nepustila, a tak v každom dvojizbovom byte vznikol mimoriadne veľkorysý odkladací priestor. Na jednej strane to môže vyzerať ako zbytočné plytvanie podlahovou plochou, ale kto nechce, nech nekupuje. Ak zvážime, že odkladacích priestorov nikdy nie je nazvyš, tak v tomto prípade okolnosti prajú všetkým „fajnšmekrom“, ktorí budú mať dosť miesta na celú športovú výbavu vrátane lyží, surfu a bicykla, malú fotokomoru, nahrávacie štúdio alebo bohatý šatník. A ak obyvatelia bytov popustia uzdu fantázii, reálne usporiadanie bytov bude zrejme vyzerať trochu inak ako na papieri, kde projektantov nepustí svetelnotechnická norma.
Zelené EKG
Nové zrekonštruované fasády načrtávajú príjemné osvieženie v podobe zelených vertikálnych línií. „Chceli sme vdýchnuť život do lokality, ktorá chátrala bezmála 20 rokov,“ hovorí architekt Ondrej Bober. „Frekventovanosť ulice, pohyb a život sa symbolicky prenášajú na fasádu akoby v podobe zaznamenaných tepov srdca. Narušili sme aj jej jednoduché horizontálne členenie a každý byt či apartmán tak bude jedinečný.“ Architekti zbavili budovu ťažkého panelového zábradlia, nahradili ho ľahkým perforovaným typom, parter a nadstavbu obalili do cortenového obkladu, čím zvýraznili farebné riešenie exteriéru a spravili z budovy nový orientačný prvok. Do ponuky týmto projektom pribudne 152 nových bytov a apartmánov v zaujímavej lokalite. Potenciálni záujemcovia si tak majú rozhodne z čoho vyberať.
POLYFUNKČNÝ OBJEKT
Miletičova 60, Bratislava
Investor: PROFINEX Holding, s. r. o.
Hlavný architekt: Dipl. Ing. arch. Ondrej Bober, Bluhm Partner, s. r. o./Bluhm Partner AG
Autorská spolupráca: Ing. arch. Peter Šimko
Stavebná časť: Ing. Pavol Orosi, PhD.
Celková zastavaná plocha: 1 383,34 m2
Podlažná plocha brutto: 15 648 m2
Počet parkovacích miest: 135
Počet bytov a apartmánov: 152
TEXT: Mária Nováková, Ondrej Bober
dokumentácia: Bluhm Partner
Článok bol zverejnený v časopise ASB.












