Empire vstupuje do štandardu eurozóny
Pred dvomi rokmi by len málokto na tomto mieste hľadal hotel so službami na úrovni štyroch hviezdičiek s tromi klimatizovanými vnútornými a dvanástimi vonkajšími tenisovými kurtmi. Trnavská štvrť rodinných domov s priľahlou zelenou lúkou ponúkala výzvu len investorovi s dostatočnou imagináciou a vytrvalou túžbou po súbojoch s prekážkami. Stačilo približne štrnásť mesiacov, aby na dohľad starobylej panorámy slovenského Ríma vyrástol biznis hotel Empire so športovo-relaxačným zázemím – a to na úrovni štandardu eurozóny. Žiada sa dodať, že nielen službami, ale aj svojou architektúrou. S čistými tvarmi, vhodnou farebnou akcentáciou, konštrukčnou odvahou, rešpektovaním kontextu a najmä so zrozumiteľnou prevádzkou.
Business & wellness
Týmto myšlienkam vdýchol život Ing. arch. Rastislav Bocán v spolupráci s interiéristami Jánom Perneckým ml. a akad. arch. Miroslavom Zikmundom. Vytvorili priestor, v ktorom cítiť, že architekt ako režisér prostredia harmonizoval svoje ambície s investorskými predstavami o funkčnom využití projektu. Tento moment si všimla i odborná verejnosť, ktorá ocenila vysokú mieru prítomnosti ideálneho vzťahu medzi kultiváciou prostredia, vkusnou estetikou výrazových prostriedkov architektúry a investorským zámerom. Počas uplynulých troch mesiacov zareagovala na tieto podnety aj široká verejnosť, ktorá si čoraz častejšie hľadá cestu k aktívnemu oddychu v príjemných priestoroch.
Technický koncept
„Z ekonomického hľadiska išlo o kopírovanie potrebného minimálneho priestoru nad kurtmi tak, aby spĺňal požiadavky na usporadúvanie turnajov podľa medzinárodných kritérií. Z architektonického zase, aby sa zo všetkých vnútorných priestorov dosiahol vizuálny kontakt s tenisovými kurtmi, ktoré sú hlavnou doménou priestoru.“
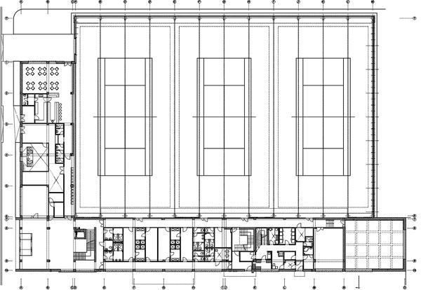
Keďže prevažnú časť uličnej fasády stavby tvorí tenisová hala, zvýšená pozornosť sa kládla na použitie materiálu, ktorý by mal aj výraznú estetickú hodnotu. Výsledkom je hliníkový strešný systém Kalzip a stenový panelový systém Kingspan. Ostatné časti stavby sú z tradičných materiálov. Jednotlivé tvary hmôt sú podporené rôznym materiálovým a farebným vyhotovením.
Nosnú konštrukciu tenisovej haly tvoria oceľové stĺpy a priehradové oblúkové väzníky a je priznaná aj v interiéri. Dvojpodlažná a trojpodlažná hranolová hmota má nosné konštrukcie tvorené železobetónovým monolitickým skeletom, kombinovaným murovaným stenovým systémom, stropné konštrukcie sú z montovaných predpätých panelov a monolitického železobetónu. Stavba je založená na základovom rošte a pätkách podoprených vŕtanými pilótami. Zaujímavosťou stavby je riešenie vykurovania, resp. chladenia priestorov z vlastného zdroja pomocou dvoch reverzibilných tepelných čerpadiel (voda – voda).
Štýlová jednota
Hlavný vstup do objektu sa nachádza v mieste kríženia dvojpodlažnej a trojpodlažnej hranolovej hmoty a je orientovaný smerom k parkovisku. Na 1. NP sa nachádza vstupná hala s recepciou, otvorená galériou cez tri podlažia, s hlavným schodiskom a zaskleným výťahom.
Na prízemí je bar s výhľadom na tenisové kurty, na poschodí zase Strawberries restaurant s kapacitou 70 osôb, ktorá ponúka medzinárodnú kuchyňu. Jej atmosféru umocňuje visutá letná terasa s výhľadom na vonkajšie tenisové kurty. Hotel ponúka 18 dvojlôžkových izieb, jednu trojlôžkovú izbu a dva apartmány.
Azda najvýraznejším poznávacím znamením uvedených priestorov je štýlová jednota, ktorá dodáva interiéru vysoké dizajnérske kvality. Žiadna samoúčelná dekorácia, tvarové arabesky podnikateľských rozmarov či architektonické hry na kreatívnu exhibíciu. Naopak, tvarovú a farebnú harmonizáciu podporujú aj umelecké artefakty v podobe sochy a obrazov od popredného slovenského autora Svetozára Ilavského. Ich tematika celkom prirodzene vedie dialóg s tenisovým prostredím, pričom veľmi invenčným výtvarným spôsobom prepája históriu tenisu s dneškom.
V športovej časti objektu sa nachádzajú tri indoorové tenisové kurty so špeciálnym povrchom Taraflex Gefloor. Výnimočnosťou sú štyri bedmintonové kurty, ktoré môžu návštevníkom slúžiť po jednoduchej zmene povrchu dvorca. Keďže sa Empire hotel nachádza v športovo-rekreačnej zóne Slávia, návštevníci môžu využiť aj 12 outdoorových antukových kurtov.

Na pracovné stretnutia, školenia a prezentácie ponúka hotel priestory štyroch konferenčných miestností pre 5 až 50 ľudí, ktoré sú vybavené najmodernejšou audiovizuálnou technikou. Vysoká flexibilita objektu umožňuje realizovať spoločenské a pracovné podujatia až pre 1 500 osôb.
Trnava má teda prvý hotel so štvorhviezdičkovým štandardom poskytovaných služieb. Je príjemným zistením, že sa tak udialo v požadovanej symbióze investora a architekta, blížiacej sa k ideálu. A to na začiatok nie je málo. Zvyšok potvrdia – ako napokon vždy – ľudia a čas.
Názov stavby: Hotel Empire – Tenisové centrum TrnavaMiesto stavby: Trnava, Hajdóczyho ulica č. 11
Charakter stavby: hotelovo-športový komplex
Autor stavby: Ing. arch. Rastislav Bocán
Generálny projektant: Ing. arch. Rastislav Bocán
Architektonická spolupráca: Ján Pernecký ml., akad. arch. Miroslav Zikmund
Investor: Tenisové centrum Trnava, a. s.
Projekt Management: BRAINVEST, s. r. o.
Generálny dodávateľ: INGSTEEL, spol. s r. o.
Dodávateľ interiéru: MOBILIER V.I.P., s. r. o.
Strešný systém: KALZIP
Špeciálne povrchy: Gerflor Taraflex
Wellness technológia: KLAFS
Začatie stavby: november 2005
Ukončenie stavby: január 2007
Investícia: 180 miliónov Sk
Ľudo Petránsky
Foto: Ctibor Bachratý
Projektová dokumentácia a vizualizácia: Ing. arch. Rastislav Bocán















