Efektná fasáda narušila sídliskový stereotyp
Žilinské sídlisko Vlčince tvorí kompaktná zástavba panelových domov zo sedemdesiatych až osemdesiatych rokov minulého storočia. Má dobrú občiansku vybavenosť, susedí so žilinským lesoparkom a vysokoškolským areálom. Stavebný boom z predošlých rokov do existujúcej zástavby príliš nezasiahol. Nové objekty pribudli zväčša na okraji sídliska. Bytový dom na Nitrianskej je však výnimkou.
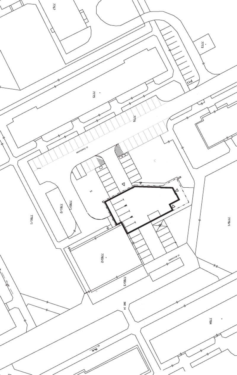
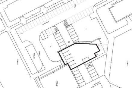
Narušený stereotypInvestori kúpili projekt vo fáze platného územného rozhodnutia. Lokalizovaný je do pomerne exponovaného územia centrálnej časti Vlčince 3. Bytový dom rešpektuje primerané odstupy od okolitých objektov a v podstate využil prázdne nevyužívané parcely vedľa predajne potravín. Niekoľko ďalších predajných stánkov dotvára voľné priestranstvo do podoby zdanlivého námestia. Zaplnenie vedľajšej nevyužívanej plochy vyvolalo v obyvateľoch okolitých bytových domov nevôľu. Išlo však najmä o narušenie dlhoročného stereotypu. Objem realizovaného objektu je riešený citlivo. Noví investori upustili od zámeru vybudovať blok na severnej strane, aby zmenšili celkový objem novostavby. Navyše, pôvodnú výšku znížili odobratím posledných dvoch nadzemných podlaží. „Na mestskom úrade sme zámer predstavovali niekoľkokrát a na stavebnom úrade naše zmeny privítali,“ spomínajú investori Pierre Merdinian a Peter Gandi. Podmienkou realizácie bolo, aby sa novostavba napojila na existujúci polyfunkčný dvojpodlažný objekt.
Efektná dynamická fasáda
Všetky tieto okolnosti predstavovali neľahkú východiskovú pozíciu. Existujúce panelové domy v okolí vytvárajú veľmi jednotvárnu kulisu. Na jednej strane sa to dá považovať za výhodu, ktorá nezviazala architektom ruky pri tvarovaní nového objektu. Na druhej strane bolo nevyhnutné s farbami, objemami a výrazom narábať s mierou, pretože akýkoľvek nový prvok pôsobí v tomto priestore veľmi novo až cudzorodo. 

![]()  | 
![]()  | 
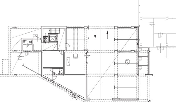
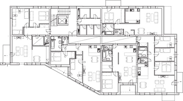
| Pôdorys 1. NP | Pôdorys 3. NP | 
![]()  | 
![]()  | 
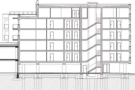
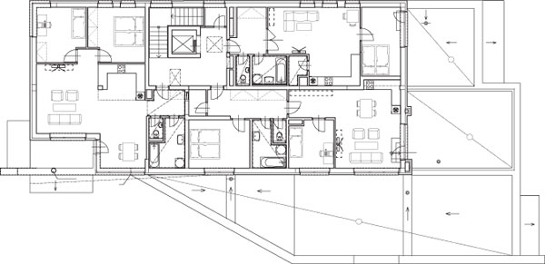
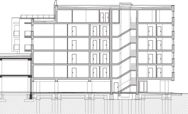
| Pôdorys 6. NP | Rez | 
| Bytový dom v Žiline Miesto stavby: Nitrianska ulica, Žilina-Vlčince 3 Investor: PMF Invest, s. r. o., Bratislava Generálny projektant: MICHAL DIVIŠ ARCHITEKTI, s. r. o. Autori: Ing. arch. Michal Diviš, Ing. arch. Radoslav Stráňava Generálny dodávateľ stavby: I.N.V.E.S.T., a. s. Začiatok výstavby: 10/2010 Ukončenie výstavby: 09/2011 Fasády: Ceresit, Henkel Výťaht: Schindler Okná: Slovfornet Slovakia, s. r. o. Dvere: Svetlošák – Naturaldoor  | 

V bytovom dome je 23 bytových jednotiek. V ponuke je rôznorodá skladba bytov od dvojizbových až po štvorizbové s plochou od 55 až po 80 m2. Väčšina z nich má obývací priestor priamo napojený na kuchynský kút alebo je kuchyňa čiastočne oddelená. Spálne sú proporčne skromnejšie, ale takmer v každej izbe autori mysleli na umiestnenie šatníka. Vo väčších bytoch kúpeľne navrhovali s vaňami, v menších sa počíta so sprchovacím kútom, vo všetkých je miesto na práčku. Napriek striedmej rozlohe podlahovej plochy, ktorá je výsledkom rozumného prehodnotenia projektu novými investormi, je bodom k dobru rozumné riešenie dispozícií skúseným architektom s reálnou predstavou potrieb budúcich obyvateľov. Byty majú štandardne buď balkón, lodžiu, alebo terasu a ku každému prináleží pivničná kobka prístupná zo schodiskovej chodby. Na prízemí sa nachádzajú aj dve malé obchodné jednotky so zázemím a výmenníková stanica. „Riešenie bytového domu ako prístavby ku skutkovému objektu bolo náročné. Prinieslo to so sebou isté obmedzenia najmä v riešení spodných podlaží a dispozícií bytov v dotyku s objektom predajne potravín,“ konštatoval Michal Diviš pri obhliadke.
Plot z bezpečnostných dôvodov
Nosný systém je pozdĺžno-priečny, dvojitý, ekvivalentný stenovému systému so združenými stenami. Stenový systém je kombinovaný s rámovým systémom. Všetky nosné konštrukcie sú železobetónové. Na 1. NP, ktoré slúži aj na parkovanie osobných áut, je z prevádzkových dôvodov na voľný priestor navrhnutý rámový systém. Ten je doplnený stužujúcimi železobetónovými stenami, ktoré prebiehajú aj cez ďalšie podlažia. Obvodový murovaný plášť nie je započítaný do priestorovej tuhosti objektu a staticky pôsobí len ako výplňové murivo. Rovnako všetky vnútorné deliace steny hrúbky 250 mm nemajú žiadnu nosnú funkciu. Stropné konštrukcie sú doskové železobetónové. Stropná doska nad 1. NP je hrúbky 150 mm, stropná doska nad 2. NP až 5. NP má 200 mm a stropná doska nad 6. NP je hrubá 180 mm. Vzhľadom na prítomnosť menej únosných strednoplastických ílovitých zemín zasahujúcich pod terén do hĺbky približne 4,10 m je objekt založený hlbinnými pilótami s jednotným priemerom 600 mm s odstupňovanou dĺžkou od 4,0 m do 9,0 m. Hlavy pilót sú zmonolitnené železobetónovou pätkou alebo železobetónovým pásom. Pätky a pásy sú vzájomne pospájané základovými trámami.
Bytový dom nie je podpivničený. Na prízemí je vytvorených sedem krytých a 22 voľných parkovacích státí. Požadovaný počet 31 státí prekročili vybudovaním ďalších miest v bezprostrednej blízkosti a dospeli k počtu 39. Areál domu je oplotený najmä z bezpečnostných dôvodov, aby si obyvatelia z okolia nekrátili cestu do obchodu pomedzi autá. Riešenie je to praktické, ale nový objekt to ešte viac vyčleňuje z okolitej zástavby. Po doplnení zelene a malého detského ihriska je šanca, že sa tento efekt zmierni.
Zapadne?
Prozaické socialistické panelové domy, aj keď niektoré s liftingom v podobe zateplenia pod pastelovou omietkou, nie sú veľmi žičlivým prostredím. Nový bytový dom na Nitrianskej vsadil na výrazný efekt netradičnej fasády, ale celkový štandard vybavenia investori predvídavo vyberali primerane so zameraním na potenciálneho klienta. Takže keď dom začne žiť životom svojich obyvateľov, nepochybne zapadne.
Mária Nováková
Foto: Dano Veselský
Dokumentácia: MICHAL DIVIŠ ARCHITEKTI
Článok bol uverejnený v časopise ASB.
–>–>
													














						
						
						
						


