Dve veže mysleli najmä na pohodlie obyvateľov
Dve veže síce môžu evokovať pokračovanie fantastického príbehu v Tolkienovej trilógii po rozpade Spoločenstva prsteňa, ale v prípade petržalskej stavebnej reality je to názov nových dvadsaťposchodových dvojičiek, ktoré vytvárajú ústrednú dominantu lokality polyfunkčného komplexu Bosáková – Šustekova. Podľa projektanta a zároveň zástupcu investora Ing. Miloša Kedroviča sa pri architektonickom riešení bytov myslelo najmä na pohodlie obyvateľov a jeho základnou filozofiou bolo vytvoriť kvalitné bývanie v rôzne metrážnych bytoch.
Predaj napriek kríze
Príbeh realizácie dvoch veží sa začal v októbri 2007, keď na Slovensku vrcholil stavebný boom a ceny bytov sa šplhali do nadoblačných výšin. O prichádzajúcom krízovom prepade sa však zástupcovia investora dvoch veží – spoločnosti Vodotika-MG, spol. s r. o., dozvedeli už počas návštevy Írska v máji 2008, čo im ponúklo mierny náskok v rozhodovaní.
„Dovtedy sme mali rozpredaných približne štvrtinu bytov,“ hovorí Miloš Kedrovič. „Kríza na nás pôsobila tak, ako aj na ostatných developerov. Predaj bytov sa na niekoľko mesiacov spomalil, ale našťastie, sa nezastavil. Kríze najlepšie vzdorovala naša cenotvorba, ktorá nám umožnila neznižovať odbytové ceny, čím pri rozhodovaní našich klientov nenastal chaos. Stabilitu investičného procesu, ale zabezpečil sofistikovaný prístup pracovníkov bývalej Istrobanky, ktorí hneď na začiatku nastavili úverové podmienky tak, že zabezpečili plynulý spôsob financovania celej stavby. Skutočné zlepšenie nastalo až v druhej polovici roku 2010, keď samotné banky uvoľnili podmienky prideľovania úverov a znížili úrokové sadzby.“
Počas celého predajného obdobia sa ceny bytov v podstate nezmenili a pohybovali sa od 1 700 €/m2 do 2 095 €/m2. Tento rozptyl cien bol závislý od veľkosti bytovej plochy a poschodia, na ktorom sa byt nachádza.
To, že spoločnosť Vodotika-MG kumuluje funkcie investora, vyššieho dodávateľa, projektanta, a dokonca aj predajcu a správcu, považuje Miloš Kedrovič za veľmi výhodné. „Vieme rýchlo, flexibilne a efektívne reagovať na požiadavky nielen klienta a samotného trhu v procese výstavby, ale aj samotnej výstavby,“ tvrdí Miloš Kedrovič.
„Zdravá názorová opozícia medzi jednotlivými zložkami v rámci spoločnosti prináša dobré výsledky. Ide najmä o kvalitu stavby a flexibilnosť pri rôznych zmenách a doplnkoch, ktoré prinášajú technický a ekonomický efekt. Navyše, počas výstavby máme možnosť reagovať na požiadavky našich zákazníkov podľa ich vlastných predstáv.“
–>–>
Projekt priniesol 257 jedno- až päťizbových bytov a jeho úspešnosť pri predaji (k dnešnému mesiacu je projekt takmer na 75 % vypredaný) podmienili aj použité nadštandardné materiály, kvalita prác a v neposlednom rade aj jeho výhodná poloha. Dôležitú rolu pri predaji zohral aj fakt, že objekt je pod neustálym dohľadom desiatok kamier, pričom vstup do budovy kontroluje informačná služba.
| Polyfunkčný objekt Vodotika, III.a etapa Miesto: Bosákova ulica, Petržalka – Háje II, Bratislava Generálny projektant: Vodotika, a. s. Projektant realizovanej verzie: Ing. Miloš Kedrovič, Ing. Peter Káčerik, Ing. Ivana Vozárová Spolupráca: Ing. arch. Vladimír Hrdý, Ing. Vladimír Bajan Statika: Ing. Ján Cigánek, Ing. Miroslav Malast Investor: Vodotika – MG, s. r. o. Úžitková plocha / Usable area: 32 756 m2 Zastavané územie: 2 422 m2 Dispozície bytov: 1-, 2-, 3-, 4-, 5-izbové byty a mezonety /nadštandardné byty s terasami Obstavaný priestor: 120 033 m3 Výška stavby: 64,3 m Začiatok výstavby: 10/2007 Ukončenie výstavby: 9/2010 Generálny dodávateľ: Vodotika – MG, s. r. o. Manažér stavby: Ing. Ľubica Račeková Realitná činnosť – predajca: Ing. Gabriela Kedrovičová Stavbyvedúci: Ing. Ján Mikuláš Hrubá stavba: ZIPP, a. s. Celkové náklady: 29,3 mil. € Dodávatelia: |
Zväčšiť mapu
Dispozície

K nadštandardným prvkom v projekte patrí aj použitie bytových výmenníkových staníc. Každý obyvateľ si je sám sebe pánom a teplotu vody alebo aj kúrenie si nastavuje samostatne v každom byte.
Statika budovy je navrhnutá ako monolitický skelet z liateho železobetónu, výplňové murivo je z keramických tvaroviek Porotherm 30 P+D, zateplenie je z minerálnej vlny 80 mm, železobetónové konštrukcie sú zateplené minerálnou vlnou 120 mm, vnútorne omietky sú vápennosadrové, vonkajšie silikónové.
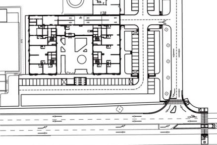
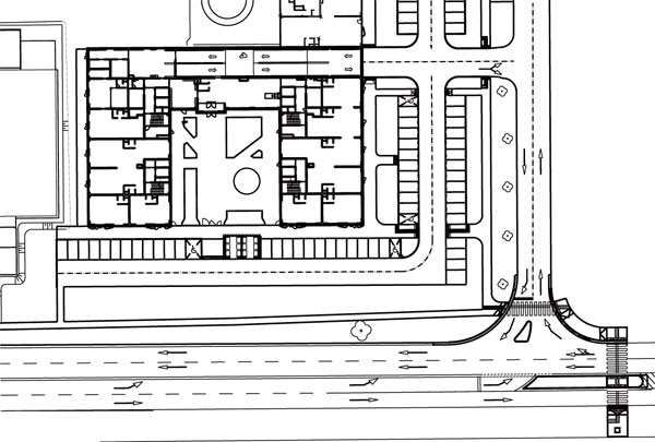
Spodné časti projektu slúžia na kancelárie. Ide o niekoľko desiatok priestorov s výmerami 48 až 230 m2. Administratíva je aj v najnižšej časti veže susediacej s predajňou nábytku Albero. Ďalšie byty na spodných podlažiach i v časti prepojovacej sekcie medzi oboma vežami sú riešené ako nebytové priestory. Medzi oboma vežami je menšie námestie s fontánou. Pod vežami sa nachádzajú tri podzemné podlažia garáží a parkovať sa dá aj na novovybudovaných parkoviskách v okolí objektu.
Urbanizmus
Dve veže sú urbanisticky zasadené do mestskej časti Bratislava-Petržalka, lokalita Háje II v katastrálnom území Petržalka, v dopravnej nadväznosti na Lužnú a odtiaľ na Bosákovu či Šustekovu ulicu. Projekt vyrástol na mieste, kde predtým boli staré, spustnuté a nevyužívané sklady, pozemky zarastené, neupravované. „Už pri projektovaní sme mysleli na každý detail a v neposlednom rade sme dbali na estetickú stránku nielen interiéru, ale aj exteriéru,“ hovorí Miloš Kedrovič. „Naša spoločnosť je nielen dodávateľom stavby, ale aj jej správcom. Preto dbáme na úpravu okolia a čistotu objektu.“
Petržalské dvojičky však nie sú pilotným projektom investora. Sú súčasťou postupne budovanej tváre „hornej Petržalky“, ktorá získava nové vizuálne kvality, ale zároveň zachováva genius loci. Dve veže sú súčasťou vlastnej lokality investora, ktorú kedysi odštartoval budovaním polyfunkčných domov medzi Šustekovou a Bosákovou ulicou.
V susedstve už vzniklo viacero novostavieb, ktoré postavila práve Vodotika-MG. Ide o približne 450 bytov v menších rôznofarebných bytovkách. Firma vybudovala aj novú komunikáciu, ktorá sa napája na hlavnú cestu. Dve veže sú už ôsmym domom polyfunkčného komplexu Bosákova-Šustekova, ktorý by mal obsahovať všetky potrebné atribúty kvalitného bývania. Prevádzka z úvodných mesiacov po kolaudácii naznačuje, že tieto ambície by sa mohli naplniť.
Situácia
Rez
Ľudo Petránsky
Foto: Dano Veselský, Robo Prítrský
Článok bol uverejnený v časopise ASB.














