Dubravia – obytný dom novej doby
Výstavbu obytných súborov v Bratislave prirodzene nezastavila ani kríza na realitnom trhu, dala im však reálnejšie kontúry, ktoré kreslili potreby trhu. Zmenšili sa dispozície bytov, väčší dôraz sa kladie na celkový komfort a služby, ale aj na estetickú stránku projektu. Črty „novej doby“ nadobudol aj obytný dom Dubravia, ktorý bol nedávno uvedený do užívania v bratislavskej mestskej časti Dúbravka.
Kvalitnejšie bývanie v DúbravkeS prípravou projektu Dubravia začal investor ešte v roku 2007, keď bolo stavebníctvo (aktivita developerov v segmente byty, ako aj samotná stavebná výroba) na vrchole alebo ešte tesne pod ním. Ľudia kupovali byty len na základe reklamy projektu, ktorá sa opierala iba o projektovú dokumentáciu, neraz vyhotovenú len v počiatočnom štádiu.
„Našou snahou bolo postaviť obytný dom s malou polyfunkciou v centre Dúbravky, ktorý by spĺňal kritériá súčasnej architektúry spojenej s jednoduchou, funkčnou dispozíciou s použitím kvalitných materiálov a v neposlednom rade aj kvalitne zhotovenej,“ hovorí zástupca investora Ing. Jozef Straňák.
„Takto postavené kritériá dovtedy nespĺňala a ani nespĺňa okrem Dubravie žiadna budova v Dúbravke. Táto mestská časť si tento projekt zaslúžila, lebo Dúbravka dnes z viacerých pohľadov patrí medzi najlepšie mestské časti. Je to najmä vďaka jej polohe medzi lesnými pásmi Bratislavy, napojeniu na diaľnicu a diaľničný obchvat mesta, blízkosti rekreačných zón, ale aj napojeniu na zdravotnú, školskú a športovú vybavenosť.“
Za miesto výstavby určil investor pozemok, na ktorom stála budova známych dúbravských potravín, ktoré však po výstavbe okolitých obchodných reťazcov stratili svoju pôvodnú funkciu.
„Jednoducho, chceli sme ponúknuť kvalitnejšie bývanie, kde by bol v harmónii dizajn a materiály exteriéru s veľkoryso riešenými spoločnými priestormi,“ dodáva druhý zástupca investora BCom. Jozef Brhel. „Či sa nám to podarilo, a to aj napriek viacerým problémom, ktoré nás stretli počas výstavby, musí posúdiť niekto iný – najlepšie s odstupom času majitelia predaných bytov.“
{video_start}
/UserFiles/File/architektura/stavba-roka/stavba-roka-2011/bytovy-dom-dubravia-5255/ZO%20DUBRAVIA.flv
{video_end}

Pôvodne bola štruktúra veľkosti bytov iná, obsahovala viac bytov výrazne nad 100 m2, ako aj mezonetové byty s výmerou od 125 do 175 m2. S nástupom depresie v stavebníctve sa projekt v ďalších stupňoch prerobil na byty, ktoré si vyžadoval trh a ktoré čo najviac spĺňali kritériá na hypotekárne financovanie, pričom sa investor s architektom snažili zachovať logiku štruktúry bytov.
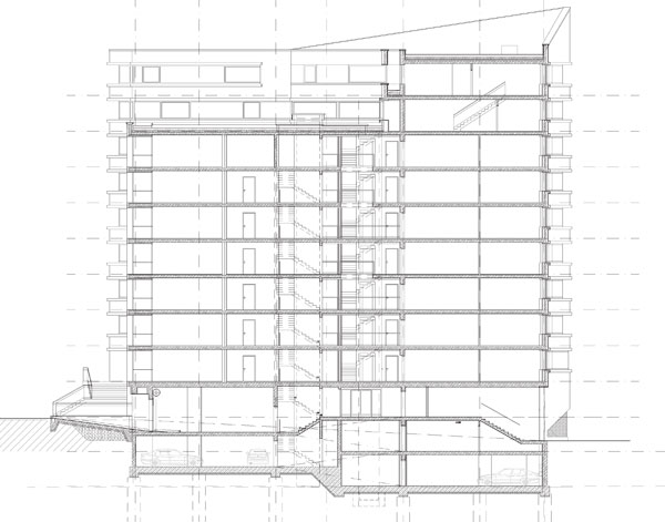
Vynechali sa veľkorozmerové mezonetové byty, čím sa znížila výška budovy o dve poschodia – na dnešných osem poschodí. Dnes nedosahuje ani výšku, ktorú mal investor povolenú v územnom rozhodnutí. A to je opak tendencie, ktorej sme svedkami prakticky na celom území Bratislavy.
| Bytový dom Dubravia Miesto: Bratislava, Dúbravka, Trhová ulica Investor: Bytový Dom Dubravia, s. r. o. Architekt: Ing. arch. Jozef Ondriaš Spolupráca: Ing. arch. Ondrej Ondriaš, Ing. arch. Ľubomír Novák Začiatok výstavby: jeseň 2008 Ukončenie výstavby: zima 2010 Celkové investície: 8 mil. eur Počet bytov: 66 Úžitková plocha bytov: 7 087 m2 Zastavaná plocha: 1 026 m2 Obstavaný objem: 31 171 m3 Počet podlaží (aj podzemných): 10 (2 podzemné, 8 nadzemných) Generálny dodávateľ: Sibamac (len do apríla 2010) |
–>–>
Architektúra dvoch celkov
Dubravia sleduje pozemok bývalých potravín, pričom jej hmotovo-priestorové riešenie vyplynulo z limitov platnej ÚPD. Ďalším limitom bola spracovaná svetlotechnická štúdia, ktorá akceptovala nielen existujúcu zástavbu, ale aj novonavrhovanú a budúcu zástavbu centra Dúbravky. Pôvodná architektonická štúdia variantne preverovala proporčné vzťahy v danom prostredí.
„Študijná časť preverila hlavné proporcie hmoty objektu pri danom pôdoryse,“ hovorí autor konceptu Ing. arch. Jozef Ondriaš. „Jasne sa preukázalo, že objekt treba vertikálne deliť. Koncepčne vznikli dva objekty sústredené okolo centrálnej haly. Pôvodne to mala byť myšlienka dvoch domov, ktoré sú preťaté stuhou ako komunikáciou slúžiacou na prechod ľudí. Potom však prišla kríza a s ňou aj zefektívnenie projektu a stuha sa v realizácii objavila už iba v náznaku v hale.“
Objemové a výtvarné spracovanie základnej hmoty našlo podporu vo výbere štruktúry, tektonike a materiálovom vyhotovení. Dve výtvarne antagonisticky pôsobiace hmoty majú vlastný výrazový, tektonický i farebný životopis. Hmota obrátená na preslnený juh a juhozápad je minimalisticky rozrastrovaná. Jednotlivé podlažia a byty sú vo zvolenom rastri čitateľné. Do vnútra základnej hmoty sú vsadené pobytové lodžie. Druhá hmota orientovaná na východ a sever je pôdorysne vymodelovaná do tvaru L. Jej pôdorysné prelamovanie eliminuje mohutnosť hmoty. Štruktúra tejto hmoty je navrhnutá v striedaní plných a zasklených horizontálnych pásov. Žiadny architektonický prvok nepresahuje pred základnú hmotu objektov.
Obidve hmoty sú odlíšené farebne i materiálovo: „drevená“ časť mala mať pôvodne dokonca mäkšie, zaoblenejšie tvary, kovová zase racionálno-geometrické. Architektovi sa však podarilo udržať základnú ideu konceptu, pričom požiadavky svetlotechniky vyriešil elegantným natočením objektu. To sa na fasáde prejavilo v zalomení jej krivky. Princíp farebného odlíšenia dvoch hmôt sa premietol aj do interiéru, kde „drevené“ plochy vystriedala oranžová farba a kovové zase sivá farba.
Investor a architekt v diskusii
Tak ako všade, kde je snaha vytvoriť niečo pekné a trvácne, aj pri Dubravii postupne dochádzalo k stretom medzi autorom projektu a developerom. „Každý ambiciózny architekt sa celkom pochopiteľne snaží presadzovať svoje predstavy a záujmy s menším zreteľom na financovanie ako developer,“ pripomína Jozef Straňák. „Dobrá architektúra môže vzniknúť v ostrej, ale korektnej diskusii, výsledkom ktorej je kompromis. Ak sú obidvaja nie celkom spokojní, výsledkom je dobré dielo, a tak to bolo aj u nás. Žiaľ, atraktívny architektonický prejav nemá v našich podmienkach výraznejší vplyv na predaj bytov. S dobrým estetickým cítením pre niečo sa človek narodí alebo ho získa výchovou. V našej spoločnosti, až na malé pokusy (názov predmetu v škole), to ľuďom nikto nevysvetľuje, výsledkom čoho je esteticky zle uvarený guláš, ktorý nemôže nikomu chutiť.“
Je dobré, že v prípade Dubravie guláš nevznikol a výsledkom je veľmi solídny kompromis medzi architektovými predstavami a investorovými možnosťami.
Pôdorys 2. NP
Priečny rez
Situácia
Ľudo Petránsky
Foto: Dano Veselský
Článok bol uverejnený v časopise ASB.
















