Dlhé Diely: Bývanie ako rébus
Pozemok, na ktorom bude stáť bytový dom s občianskou vybavenosťou v parteri, sa nachádza v lokalite Dlhých Dielov s atraktívnym výhľadom na Bratislavský hrad. Tektonika domu zodpovedá tehlovému murivu. Byty sú určené konzervatívnejším užívateľom, ktorí sa chcú v tejto lokalite usadiť dlhodobo a záujemcom, ktorí v nej chcú bývať prechodne, ale s komfortom.
Dom bude mať sedem nadzemných podlaží a výškovo doplní existujúcu okolitú zástavbu.Typicky mestský parter navrhovaného bytového domu bude slúžiť pre malé prevádzky služieb vyššej občianskej vybavenosti. Architektonický výraz vytvorí jednoduchá biela fasáda, oživená vystupujúcimi farebnými alebo materiálovo odlíšenými hmotami.
![]() |
![]() |
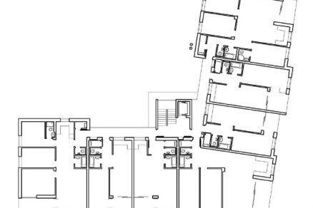
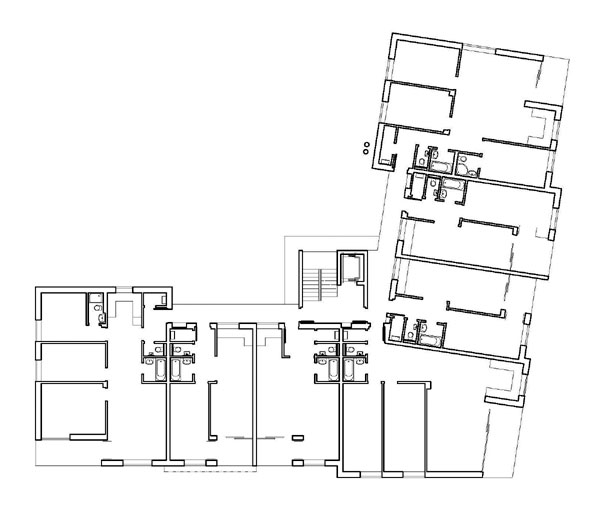
Pôdorys bytového domu tvorí dvojkrídlová dispozícia. Komunikačné priestory sú riešené ako pavlač prepojená vertikálnym jadrom a orientovaná do dvora smerom na severovýchod.

![]() |
![]() |
| Situácia | Pôdorys |
![]() |
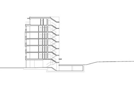
| Priečny rez |
Názov: Bytový dom Dlhé Diely
Miesto: Tománkova ul., Bratislava
Investor: DD-invest, s. r. o.
Architekti:
Ing. Martin Kvasnica
Ing. arch. Damián Berec
Stavebná časť: Ing. Ivan Bučko
Statika: Ing.Vladimír Kohút
Zdravotechnika: Juraj Karen
Plynofikácia: Juraj Karen
Vykurovanie: Ing. Stanislav Mečiar
Elektroinštalácie: Füzék Ján
Dopravný režim: Ing. Ján Tomko
Požiarna ochrana: Ing. Lea Dingová
Gen. dodávateľ: DD-invest, s. r. o.
Počet bytových jednotiek: 37
Počet podlaží: 7
Počet parkovacích miest: 47
Začiatok realizácie: 01/2007
Ukončenie realizácie: 07/2008
Odhadované náklady: 70 miliónov Sk
(lh)
Vizualizácie: Štúdio FOR















