Ďalšie luxusné byty na bratislavskej Kolibe
Atraktívne bytové lokality v Bratislave predpokladajú investorsky aj architektonicky adekvátne riešenia. Na juhovýchodnom úbočí Malých Karpát pod masívom Kamzíka, na rohu ulíc Brečtanová a Jedenásta – inými slovami na bratislavskej Kolibe – vyrastá 24 luxusných bytov v dvoch 4-podlažných objektoch. Ostatne, na najvyššie umiestnenej ulici v Bratislave ani nemusia byť vyššie domy na to, aby sa dosiahol príťažlivý výhľad. Bytové domy rakúskeho investora, ktorý vystupuje pod názvom 1. Brečtanová, s. r. o., by sa mali dokončiť v septembri budúceho roku.

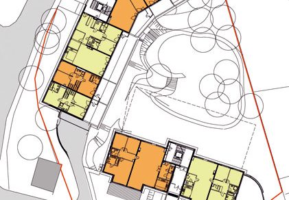
Ako pripomenul zodpovedný projektant akad. arch. Ján Mišík, „zmeny bytov sa týkali okrem redukcie počtu garážových stojísk dispozičného riešenia podzemného podlažia a prvých dvoch nadzemných. Namiesto jedného mezonetového bytu sa zvolilo iné usporiadanie bytov v severovýchodnom krídle tohto domu na 1. a 2. NP“.

„Predelením veľkých bytov na poschodiach na 2- a 3-izbové štandardnejšie byty sa nepodstatne zmenilo aj usporiadanie okenných otvorov,“ dodáva architekt Mišík.
Súčasťou každého bytu je nadštandardná terasa, resp. v prípade prízemných bytov súkromná záhrada. Nezastavané plochy v rámci pozemku sa využívajú na výsadbu nízkej a vysokej zelene.
Je len prirodzené, že stavebno-technické riešenie využíva skúsenosti rakúskych majiteľov investora z realizácií bytových projektov u našich západných susedov. Tie spočívajú okrem iného v dodržaní pomerne prísnych nárokov na hlukovú nepriepustnosť konštrukcií, v dôslednom riešení možných tepelných mostov, ale aj v systéme spolurozhodovania budúcich vlastníkov o materiáloch a vybavenosti jednotlivých bytov.
Bytové domy
Investor: 1. Brečtanová, s. r. o.
Autori: Arch. DI. Heinz Seiser, Arch. DI. Norbert Reithofer, Arch. DI. Attila Kadlec, Ing. arch. Alan Krajčír, Ing. arch. Juraj Šujan
Projektant: MSM Architekti, s. r. o.
Zodpovední projektanti: Ing. arch. Juraj Földes, akad. arch. Ján Mišík
Celkové investície: 170 mil. Sk bez DPH (5,642 mil. eur)
Úžitková plocha: 5 042,10 m2
Zastavaná plocha: 1 388,80 m2
Plocha bytov: 2 889,00 m2
Počet bytov: 24
Generálny dodávateľ: Považská stavebná, a. s., Považská Bystrica
Začatie výstavby: november 2007
Ukončenie výstavby: september 2009
(pet)
Vizualizácie: MSM Architekti, s. r. o., 1. Brečtanová, s. r. o.






