Condominium Renaissance
Nad Devínskou cestou v Bratislave sa nedávno dokončil bytový projekt Condominium Renaissance. Medzi Matejkovou ulicou, Devínskou cestou a údolím Jurigrad vyrástlo sedem terasových domov s jemným, mierne sa obmieňajúcim a variujúcim tvaroslovím. Bývanie kondominiálneho typu spolu s kvalitou architektúry a ponúkaných služieb zúročuje danosti tejto lokality nad Dunajom na maximum. V hustej spleti rezidenčných projektov realizovaných na Dlhých Dieloch rôznej kvality je tento projekt dôkazom, že sa to dá aj kultivovane.
Inšpirácie
„Myšlienku vytvoriť príjemný uzatvorený areál na bývanie s vyšším štandardom a ponukou služieb spojených s bývaním sme sa pokúsili zhmotniť v kompozícii siedmich terasových domov. Ako architekti sme spolu hľadali urbanistické riešenie areálu tak, aby každý dom poskytoval rovnakú orientáciu na svetové strany a najmä to, čo je na tejto lokalite najvzácnejšie – prekrásny výhľad,“ približuje základnú koncepciu projektu architekt Ľubomír Závodný, jeden zo spoluautorov architektonického návrhu.

Jednoduchosť výrazu architektúry poeticky ozvláštňujú plastické fasády. Dvojice domov majú vždy inú výrazovú charakteristiku. Medzi hornými a dolnými domami sú mierne odlišnosti v tvarovaní. Štyri domy majú bočné strany tvarovo obohatené stenami s odlišnými rozmermi okenných otvorov. Ustupujúce podlažia jednotlivých domov sú tiež tvarovo mierne odlišné.
Takto rozpracovaný projekt aj s územným rozhodnutím kúpil od architektov Ľubomíra Závodného a Juraja Polyáka developer – GEOSAN DEVELOPMENT SK, a. s. Projekt kondomínia s architektonickým návrhom dopracúvali architekti až do realizačnej fázy.
Zaostrené na bývanie
Terasovité vilové domy stoja na ploche 1,7 hektára. Je v nich spolu 80 luxusných veľkometrážnych bytov s úžitkovou plochou takmer 20-tisíc m2. Podzemné garáže a vonkajšie miesta na státie ponúkajú spolu 220 parkovacích miest. Pozemok má prevýšenie až 23 metrov. Vďaka tejto konfigurácii a južnej orientácii terénu a kaskádovému ustupovaniu hmoty domov má každý z bytov veľkú slnečnú terasu orientovanú na juh s výhľadom na Bratislavský hrad, Dunaj a jeho rameno.
Projekt bol známy svojím marketingom. Slogany „Najlepšia adresa“ či „Bývanie bez kompromisov“ sa spájali práve s týmto projektom. Samotný názov projektu – Condominium Renaissance – odkazuje na renesanciu ako obdobie plné svetla, radosti a krásy, obnovu čistých ideálnych tvarov, tvaroslovia, terasovitého členenia a osadenie v dramatickom teréne. Sedem bytových domov, kvalitu ktorých má renesancia vystihovať, dostalo mená podľa velikánov – talianskych renesančných výtvarníkov – Da Vinci, Botticelli, Michelangelo, Tizian, Raffaello, Tintoretto a Giorgione.
Bývanie nie sú len byty
Termín kondomínium označuje formu vlastníctva nehnuteľnosti – časť majetku je vlastnená kolektívne a časť individuálne. Kondomíniá sú obľúbeným spôsobom bývania najmä v USA, Kanade a západnej Európe. Zvyčajne sa skladajú z individuálne vlastnených bytov alebo apartmánov a spoločne vlastnenej infraštruktúry, nebytových priestorov, rekreačných a voľnočasových zariadení a pod.
Prečo sa developer rozhodol pre formu kondomínia? „Touto formou bývania, ale aj pokojnou atmosférou tejto časti Bratislavy a celkovým charakterom obytného súboru sme sa primárne zamerali na ľudí s nadštandardnými príjmami a spoločenským postavením, ktorí výraznejšie ako zvyšok populácie potrebujú intimitu a bezpečnosť. Tieto predpoklady ideálne spĺňa práve bývanie kondominiálneho typu. Naša cieľová skupina uvažuje v širších súvislostiach a pri kúpe nehnuteľnosti nechce získať len byt. Rovnako dôležité sú aj možnosti športového, prípadne spoločenského vyžitia a ponúkané služby.
Týmto potrebám cieľovej skupiny sme sa snažili vyhovieť aj realizáciou relaxačného centra vo vnútri komplexu, ktorý obyvateľom kondomínia poskytuje viaceré doplnkové služby. Dáva im tak možnosť alternovať pokojné tiché bývanie v uzavretom objekte so spoločenským životom, to všetko v rámci jedného obytného celku,“ vysvetľuje Róbert Rigo, výkonný riaditeľ spoločnosti GEOSAN DEVELOPMENT SK. Relaxačné centrum obsahuje bazén, squashové ihrisko, golfový trenažér, aerobikovú miestnosť, fitnes a saunu. Obyvatelia majú možnosť komplexných služieb s kontrolou vstupu a vjazdu do areálu, so starostlivosťou o zeleň a bezpečnosť celého areálu a s režimom prevádzkového zabezpečenia funkčnosti všetkých technických zariadení.

Dispozičné variácie
Základnou dispozičnou črtou domov je osová symetria. Na každom podlaží sa nachádzajú iba dva byty, ktoré sú oddelené presvetleným komunikačným traktom. Na posledných ustúpených podlažiach sú umiestnené samostatné byty s veľkoryso riešenou terasou orientovanou na všetky svetové strany. Priestranná obývačka s celozasklenou stenou a s terasou s výhľadom na Dunaj je v priamej väzbe na kuchyňu s jedálňou a v domoch A až D aj na pracovňu. Ostatné obytné priestory s príslušenstvom tvoria nočnú časť bytu. Byty počítajú s miestnosťou chyžnej, ktorá môže mať aj funkciu hosťovskej izby. V každom byte sa nachádza aj šatník a detská kúpeľňa.
V spodnej časti budov sa využíva klesanie terénu prispôsobením funkcie priestorov –V týchto priestoroch sú murované pivničné kobky a garážové státia a za nimi sú v časti vystupujúcej nad terén bytové priestory. V podzemných halách garáží sa počíta s viac než dvomi parkovacími miestami na každý byt.
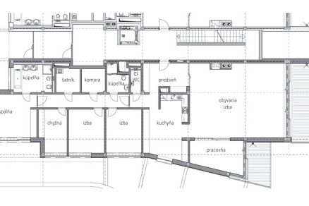
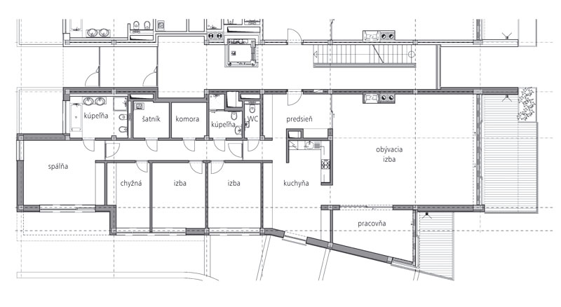
Pôdorys bytu 2B v dome Boticelli
Konštrukčné riešenie
Objekty sú založené na pilótach a oceľobetónovej základovej doske s hrúbkou 400 mm. Nosnú konštrukciu domov tvorí oceľobetónový skelet s monolitickými oceľobetónovými stropmi. Skeletová konštrukcia umožnila veľkú variabilnosť riešenia dispozícií. Obvodové steny a priečky sú murované z tehlového muriva. V podzemných garážach sú zvislou nosnou konštrukciou oceľobetónové steny hrúbky 250, ktoré tvoria s 200 mm hrubým stropom tuhú konštrukciu. V dennej časti jednotlivých bytov je klimatizačné zariadenie, kozub, veľkolamelové žalúzie a predpríprava na zabezpečovací systém. V súčasnosti je predaných približne 80 % bytov. Na správu objektu bola vytvorená spoločnosť Condominium Renaissance, s. r. o., ktorá vykonáva správu do kolaudácie objektu.
Condominium Renaissance
Charakteristika: obytný súbor, novostavba
Investor: GEOSAN ALFA, s. r. o.
Autori architektonickej koncepcie: Ing. arch. Ľubomír Závodný, Ing. arch. Juraj Polák
Generálny projektant: Architektonická kancelária ZÁVODNÝ AA
Generálny dodávateľ: GEOSAN SK, a. s.
Stavebný dozor: REINVEST, s. r. o.
Hlavný inžinier projektu: Ing. Ľubomír Žemla
Správa budov: Condominium Renaissance, s. r. o.
Plocha pozemku: 17 213 m2
Úžitková plocha: 29 538 m2
Počet nadzemných podlaží: 4 + 1 ustupujúce podlažie / penthouse
Počet bytov: 80
Plochy bytov: 70 – 225 m2
Celková plocha bytov: 19 501 m2
Parkovacie miesta v podzemí: 163
Parkovacie miesta na teréne: 57
Začiatok realizácie: 11/2005
Koniec realizácie: 05/2008
Investičné náklady: asi 1 miliarda Sk
Subdodávatelia:
Hrubá stavba: SKYBAU, s. r. o.
Strešná krytina: Sibaz, spol. s r. o.,STAVEBNÁ FIRMA WEISS, s. r. o.
Omietky: STAVEBNÁ FIRMA WEISS, s. r. o., STAVEX Plus, s. r. o.
Okná: INCON, s. r. o.
Dvere: DON Interiér Servis, s. r. o., Slovakia interier, s. r. o.
Podlahy: KORATEX, s. r. o.
Kuchyne: MÖBEL BRENNER, s. r. o.
Vzduchotechnika, vykurovanie, elektroinštalácie: PULSKLIMA, spol. s r. o., Vladimír Mikletič – INSTAMIK, ROSS Slovakia, s. r. o.
Sanita: Cersa, spol. s r. o., Vladimír Mikletič – INSTAMIK, Eurokera, spol. s r. o.
Softvér: AutoCAD
Finančný partner: UniCredit Bank
Martina Jakušová
Foto: Dano Veselský
Grafické prílohy: GEOSAN DEVELOPMENT SK










Condominium Renaissance



