Centrum Gercenova – pokus o revitalizáciu Petržalky
„Je jedno, kde človek žije. Život v Petržalke neurčuje množstvo betónu, ale ľudia, ktorí v nej žijú,“ tvrdí režisér a scenárista Vlado Balco vo svojom dokumente Nebeské geto o tomto bratislavskom sídlisku. Dá sa tomu veriť rovnako ako anonymným príbehom ľudí bezprizorne tápajúcich v neprehľadných uličkách unikátneho stredoeurópskeho megasídliska, o ktorom kedysi prezident Václav Havel vyhlásil, že je to „socialistická králikáreň“. Rovnako sa však dá veriť úprimným snahám o architektonickú revitalizáciu a poľudštenie veľkoplošného panelákového mesta. Jednu z ciest ponúka v tomto smere aj projekt Centrum Gercenova od Ing. arch. Ľubomíra Boháča, ktoré sa nachádza na novovybudovanom Petržalskom korze spájajúcom železničnú stanicu Bratislava-Petržalka s areálom Incheby a Sadom Janka Kráľa. Koncom mája generálny dodávateľ a zároveň investor Reding, a. s., dokončil a odovzdal do užívania štvrtú stavbu, pričom celý súbor by mal byť dokončený v roku 2009.
Humanizačný experiment
Bolo len prirodzené, že nelichotivý prívlastok najväčšej nocľahárne na Slovensku mohol zmeniť len zásadnejší prielom v stave vecí. November 1989 uvoľnil cestu k demokracii a obyvatelia začali požadovať dobudovanie vyššej občianskej vybavenosti vrátane celkového zvyšovania štandardu obytného prostredia. Ako však upozorňuje Ing. arch. Ľubomír Boháč, keďže rozpočet Mestskej časti Petržalka neumožňoval plošné investovanie na celom území Petržalky, rozhodlo sa kumulovať finančné prostriedky do experimentu humanizácie obytného prostredia v urbanistickom obvode Dvory na spomenutom korze.
„Úlohou experimentu bolo zrealizovanie pozitívneho príkladu, ktorý by po preukázaní úspešnosti mohol slúžiť ako vzorové riešenie aj pre revitalizáciu v iných častiach Petržalky,“ hovorí architekt Boháč. „Ako inšpirácia pre koncept revitalizácie sa použil príklad urbanistickej zástavby Starého Mesta vzdialeného od riešeného územia iba o šírku rieky Dunaj.“
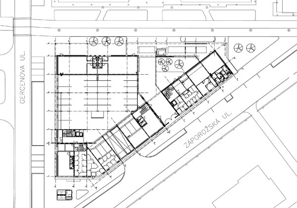
Pri samotnom návrhu humanizácie riešeného územia sa použili revitalizačné prostriedky pešej zóny a blokovej zástavby s integrovanou vybavenosťou v úrovni parteru. Jednotlivé stavby sa navrhli tak, aby vytvárali privátne vnútroblokové priestory – „dvory“ – zrealizované vrátane sadových úprav, drobnej architektúry a umelého zavlažovania. Tieto miesta oddychu sú prepojené s verejnými pešími komunikáciami a spevnenými plochami. Parter všetkých objektov slúži na potreby obchodov, služieb, kaviarní a reštaurácií, ktoré spolu s exteriérovým posedením vnášajú do tejto zástavby fenomén pulzujúceho života. Strechy všetkých podzemných parkovísk sa realizujú ako vegetačné s automatickým zavlažovaním.
Mestské, ale najmä súkromné
Projekt sa realizoval v spolupráci komunálneho a privátnych subjektov. Mestská časť Petržalka zrealizovala pešiu zónu – Petržalské korzo, inžiniersku infraštruktúru a I. etapu prvej stavby polyfunkčného bytového domu. Následne privátny investor – spoločnosť Reding, a. s. – začal postupne realizovať všetkých päť stavieb Centra Gercenova. Po ukončení II. etapy prvej stavby nasledovala III. etapa prvej stavby, druhá a štvrtá stavba. V súčasnosti sa realizuje tretia stavba, ktorá by mala byť ukončená začiatkom roka 2008, a projekčne sa pripravuje na realizáciu piata stavba, s ktorou sa plánuje začať ešte v tomto roku.
„Z pohľadu takejto rozsiahlej, technicky a finančne náročnej investície bol pre nás projekt veľkou výzvou,“ hovorí predseda predstavenstva a generálny riaditeľ Reding, a. s., Ing. Ladislav Veršovský. „Treba si uvedomiť skutočnosť, že v čase, keď sme projekt rozbiehali, teda začiatkom roka 2002, finančné trhy nefungovali ako dnes. Získať úver na výstavbu pre zhotovovateľa stavby, ako aj hypotekárny úver pre potenciálneho kupujúceho nového bytu nebolo také jednoduché.“
Hrozby z vonkajšieho prostredia sa však prekonávali túžbou po vlastnej sebarealizácii i uspokojení potrieb klientov. Už prvé byty sa prispôsobovali ich osobitným požiadavkám, najmä pri úpravách dispozícií, štandardu vybavenia a predovšetkým kvality. Ako však prízvukuje Ladislav Veršovský, zvolený prístup mal vplyv na rast nákladov, a keď chcel generálny dodávateľ a investor zostať na trhu konkurencieschopný, musel hľadať rezervy v organizácii práce a motivácii svojich zamestnancov.
Gercenova – štvrtá stavba

Architektonicko-hmotové riešenie je dané dvojicou hmôt sledujúcich uličné čiary, ktoré vzájomne vymedzujú priestor vnútrobloku. V ňom sa nachádzajú hromadné garáže s vegetačnou strechou a malý komunikačno-oddychový priestor určený pre obyvateľov objektu. Zo strany pešej zóny je stavba ohraničená prekrytou kolonádou a verejnou zeleňou. Vstup do dvojúrovňových hromadných garáží zabezpečuje dvojica polrámp napájajúcich sa na verejnú komunikáciu na Záporožskej ulici. Zo strany Petržalského korza sú v parteri priestory predajne optiky v kombinácii s ambulanciou očného lekára a priestory na zriadenie kaviarne či malej reštaurácie. Časť bytov na 2. NP má na zatrávnenej streche garáží lodžiu s optickým prepojením s ostatnými zelenými plochami. Všetky byty sú vybavené lodžiami alebo balkónmi orientovanými do pešej zóny alebo do Záporožskej ulice.
Možný vzor pre Petržalku
Ako uvádza Ladislav Veršovský, celý obytný súbor bude mať po jeho úplnom dokončení v roku 2009 celkom 330 bytov, 40 obchodných priestorov určených na predajne a služby a viac ako 300 podzemných a nadzemných parkovacích miest a garáží. Vysadených bude niekoľko desiatok už vyrastených stromov a vytvorených niekoľko tisíc štvorcových metrov zelených a spevnených plôch. Celkové rozpočtové náklady komplexu stavieb vrátane vyvolaných a súvisiacich investícií dosiahnu 1,1 miliardy korún.
Aj keď výstavba všetkých objektov ešte nie je ukončená, už dnes možno hodnotiť, či sa napĺňa prvoradý zámer projektu: zrealizovať komplex polyfunkčných domov tak, aby vytvorili obytné prostredie ponúkajúce novú kvalitu bývania nielen pre bývajúcich v novopostavených domoch, ale aj pre ostatných obyvateľov urbanistického obvodu Dvory.
Známku úspešnosti experimentu definitívne vystavia až samotní obyvatelia, ktorí budú mať možnosť porovnať, či zrealizované zmeny majú praktický vplyv na kvalitu ich bývania. Už dnes sa však dá konštatovať, že Centrum Gercenova je projekt, ktorý môže slúžiť ako jeden zo vzorov pre ďalšiu humanistickú kultiváciu ostatných častí Petržalky.

Centrum Gercenova – 4. stavba Polyfunkčný obytný dom
Miesto stavby:
Bratislava, Petržalka – Gercenova ulica
Autor stavby:
Ing. arch. Ľubomír Boháč
Generálny projektant:
Ateliér ART, spol. s r. o.
Architektonická spolupráca:
Ing. arch. Katarína Bendová, Ing. arch. Ján Bogár, Ing. arch. Marián Verčík
Generálny dodávateľ a investor stavby:
Reding, a. s.
Charakter stavby: novostavba
Začatie výstavby: júl 2005
Ukončenie stavby: apríl 2007
Investície: 237,0 mil. Sk
Subdodávatelia:
Zakladanie:
Keller špeciálne zakladanie, spol. s r. o.
Zemné práce: TOŠO, s. r. o.
Hydroizolácie spodnej stavby:
Špeciálne izolácie Bratislava, a. s., Techkon, s. r. o.
Plastové okná: EDILAN, spol. s r. o.
Hliníkové výrobky:
TAKOS SLOVAKIA, a. s., Fenestra SK, spol. s r. o.
Izolácie striech: STRENA, s. r. o.
Zatepľovacie systémy:
SAINT-GOBAIN WEBER TERRANOVA
Požiarne uzávery: PYROBATYS, a. s.
Laminátové podlahy: KORATEX, spol. s r. o.
Interiérové dvere: WOODLAND, s. r. o.
Vchodové bezpečnostné dvere: SHERLOCK Bezpečnostné dvere a trezory, ADLO Bezpečnostné dvere
Výťahy: SCHINDLER VÝŤAHY A ESKALÁTORY, a. s.
Betónové zmesi: LADCE Betón, s. r. o.
Ľudo Petránsky
Foto: Daniel Veselský
Projektová dokumentácia a vizualizácia: Ateliér ART, spol. s r. o.
Text vznikol aj na základe článku Ing. arch Ľubomíra Boháča s názvom Revitalizácia Petržalky













