Centroom v Piešťanoch rozšíril príbeh Auparku
Úspešný príbeh Auparku v Piešťanoch sa rozšíril o ďalšiu kapitolu. Je ňou novostavba polyfunkčného objektu Centroom, ktorá nadviazala na Aupark a spolu s ním vytvorila stredomestskú zástavbu s mestotvorným charakterom. K nákupnému centru tak pribudli rezidencie, administratívne priestory aj doplnkové služby. Aj keď tieto objekty pochádzajú od rozdielnych investorov, majú jednotný architektonický koncept z ateliéru Jančina architekti.
Súčasť širšieho urbanizmuAj tento príbeh modelovala finančná kríza, ktorá investorovi nákupného centra Aupark zmenila pôvodné plány. Ten sa napokon rozhodol zrušiť výstavbu bytov, ktoré mali byť súčasťou nadstavby nad Auparkom, a samostatného objektu hotela, ktorý uzatváral stavbu Auparku ako celku. „V tejto chvíli sme vstúpili do obchodného rokovania s investorom Auparku a predložili sme mu náš návrh na zmenu využitia objektu hotela na polyfunkčný objekt, ktorý by dokázal splniť viacero účelov,“ hovorí zástupca investora Tibor Šranko. „V našom zámere sme chceli nahradiť chýbajúce byty, ktoré sa pri výstavbe Auparku nezrealizovali, a vytvoriť architektonicky súvislý celok. Tak sme chceli predĺžiť nákupnú zónu v celej dĺžke Nitrianskej ulice – a to od jedného po druhý kruhový objazd.“
Výsledkom je komplex s názvom Centroom, ktorý potvrdzuje, že funkcia nákupného centra sa dá zladiť s moderným bývaním a takýto celok s primeranou veľkosťou možno osadiť do centra mesta. Polyfunkčný objekt vo svojom parteri aktívne využíva mestotvorné funkcie a predĺžením pešej zóny do nej prináša pulzujúci život aj po uzatvorení nákupného centra.
Polyfunkčný objekt Centroom je súčasťou urbanistickej premeny, ktorú priniesol už Aupark. Išlo o novú štruktúru dopravy, v ktorej dostali prioritu nielen chodci, ale najmä cyklisti ako symbol dopravy v kúpeľnom meste. Urbanizmus určený ľuďom podporuje aj stromová aleja, ktorá je odvážne nasadená v strede medzi dvomi komunikáciami. Tá sa začína parčíkom pri neďalekom novodobom kostole, pokračuje okružným bulvárom okolo Auparku a vyúsťuje do pešej zóny, ktorá sa končí až Kolonádovým mostom.
Urbanizmus objektu tak sleduje širšie vzťahy, ktoré vyplývajú zo špecifického prostredia kúpeľného mesta. Piešťany sú totiž svojím charakterom, kde silno zaznieva tradícia funkcionalistickej architektúry, veľmi citlivé na vstupy moderných prvkov. Aupark i polyfunkčný objekt Centroom túto osobitú atmosféru pomáhajú dotvárať súčasnými výrazovými prostriedkami, pričom sa snažia byť nenásilnými dominantami.
{video_start}
/UserFiles/File/architektura/stavba-roka/stavba-roka-2011/polyfunkcny-objekt-centroom-5253/ZO%20CENTROOM.flv
{video_end}
| Polyfunkčný objekt Centroom Miesto: Nitrianska ul. a Hviezdoslavova ul., Piešťany Autori architektonického konceptus: Jančina Architekti Generálny projektant: Ing. arch. Juraj Jančina Investor: Centroom, s. r. o. – člen skupiny IURIS GROUP, a. s. Začiatok výstavby: 4/2009 Ukončenie výstavby: 9/2010 Celkové investície: asi 3,8 mil. € Úžitková plocha: 4 311 m2 Predajná podlahová plocha: 3 412 m2 Obstavaný objem: 17 636,72 m3 Generálny dodávateľr: BK Construction, s. r. o. Hydroizolácie: Špeciálne izolácie Bratislava, a. s. Plastové výplne stavebných otvorov: FENESTRA SK, spol. s r. o. Hliníkové konštrukcie – zasklené steny: VEKOS, spol. s r. o. Pilotáže: SOLHYDRO, s. r. o.  | 
Hra tieňov
Napriek proporcionálnej, materiálovej i farebnej súvislosti majú polyfunkčný objekt Centroom i Aupark svojbytný architektonický výraz. Centroom vytvára svojím pôdorysným pootočením dynamický akcent k pokojne pôsobiacim líniám Auparku. Vonkajší výraz Centroomu je premyslenou hrou hmoty a tieňov ako odrazu výrazných materiálových riešení.
„V celom objekte Centroomu prevažuje horizontálne členenie fasád, pričom v časti obchodných prevádzok a administratívy dominujú zasklené plochy,“ približuje architekt Juraj Jančina. „Tie sú kombinované s plnými plochami, na ktoré sa použili kvalitné materiály s uplatnením veľkoplošných obkladov. Exteriér ostatných podlaží je povrchovo upravený fasádnou omietkou.“
–>–>
Fasáda v časti partera a 1. NP je vytvorená kombináciou hliníka, skla a obkladového materiálu Trespa. Na zvyšku fasády sa použila šľachtená omietka na zatepľovacom systéme. Na tienenie bytov z východnej, južnej a juhozápadnej strany slúžia hliníkové exteriérové žalúzie. Dôvodom ich použitia sú veľké okná s nízkym murovaným parapetom vo výplniach okenných otvorov. Zasklené plochy sú v kompozične prehľadne a harmonicky členené a nakombinované s doplnkovými horizontálnymi pásovými plnými prvkami parapetov. 

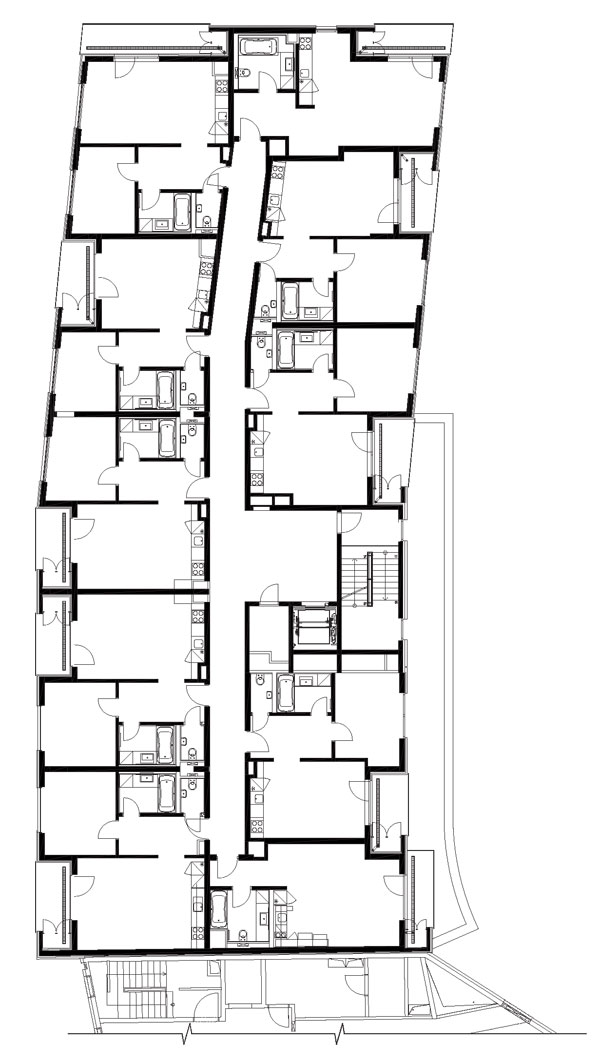
Na 3. NP až 7. NP sa nachádzajú bytové jednotky s variabilnými pôdorysmi a veľkosťami bytov podľa požiadaviek trhu. Každý byt má k dispozícii terasu alebo lodžiu. Byty sú prístupné priamo z chodby vedúcej k výťahu a ku schodisku. Byty na 7. NP majú veľké terasy alebo balkóny s výhľadom na rieku Váh, jazero Sĺňava, protiľahlý kopec Červená veža a panorámu mesta Piešťany.
„Všetky byty majú predprípravu na klimatizáciu všetkých miestností, s uzatvárateľnou nikou na lodžiách s hliníkovými žalúziovými dverami a s možnosťou využitia tohto priestoru aj na iný účel ako na umiestnenie vonkajšej klimatizačnej jednotky,“ dodáva Tibor Šranko. „Miestnosti kúpeľne a WC boli navrhnuté väčšie, aby nebol problém osadiť do kúpeľne práčku so sušičkou a vo všetkých miestnostiach WC sú osadené umývadlá, ktoré by už mali byť štandardom vo všetkých moderne navrhnutých bytoch.
Stavba ako celok je z konštrukčného hľadiska navrhnutá ako monolitický stĺpový skelet. Všetky deliace priečky a obvodové murivo sú z murovacieho materiálu. Pri výbere muriva vychádzali architekti i investori z požiadavky dodržať čo najlepšie tepelnoizolačné parametre a najlepší stupeň zvukovoizolačnej nepriezvučnosti. Aj preto sa do medzibytových deliacich stien v kúpeľniach a WC nezasekávali rozvody vody a kanalizácie, ale umiestňovali sa do predsadených sadrokartónových stien.
Budova je navrhnutá v súlade s požiadavkami na užívanie osobami so zdravotným postihnutím podľa platnej legislatívy. Objekty sú prístupné z úrovne terénu bezbariérovo, jednotlivé podlažia prostredníctvom výťahu. Potrebám osôb so zdravotným postihnutím budú prispôsobené dispozičné a konštrukčné úpravy špecifikované v ďalších stupňoch, najmä rozmery miestností, otvorov a podobne. Súčasťou marketingovej stratégie je zariadený vzorový byt, podľa ktorého záujemcovia môžu získať predstavu o možnosti účelného využitia svojho budúceho bývania.
Aupark v Piešťanoch má za sebou takmer rok úspešnej prevádzky a zdá sa, že jeho architektonický akcent by mohol na túto cestu nastúpiť. Centroom má na to všetky predpoklady.
Situácia
Rez
Typické podlažie
Ľudo Petránsky
Foto: Dano Veselský
Článok bol uverejnený v časopise ASB.
													













						
						
						
						
						
						


