Bývanie je hra: Le Toison d´Or
Medzi dvoma orientačnými bodmi, Porte Louise a Porte de Namur, na ulici Toison d´Or, ktorá je jedným z mnohých rušných bruselských bulvárov, navrhol architektonický ateliér UNStudio zvláštny dom.
Zvláštny je samozrejme svojimi fasádami, ktoré vyvolávajú rozporuplné reakcie. Holandskí architekti sa mäkko a organicky tvarovaných línií, plôch a priestorov neboja. Dokázali to už na mnohých stavbách po celom svete, a dokonca by sa dalo povedať, že bytový dom na Toison d´Or je ich triezvejšou a umiernenejšou realizáciou. Hoci je Brusel európska metropola a pulzujúci život v miliónovom meste je našim končinám vzdialený, vzťah k histórii, urbanistickému kontextu a napokon aj rešpektovanie mestskej mierky nám môže byť príkladom.
Fantasticky odľahčený parter púta pozornosť zaobleným zasklením.
Fasádny raster nadväzuje na slávne art-noveau.
Ak sa invenčným hviezdnym architektom a architektkám podarí presvedčiť dostatočne bohatého verejného či súkromného investora, výsledky tejto spolupráce zdobia mnohé architektonické časopisy. Ale bytový dom je predsa len trochu iná šálka kávy. Taký bytový dom musí ulahodiť nielen samotnému staviteľovi, ale aj množstvu ďalších nájomníkov a majiteľov jednotlivých bytov na horných podlažiach či komerčných priestorov v parteri. Lebo keď neulahodí, investorovi prinesie stratu. UNStudio opäť popustilo uzdu svojej fantázii a ukázalo, že bývanie v meste má šmrnc, je to hra a zábava. Všimnite si raster striedania okien a balkónov. Autori hovoria o V-portáloch, ale priznajme si, vyzerajú ako ladne tvarované poháre sektu.
Dvorové fasády sú triezvejšou verziou uličného konceptu s dôrazom na veľké lodžie.
V poriadku, zlatá bezstarostnosť v bublinkovom opojení nie je celkom v súlade s aktuálnym imidžom ustarosteného hlavného mesta Európskej únie, ale trochu nevtieravého dôvtipu si môže dovoliť aj architektúra… Možno si dokonca budeme musieť priznať začiatok konca nudných jednoliatych sklenených fasád mestských blokov či bytových domov, kde v snahe dodať fasáde plasticitu a umiestniť do dispozícií aj balkóny či lodžie architekt dovtedy vysúva a zasúva hmotu, hrá sa s tieňmi, typmi obkladu, kým mu pod rukami nevznikne ďalšia decentná sivo-béžová nuda.
Z vertikálneho jadra vytvorili architekti oku lahodiaci interiérový skvost, ktorý sa vinie cez všetky poschodia.
Odkaz na Hortu
Prípadná polemika o tom, či Toison d´Or nie je už na hranici gýča, nie je namieste. Fasáda s ľahučkým odkazom na bruselskú secesiu Victora Hortu ponúka síce bohatosť tvarov, ale krotí ju decentná svetlá farba fasádneho obkladového kameňa. O čo robustnejšie a pevnejšie pôsobia obytné podlažia, o to subtílnejšie vyzerá parter. Architekti pomocou V-portálov doslova vyniesli všetku hmotu vyššie, aby prevádzky na úrovni ulice čo najviac otvorili. Medzi okoloidúcimi a interiérom je už len efemérna hranica sklenených výkladov. Fascinujúco tento efekt pôsobí najmä na zaoblených nárožiach budovy. Dvorové fasády si z rušnej uličnej okázalosti ponechali len jemné zaoblenia veľkoryso dimenzovaných balkónov. Otočené sú do tichej oázy komunitnej záhrady, ktorá sa rozprestiera cez dve úrovne dvorovej časti a ponúka rôzne možnosti na relax rezidentov.
Pozdĺžny rez
Západný pohľad
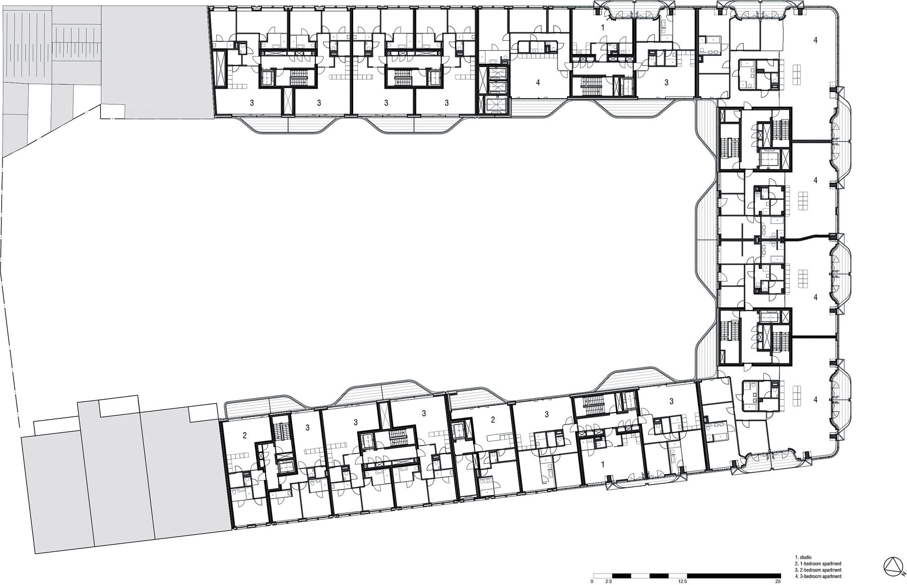
Od 50 po 750
Toison d´Or ponúka 72 bytov s veľkosťou od úsporných 50 m2 až po závratných 750 m2. Investor takouto rôznorodosťou ponúkol možnosti obyvateľom s odlišnými životnými štýlmi. Otvorené dispozície bytov podčiarkuje svetlá výška obytných miestností, ktorá neklesá pod 2,7 m a vo veľkometrážnych bytoch otočených do ulice dosahuje aj vyše 3 m. Výstavbe v urbanizovanom prostredí výrazne pomohlo, že mnohé konštrukčné prvky prichádzali na stavbu ako prefabrikáty. Vyrobené boli z betónu vystuženého sklenenými vláknami, čo je materiál, ktorý umožňuje veľkú variabilitu netradičných tvarov, pričom ostáva tenký a ľahký. Vďaka použitiu kvalitnej tepelnej izolácie, trojitému zaskleniu okien či kogeneračným jednotkám dostala budova už vo svojej projekčnej fáze hodnotenie BREEAM-excellent certificate.
Objemový model celého bloku
Vrstvenie fasády
Konštrukčná schéma nárožia
Le Toison d’Or, Brussels, Belgicko
Miesto: Avenue de la Toison d’Or 25 – 29, Brusel
Investor: TD Immo Invest BVBA, Brussels
Architekt: Ben van Berkel/UNStudio
Belgický architekt: Jaspers-Eyers Architects
Projektový líder realizačnej fázy: Wesley Lanckriet, U/Define Architects
Konštrukcia: ABCIS Van Wetter S.A.
Zhotovovateľ: CFE NV – BPC Brabant, Watermaal-Bosvoorde (BE)
Projekt a realizácia: 2009 – 2016
Plocha pozemku: 5 800 m2
Objem: nadzemná časť 87 000 m3, podzemná časť 110 000 m3, spolu 197 000 m3
Pôdorys 4. nadzemného podlažia
Situácia
TEXT: Mária Nováková
Dokumentácia: UNStudio
Článok bol uverejnený v časopise ASB.























