Byty na Teslovej – farebná fasáda, pohľadový betón a veľa svetla
Keď sa do pozície developera dostane stavebná spoločnosť, je to na detailoch stavby vidieť. V prípade bytového domu na Teslovej ulici v Bratislave v pozitívnom zmysle.
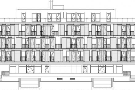
Nikola house dostal meno po Nikolovi Teslovi, po ktorom je pomenovaná ulica, kde je tento bytový dom postavený. Pozorovateľovmu pohľadu určite neujde farebné poňatie fasády. Kombinácia bielej fasádnej omietky a antracitových konštrukcií lodžií a rámov okien tvorí monochromatický základ pre farebné paravány. Žlté, červené, biele, modré a zelené tieniace prvky z ťahokovu sú vtipným odkazom na niekdajšie monoskopy na Orave vyrábaných televízorov. Bytový dom ponúka najmä štartovacie byty určené (nielen) mladým ľuďom. Tí si statický obrazec z televízorov po skončení vysielania budú asi ťažko pamätať, takže Nikola house je v podstate taký malý vtipný exkurz do technickej histórie.
Na ulici sa nestratí
Farebné paravány sú z hliníka upraveného práškovým vypaľovacím lakom. Sú zavesené na konštrukcii lodžií, ktorá je od fasády tepelne oddilatovaná. Takto mohli ostať kovové prvky subtílne a priznané. Nevytvárajú tepelné mosty, takže sa architekt aj investor vyhli zatepleniu dosiek lodžií tepelnou izoláciou s následným omietnutím, ako sa to bežne na stavbách robí. Zrealizované riešenie je krajšie, cenovo rovnako výhodné a z hľadiska údržby neporovnateľné s omietnutými doskami balkónov. Farebná fasáda je hlavným poznávacím znakom domu, na ulici sa nestratí.
„Hoci, mohol by byť o jedno-dve podlažia vyšší,“ hovorí architekt Juraj Závodný. „Je to však kompromis medzi stavebným úradom a územným plánom, architektom a investorom.“
Dva vstupy do garáže
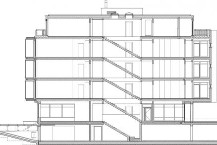
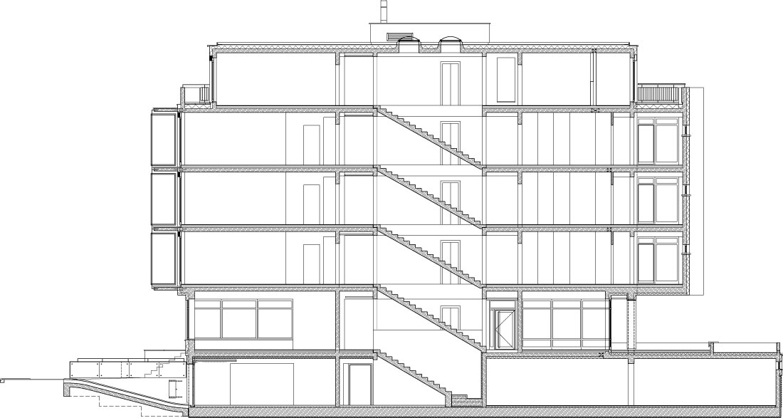
Na štyri nadzemné podlažia a jedno ustúpené sa zmestilo 27 bytov, tri ateliéry a tri priestory na komerčné využitie v parteri budovy. V podzemí je parkovacia garáž s jednoduchou obsluhou. Bolo výhodnejšie vybudovať dva vstupy do garáže než „zokruhovať“ dopravu. Investor tým získal šesť parkovacích miest, takže spolu ich je 42. Suterén je polozapustený, čo umožnilo vytvoriť prirodzené vetranie v garáži a vyhnúť sa investične náročnej vzduchotechnike. Rampy do garáže sú vyhrievané.
Pohľadový betón je v kurze
Tak, ako architekt priznal konštrukciu na fasáde, sú priznané aj povrchy konštrukcií schodísk a rámp. Buď ide o kvalitné betónové prefabrikáty, alebo priamo na stavbe vyhotovený pohľadový betón. Na objektoch určených na bývanie sa s takýmto riešením pri obhliadkach stretávame čoraz častejšie. Ide o sympatický trend, ktorý teší architektov, pretože sú vo svojej tvorbe pravdivejší a môžu sa vyhnúť lacným a len naoko pekným riešeniam. Investori zase objavujú krásu pohľadového betónu cez rozpočet, kvalitne vyhotovený totiž šetrí na obkladoch, sadrokartónovej kapotáži a omietkach.
Technické detaily potešia
Vstupný priestor aj schodiskové haly sú v objekte Nikola house jednoducho vyriešené, jednotlivé podlažia odlišuje farba podlahy. Na každom typickom podlaží je deväť bytov s rozlohou od 44,2 m2 do 74,1 m2, na ustúpenom podlaží sa nachádzajú tri byty s rozlohou od 54,2 m2 do 98,9 m2 a veľkými terasami. Aj byty s menšou rozlohou majú veľkorysé lodžie s hĺbkou 135 cm. Interiér je vďaka veľkoplošným oknám a nízkym parapetom veľmi svetlý.
Veľké okná sú pripravené na dodatočnú montáž exteriérových žalúzií. Byty s malými rozlohami sú určené primárne pre jednu až dve dospelé osoby, prípadne s malým dieťaťom. Plusom sú dobre a logicky vyriešené dispozície a osvetlenie aj malých kuchynských kútov prirodzeným svetlom. Pri obhliadke sme ocenili skladové priestory pre každý byt umiestnené na rovnakom podlaží, s vlastnou elektrickou zásuvkou napojenou na konkrétny byt.
Dobrým riešením je aj technická miestnosť na každom podlaží určená na doplnkové inštalácie, ktoré sa potom nemusia umiestňovať v iných stiesnených priestoroch. Ľahká montáž, obsluha, prípadne výmena dodatočných inštalácií, ako sú optické káble, zabezpečovacie zariadenia a podobne, môže prebehnúť bez zbytočných zásahov do chodieb a spoločných priestorov. Nikola house nie je na bratislavské pomery veľký projekt, ale v čoraz širšej ponuke v segmente malých bytov rozhodne zaujme.
Architekt pracoval s jednoduchými kompozičnými a materiálovými prvkami. V nich a aj vo vzťahu k celkovému uličnému výrazu tkvie výrazová bohatosť objektu ako takého. Upravené okolie budovy, kvalitná realizácia a do detailov premyslené technické riešenie sú prísľubom príjemneho bývania, ktoré sa neopiera len o dobrú lokalitu, ale aj o ľahkú dopravnú dostupnosť centra mesta a výpadovky z Bratislavy.
text: Mária Nováková
foto:Dano Veselský
dokumentácia:ise, s. r. o.
Článok bol zverejnený v časopise ASB.
















