Bytový komplex Alfa, Beta, Gama
Osud lokality pri Horskom parku je podobný iným vychyteným mestským štvrtiam. Atraktívne výhľady, dobrá dostupnosť a voľné pozemky sú lákadlom pre mnohých investorov.
Dobre zregulované územie okolo Búdkovej cesty však zdatne odoláva tomuto náporu, takže nová výstavba, ktorá postupne vypĺňa dosiaľ prázdne parcely, obvykle vykazuje vyššie ambície než len zisk z predaja novopostavených bytov. Komplex Alfa Beta Gama predstavuje bývanie, ktoré je čím ďalej, tým viac vyhľadávané. Ak by sme obmedzili možnosti výberu na rodinný dom alebo byt, ide o kompromis. Vyvoláva to však predstavu akýchsi ústupkov a o tých v prípade obytných blokov na Bartókovej ulici v Bratislave nemôže byť reč.
Obytné bloky obklopené zeleňou sú umiestnené v uzatvorenom areáli s vlastnou správou.
Lokalita neďaleko Horského parku ponúka výborný výhľad. Architekti naň mysleli aj pri koncepcii okenných otvorov.
Prísne regulatívy
Autorský tím v zložení Ing. arch. Peter Čavara a Ing. arch. Peter Sány dodržal predpísané indexy zastavanej plochy 0,20 a prírodnej plochy 0,65 i obmedzenie výšky nových objektov na dve nadzemné podlažia a jedno ustupujúce. Takto nastavené limity už samy osebe hovoria o pomerne veľkorysom rozvrhnutí plôch a objemov v prospech budúcich obyvateľov. Bytový komplex Alfa Beta Gama poskytuje majiteľom bytov príjemné bývanie v uzavretom areáli s vlastnou správou. Vstup je z Korabinského alebo Bartókovej ulice, prepojené sú podzemnou garážou alebo chodníkom pre peších. Bývanie je rozdelené do troch blokov: Alfa, Beta a Gama. V Alfe, Bete a Game nájdeme po tri byty, z toho jeden na posledných dvoch podlažiach je mezonetový. V Game vzniklo navyše ešte päť dvojizbových bytov a jedna garsónka . Jednotlivé objekty osadené v náročnom strmom teréne obkolesujú pekne upravené zelené plochy, ktoré plynulo prekrývajú aj zapustené garáže zeminou na niektorých miestach hrubou až 1 500 mm.
Kompozícia jednotlivých kvádrov a hra z ich posúvaním pôsobí harmonicky.
Index zastavanej plochy je 0,2 a index prírodných plôch 0,65.
Premyslená stavebnica
„Celkové architektonické riešenie je založené na kompozícii stien, hranolov, otvorov na okná, zapustené lodžie a ustupujúce strešné podlažia s terasami,“ uvádzajú autori. Členitosť zástavby sa môže zdať na prvý pohľad dosť neobvyklá, ale kompozícia jednotlivých vysunutých či zasunutých kvádrových blokov pôsobí vyrovnane a harmonicky. Je vidieť, že výsledok sa nepodaril ad hoc, ale ide o premyslený návrh, ktorý bral do úvahy dispozície bytov, celkové funkčno-prevádzkové vzťahy a výsledný vzhľad, ktorý sa ponúka pozorovateľovi zvonku. Alfa Beta Gama je ako rozihraná stavebnica. To je dostatočný výrazový prostriedok, takže treba oceniť veľmi striedmy výber fasádnych materiálov a farieb.
Pôdorys 1. nadzemného podlažia v objekte Alfa
Pôdorys 1. podzemného podlažia v objekte Alfa
Pôdorys 2. nadzemného podlažia v objekte Beta
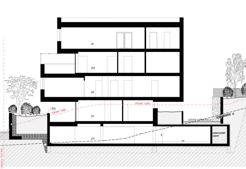
Priečny rez objektom Alfa
Priečny rez objektom Beta
Situácia
Prospešné minimum
Vždy poteší, keď architekti vstupujú do územia architektúrou, ktorá nie je exhibíciou ich tvorivosti. Aj v prípade bytového komplexu na Bartókovej ulici ukazujú kus svojho majstrovstva v tom, že dokázali svoj repertoár obmedziť na minimum práve v prospech výnimočného prostredia a skvelého výhľadu. O vydarenom projekte svedčí nielen to, že je obývaný a zabývaný, ale aj cena CE.ZA.AR 2013 v kategórii bytových domov.
| Bytový komplex Alfa Beta Gama Miesto: Bartókova ulica, Bratislava Autori stavby: Ing. arch. Peter Čavara, Ing. arch. Peter Sány Investor: Anno 2002, spol. s r. o. Dodávateľ: Anno 2002, spol. s r. o. Plocha pozemku celkom: 2 509 m2 Zastavaná plocha: 497 m2 Ostatné plochy: 373 m2 Plocha zelene: 1 639 m2 Podlažná plocha: 2 593 m2 Úžitková plocha: 1 732 m2 Plocha garáží: 480 m2 Obstavaný priestor: 7 455 m3 Kapacita garáží: 18 áut Vonkajšie státia: 10 áut Počet bytov: 15 Ukončenie výstavby: 2012 Hrubá stavba: Finart,s. r. o., HSV, Record TK, s. r. o. Okná: Fenestra Vykurovanie: Thermopol Galanta |
TEXT: Mária Nováková
foto a dokumentácia: Ing. arch. Peter Čavara a Ing. arch. Peter Sány
Článok bol uverejnený v časopise ASB.





















