Bytový dom Silvanium
O Pezinku sa v posledných rokoch hovorí, že je vlastne spálňou Bratislavy. O byty tu majú záujem najmä mladí ľudia, ktorým nerobí problém každodenné dochádzanie za prácou do hlavného mesta, ale z rôznych dôvodov, najmä finančných, nechcú bývať priamo v Bratislave.
Pezinský projekt Silvanium v mestskej časti Muškát je ušitý na mieru práve im. Na základe predchádzajúcich dobrých skúseností s investorom vstúpila banka do projektu financovaním a o byty bol veľký záujem. Lokalita, kde ešte stále pretrváva zmiešaná zástavba bytových domov, výrobných a obchodno-distribučných prevádzok, prešla nedávno čiastočnou zmenou územného plánu mesta Pezinok. Bola predefinovaná na obytnú zónu. Dobré dopravné napojenie na hlavné ťahy a blízkosť centra mesta jej dodávajú atribúty atraktívneho bývania.
Objekt Silvanium sa nachádza na Silvánovej ulici, ktorá je hlavnou prístupovou komunikáciou na sídlisko. Ako sa podarilo tieto priaznivé okolnosti doplniť aj vhodným architektonickým a prevádzkovým riešením, boli sme sa pozrieť priamo v Pezinku. „Začali sme projektom Paegas v susedstve. Jednoznačne ukázal, o čo vlastne majú ľudia záujem, a tomu sme prispôsobili aj Silvanium,“ hovorí architekt Vladimír Halamiček, ktorý zastupuje zodpovedného projektanta aj investora. „Byty musia byť menšie, dvojizbové s výmerou do maximálne 55 m2. Dokonca sme ponúkli aj malé apartmánové byty na prízemí s rozlohou 30 m2 a orientáciou na sever alebo severovýchod a aj tie sa predali.“ Byty na vyšších podlažiach sú orientované prevažne na juh. Prístupné sú bezbariérovo z dvoch komunikačných jadier s dobre vyriešenými a denným svetlom presvetlenými chodbami s jednoramenným schodiskom a výťahom. Byty na piatich nadzemných podlažiach sú rozlohou úsporné, ale majú veľké balkóny, na prízemí dokonca predzáhradky, na streche garáže.
Garáž sa neoplatí
„Garáž v blokoch A, B je polozapustená, prirodzene prevetrávaná. Je v nej dostatok parkovacích miest, ale obyvatelia nemajú o ne záujem ani formou prenájmu. Je to pre nás poučením. Cieľová skupina v okresných mestách je iná. Návratnosť investície do garáže je na dlhé roky, v ďalších etapách budeme parkovanie riešiť povrchovo.“ Z estetického hľadiska to určite nie je šťastné riešenie, ale byty bez miesta v garáži majú konkurencieschopné ceny. Napokon, dá sa predpokladať, že po dostavbe celého bloku sa nájdu aj solventnejší a pragmatickí klienti, ktorí budú chcieť mať parkovanie bez problémov.
Červené balkóny
Bytový dom je založený na pilótach, 1. PP a 1. NP tvorí železobetónový skelet, vyššie podlažia majú stenový systém. Dôraz sa kládol najmä na akustické riešenie stavby, napríklad oddilatovanie schodiska a výťahu. Objekt má energetický certifikát triedy B. „Materiálové a technologické riešenie je určite vo vyššom štandarde, ako ponúka konkurencia v Pezinku,“ dopĺňa architekt. „Byty sme ponúkali ako holobyty, ale až 70 percent klientov využilo možnosť úplného dokončenia interiéru.“ Architektúra objektu je jednoduchá, bez materiálových výstrelkov, autori ju podriadili rozpočtu. Napriek tomu cítiť snahu po originalite, pretože typickým znakom južnej fasády bytového domu sa stali červené fundermaxové balkónové dosky. Tento výrazný prvok architekti už len doplnili pastelovou žltou na vysunutých kubusoch a neutrálnou sivou na ustúpenom poslednom podlaží, čím dosiahli decentnú, ale pritom sviežu farebnosť inak striedmo riešeného objektu. Na severnej strane ešte vizuálne priznali schodisko, čo pridalo kompozícii dynamiku. Z pohľadu investora je, samozrejme, dôležitý fakt, že predaj prvej etapy bol taký úspešný, že sa mohla rozbehnúť príprava ďalších blokov v rámci druhej etapy.
–>–>
![]() |
![]() |
| Silvanium, Pezinok Názov stavby: BYTOVÝ DOM SILVANIUM – BLOK A, B Miesto stavby: Silvánova ulica, p. č. 2062/1, Pezinok Developer: Vista real, s. r. o. Zodpovedný projektant: Karpatský ateliér, s. r. o., Ing. arch. Vladimír Halamiček, Ing. arch. Peter Koman Začiatok výstavby:05/2010 Realizácia: 2006 – 2009 Ukončenie výstavby: 09/2011 Počet bytov: 56 |
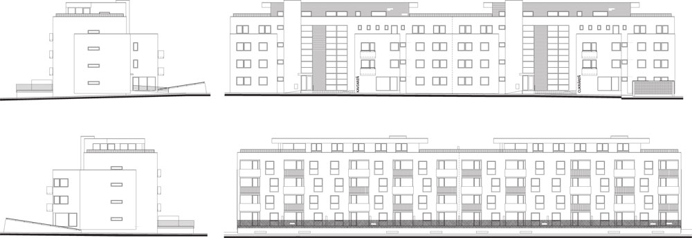
Bočné pohľady
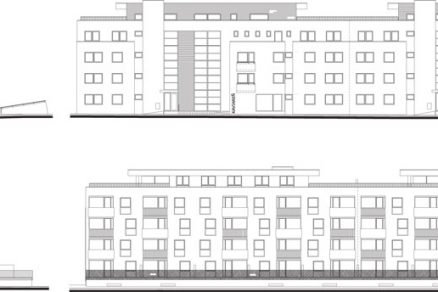
Severná a južná fasáda
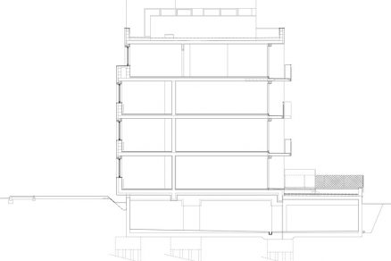
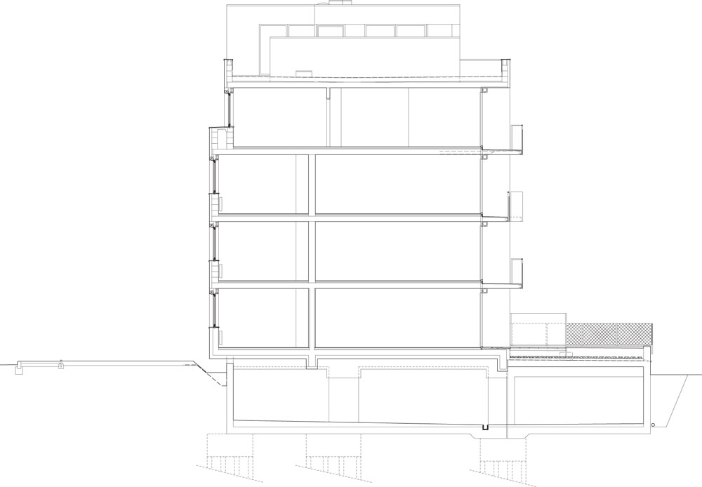
Priečne rezy
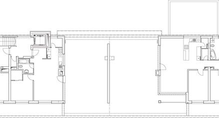
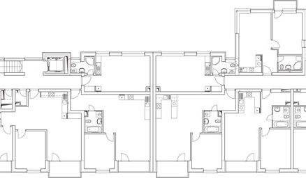
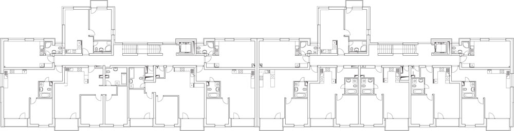
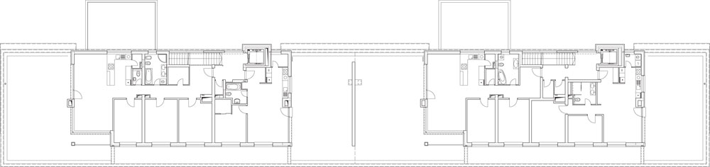
Pôdorys 3. a 5. nadzemného podlažia
Situácia
TEXT: Mária Nováková
FOTO: Dano Veselský
DOKUMENTÁCIA: Vista real
| SILVANIUM PEZINOK OČAMI ODBORNÍKA Ing. Marián Kaššák stavebný a technický dozor Objekt bytového domu Silvanium sa nachádza na okraji Pezinka, v oblasti, kde sa v súčasnosti stretávajú dve urbanistické zóny. Zóna pôvodnej zástavby nízkopodlažných panelových domov s architektúrou a urbanizmom z minulého obdobia a zóna priemyselných a skladovacích areálov s halami, betónovými plotmi, plechovými skladmi a viac či menej udržiavanými budovami. Lokalita pôsobí neútulne, ako miesto vhodné skôr na prechodné bývanie, kým si nenájdete niečo lepšie. Dostať sem záujemcov o kúpu vlastného bytu iste nebolo ľahké. Podarilo sa to zrejme hlavne vďaka cene za byt, čo sa odrazilo na architektonicko-stavebnom riešení domu. Malometrážne dispozície bytov, jednoduché strohé stvárnenie, tradičné konštrukčné riešenia. Jedným z mála ozvláštňujúcich prvkov je zasklená fasádna stena cez všetky podlažia. Slúži na presvetlenie schodiska a chodby spoločných priestorov pred bytmi. Pri týchto rozmeroch by sa pre svoje statické vlastnosti hodila hliníková fasádna konštrukcia. Autori však v duchu úsporného riešenia použili plastové profily a oceľovými nosníkmi z interiérovej strany šikovne zabezpečili aj dostatočnú stabilitu použitej verzie konštrukcie. Keď už sme pri tom ozvláštňovaní vzhľadu, ešte jeden prvok pri pohľade na dom upúta. Je to vjazd do podzemnej garáže. Šikmá exteriérová rampa je potenciálnym zdrojom nepríjemností v čase nepriaznivého počasia, preto sa rozhodli ochrániť ju prekrytím. V tomto prípade ale musíme dať palec dole, lebo ide o konštrukciu typu „päsť na oko“, ktorá nie je nijako zladená s architektúrou stavby (obr. 1, 2). Pri obhliadke vnútorných priestorov bolo vidieť na viacerých konštrukciách a detailoch, že šetrenie nešlo na úkor kvality. V takomto štandarde stavby prekvapilo použitie termokošov na prerušenie tepelných mostov z balkónových dosiek do interiéru alebo použitie liatych anhydridových podlahových poterov namiesto klasických betónových. Vydarila sa aj konštrukcia podzemnej garáže z vodostavebného betónu, škoda len, že to nemá kto oceniť, lebo garáž ostala bez záujmu majiteľov áut.
TEXT: ING. MARIÁN KAŠŠÁK |
Článok bol uverejnený v časopise ASB.























