Bytový dom na ulici 29. augusta v Bratislave
V centre Bratislavy, v prieluke na ulici 29. augusta, vyrástol zaujímavý polyfunkčný objekt. Genéza celého projektu má za sebou niekoľko zásadných zmien, ale výsledok stojí za pozornosť už z dôvodu jeho výnimočnej lokalizácie. Architekti sa snažili vysporiadať s rozdielnymi požiadavkami pôvodného a nového investora, ktorý do projektu vstúpil až po vydaní územného rozhodnutia. Napokon sa však dielo podarilo dokončiť a budova po roku od kolaudácie začína žiť svojím vlastným životom.
Zložité začiatkyPôvodný investor si dal u architektov vypracovať projekt na územné konanie. Parcela sa nachádza v pamiatkovej zóne v centrálnej mestskej oblasti. Najdôležitejším limitujúcim faktorom bol svetlotechnický posudok. Pri kompozícii hmoty sa architekti dôsledne držali požiadaviek na osvetlenie a preslnenie nielen novonavrhovaných priestorov, ale aj bytových jednotiek na susedných parcelách. Funkčnú náplň tvorili byty zodpovedajúce štandardu lokality. Neskôr prišlo v projekte k zmene investora. Ten mal odlišnú predstavu o skladbe a veľkosti bytových jednotiek. Územné rozhodnutie už bolo vydané, zásadné zmeny v koncepte návrhu by znamenali niekoľkomesačné zdržanie v harmonograme realizácie projektu. Na žiadosť nového investora sa teda projektanti pustili do mravčej práce, keď do existujúceho objemu vkladali nové dispozície s odlišnými štandardami. Vo dvoch obytných blokoch so šiestimi nadzemnými podlažiami a podkrovím je dnes 27 bytov a 9 apartmánov, na najvyšších podlažiach sú mezonetové byty s výhľadom na panorámu mesta. Podzemné podlažie je využité na parkovanie a priestranné pivničné kobky pre obyvateľov.

Obytná funkcia determinovala architektonický výraz. Jednoduché biele fasády oživujú veľké lodžie so sivým perforovaným zábradlím a drevenou lamelovou podlahou. Vo vydláždenom dvore poteší malá oáza udržiavanej zelene. Uličná fasáda je mierne vysunutá nad parter cez výšku štyroch nadzemných podlaží. Vyľahčená je vertikálnou štrbinou lodžií a doplnená obnaženou sústavou stĺpov a trámov, ktoré uzatvárajú uličný pohľad. Zámer dotvoriť proporcie fasády v súlade s vedľajším objektom sa dá jasne prečítať. Investor však nepoužil originálny premyslený a kompozične vyvážený návrh architektov. Pohľad z ulice uzatvára oblá metalická strecha. Pôvodne jej tvar zodpovedal kruhovému segmentu, ten z realizačného projektu je ťažko identifikovateľný. Výsledný dojem vyznieva rozpačito a nedotiahnuto. Centrum mesta by si isto zaslúžilo reprezentatívnejší a kreatívnejší investorský počin.
Konštrukcie
Na druhej strane treba uznať, že stavba je zrealizovaná veľmi kvalitne. Investor zvlášť kládol dôraz na minimalizáciu tepelných mostov a nepriezvučnosť deliacich konštrukcií, čo výrazne zvyšuje komfort bývania a obyvatelia domu to určite ocenia.
Objekt je založený technológiou bielej vane, t. j. z vodonepriepustneho betónu, bez potreby dodatočnej hydroizolácie. Prípadné praskliny boli sanované technológiou injektáže metakrylátových gélov, ktoré majú veľkú výhodu v možnosti regulovať čas reakcie podľa aktuálnych požiadaviek na stavbe.
Uličná časť „A“ je postavená z monolitických železobetónových stien doplnených o stužujúce steny a steny výťahovej šachty. Nosný systém časti „B“ vo dvore tvorí pozdĺžny trojtrakt kombináciou atypického železobetónového bezprievlakového skeletu a pozdĺžnych okrajových stien. Horizontálne nosné konštrukcie sú z monolitických železobetónových dosiek. Deliace priečky medzi prevádzkami a funkčnými celkami sú vymurované z tehál s hrúbkou 250 mm a nenosné priečky v jednotlivých bytoch sú tehlové alebo sadrokartónové. Murované obvodové steny fasád sú zateplené polystyrénom s hrúbkou 100 mm, betónové steny majú zateplenie s hrúbkou 150 mm.
Hliníkové výplne okenných otvorov ostali v prenajímateľných priestoroch v uličnom parteri a vo vstupoch do objektov, okenné výplne v bytoch oproti pôvodnému projektu nahradili plastové. Vjazdy do garáží majú lamelové kovové rolety na diaľkové ovládanie. Vstupné dvere do bytov sú bezpečnostné, požiarne s kovovou zárubňou.
–>–>
Balkóny sú na jednotku
Časť bytov je predaná, niektoré sú podľa najnovšieho majiteľa určené na prenájom. Sú pripravené na okamžité nasťahovanie. Výber materiálov a zariadenia je jednoduchý. Štandard vybavenia zahŕňa vo všetkých bytoch rovnaký typ kuchynskej linky so spotrebičmi, kúpeľne a toalety so základnými zariaďovacími predmetmi a obkladom v bielej alebo sivej farbe. Podlahy sú dláždené alebo z laminátu. Okná vo vybraných bytoch sú vybavené štrbinovým vetraním. Tienenie okien a balkónov nie je jednotné, každý obyvateľ si tento problém musí vyriešiť vlastnou cestou. Dá sa očakávať, že jednoduché fasády čoskoro ožijú podľa tvorivosti a vkusu budúcich majiteľov a nájomníkov. Pozitívom z pohľadu obyvateľov sú skutočne veľkorysé balkóny a inštalácie z kovových hrotov proti holubom. 
Výsledok neurazí
Kúsok od strategickej autobusovej stanice, hneď vedľa rušnej Karadžičovej ulice, vyrástol nový dom. Škoda, že zahraničný investor pri riešení realizačných detailov prejavil viac dôvery svojim inžinierom než slovenským architektom, ktorí s projektom žili od začiatku. Nedá sa vyhnúť konštatovaniu, že architektonický výraz je výsledkom rozpačitej spolupráce. Je pravda, že neohúri, ale na druhej strane lokalita, primeraný počet parkovacích miest a výber z rôznych veľkostí a typov bytov, to sú tromfy, ktoré isto u záujemcov budú mať svoju váhu, o kvalite realizácie skúsenou firmou a pod drobnohľadom rakúskeho investora ani nehovoriac. 
Rez celým objektom
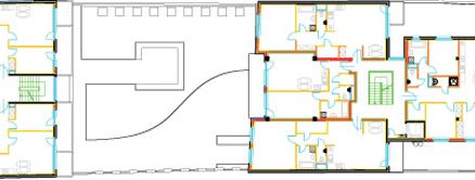
Pôdorys 3. nadzemného podlažia; byty majú rôzne veľkosti a dispozície.
| Bytový dom na ulici 29. augusta v Bratislave Miesto: Ulica 29. augusta, Bratislava Investor: ARWAG Bratislava – bývanie pre náročných, s. r. o. Generálny dodávateľ: ise, s. r. o. Autor projektu: Ing. arch. Pavol Gejdoš, Ing. arch. Štefan Kundrát, Ing. arch. Katarína Poláková Zastavaná plocha: 1 230 m2 Celková výmera pozemku: 1 230 m2 Počet bytových jednotiek: 36 Prenajímateľná plocha: 116,97 m2 Počet parkovacích miest: 52  | 
Mária Nováková
Foto: Dano Veselský
Projektová dokumentácia: ise
Vizualizácia: Ing. arch. Pavol Gejdoš, Ing. arch. Štefan Kundrát, Ing. arch. Katarína Poláková
Článok bol uverejnený v časopise ASB.
													














						
						
						
						
						
						


