Bytový dom Miletičova 60
Do rekonštrukcie bývalej podnikovej ubytovne sa v centre Bratislavy pustil developer z Banskej Bystrice. Zrealizovaná stavba ukazuje, že ak chceme skutočne využiť potenciál mesta, toto je udržateľný spôsob.
Investor PROFINEX holding svoje obchodno-investičné aktivity rozvíja už od roku 2000 a v oblasti nehnuteľností má za sebou viacero projektov v rôznych regiónoch Slovenska. Aktivity spoločnosti spočívajú v štyroch hlavných segmentoch, a to development, stavebná činnosť, obchod s komoditami a private equity. PROFINEX na bratislavský trh prerazil rekonštrukciou vlastnej budovy v centre mesta.
Odpad cez výťahové šachty
Bývalá podniková ubytovňa, neskôr prestavaná na administratívny objekt, stála od roku 2007 prázdna, opustená, uprostred živej rušnej lokality v širšom centre mesta, hneď oproti trhovisku na Miletičovej ulici. Rekonštruovať budovu bez toho, aby ste mohli využiť rozsiahle plochy na zariadenie staveniska, je neľahká úloha. Projektový manažment investora si však s týmto logistickým hlavolamom poradil.
Zrekonštruovaný objekt je na rušnej ulici ľahko identifikovateľný.
Stavba bola doslova rozobraná až po nosné konštrukcie. Rozoberať sa začalo na najvyššom podlaží, práce postupovali podľa profesií smerom dole. Ako posledné sa vyberali z objektu okná, ktoré počas búracích prác chránili okolie pred prašnosťou. Výťahové šachty boli využité ako vertikálne cesty na odstraňovanie stavebného odpadu.
Veľmi detailne rozpracovaný harmonogram búracích prác, ktoré spolu trvali rok, ušetril v rámci realizácie projektu tri mesiace. Obnaženie nosnej konštrukcie, v tomto prípade panelového systému, ukázalo kvalitu socialistickej výstavby. Panely totiž v niektorých miestnostiach „leteli“ aj o 6 cm. Preto boli všetky nerovnosti eliminované predsadeným sadrokartónovým systémom.
O nepriezvučnosť medzi bytmi, ako aj o odhlučnenie obvodových konštrukcií sa postaral akustický sadrokartón a izolácia z minerálnej vlny. Vysoký akustický útlm bol dosiahnutý aj použitím akustických rozperiek („hmoždiniek“), ktoré okrem iného znemožňujú šírenie zvukových vĺn cez priestory vertikálnych šácht.
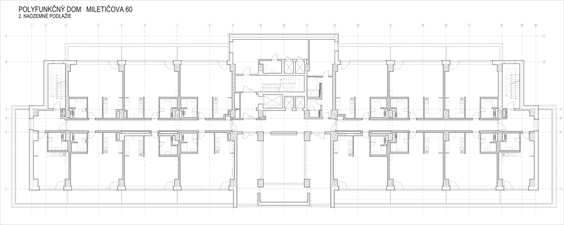
Pôdorys 2. NP
Dá sa bývať hneď
Prízemie a prvé poschodie objektu ponúka priestory vyhradené na retailové prevádzky alebo kancelárie či ateliéry. Na vyšších podlažiach sú byty a apartmány, spolu je ich 152, z toho je 16 mezonetov na najvyšších dvoch podlažiach. Pôvodný objekt narástol len o dve podlažia. Statika konštrukcií by ich zvládla aj viac, investora však vyššie nepustil územný plán. V bytovom dome prevažujú menšie byty a apartmány, dvojizbové a jednoizbové. Rozpredali sa takmer všetky hneď po spustení predaja.
![]() |
| Mezonety na najvyšších podlažiach majú k dispozícii rozľahlé terasy a výhľad na celé mesto. |
Kľúčovým faktorom, ktorý okamžite oslovil klientov, bolo v tomto prípade vybavenie obytných jednotiek. Odovzdávajú sa dokončené, s hotovými podlahami, dverami, zabudovanou kuchynskou linkou aj so spotrebičmi a kompletne vybavenou kúpeľňou. K nasťahovaniu a okamžitému bývaniu klient potrebuje len základný nábytok. Byty pripravené na bývanie majú výhodu aj pre celkové fungovanie objektu, odpadne väčšina hlučných stavebných úprav, ktoré si klienti robia svojpomocne, keď developer predáva holobyty.
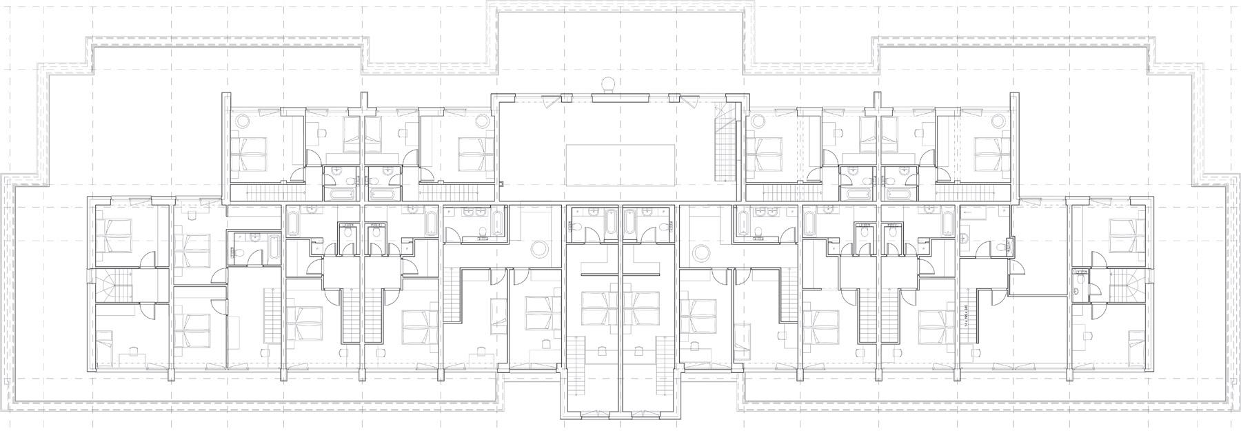
Pôdorys 12. nadzemného podlažia s mezonetovými bytmi
Väčšina jednotiek má priestranné lodžie, mezonetové byty disponujú terasami. Zábradlia sú sklenené, čo zvyšuje komfort bývania a umožňuje nerušený výhľad z interiéru. Na terasách je položené ako pochôdzna vrstva exotické drevo. Ku každému bytu prislúcha pivničná kobka. Tie sú umiestnené v suteréne objektu, v priestore, ktorý v prípade nevyhnutnosti môže slúžiť aj ako CO kryt.
V predpolí bytového domu je parkovacia garáž, ktorá sčasti využíva pôvodné konštrukcie a sčasti je nová. Poskytuje 129 parkovacích miest na potreby obyvateľov domu vrátane 36 parkovacích miest umiestnených na streche parkovacieho domu. Tie prednostne obslúžia obchodné prevádzky a kancelárie v objekte.
Situácia
Živý strom vo vestibule
Zrekonštruovaný bytový dom je vo svojej lokalite neprehliadnuteľný. Tento imidž podporuje dynamická, na viac celkov rozdelená fasáda s netradičnou farebnou kombináciou. Tak, ako už avizovali vizualizácie, je to spojenie zlatého odtieňa omietky so sviežimi vertikálnymi zelenými pásmi. Farebnú hru vyvažuje veľké percento sklených plôch v podobe veľkorysých okien a priehľadného zábradlia, čím sa podarilo neskĺznuť ku gýču, ale udržať si sviežu eleganciu.
Veľkorysý vstupný vestibul so živým stromom je plný svetla.
Dôkazom, že bytový dom Miletičova 60 už dávno nie je ubytovňou, je aj priestranný vstupný vestibul. Kraľuje mu živý strom v sprievode vertikálnej bezúdržbovej zelenej machovej steny. Dostatok svetla vnášajú do priestoru zrkadlá a špeciálne svietidlá. Sympatické je, že investor sa nebál investovaním do originálnych nápadov a do kvalitnej realizácie svoju stavbu odlíšiť od konkurencie, ktorá ponúka v Bratislave podobné projekty.
![]() |
| Sklenené zábradlie a zlatý odtieň omietky posunuli rekonštrukciu na vyššiu úroveň. |
Bytový dom Miletičova 60
Miesto: Miletičova ul., Bratislava
Investor: PROFINEX estate, s. r. o., člen finančnej skupiny PROFINEX holding, s.r.o.
Realizácia: 05/2015 – 05/2017
Bratislava
Text: Mária Nováková
Foto: Miro Pochyba
Dokumentácia: PROFINEX estate, s.r.o.
Článok bol uverejnený v časopise ASB 4/2017.


















