Bytové domy Salajňa
V kysuckej obci Stará Bystrica vzniká ojedinelý projekt dvoch bytových domov Salajňa. Výsledkom bude cenovo dostupné bývanie v malometrážnych bytoch, ktoré sú spojené s komunitným centrom.
Dvorová kompozícia výstavby
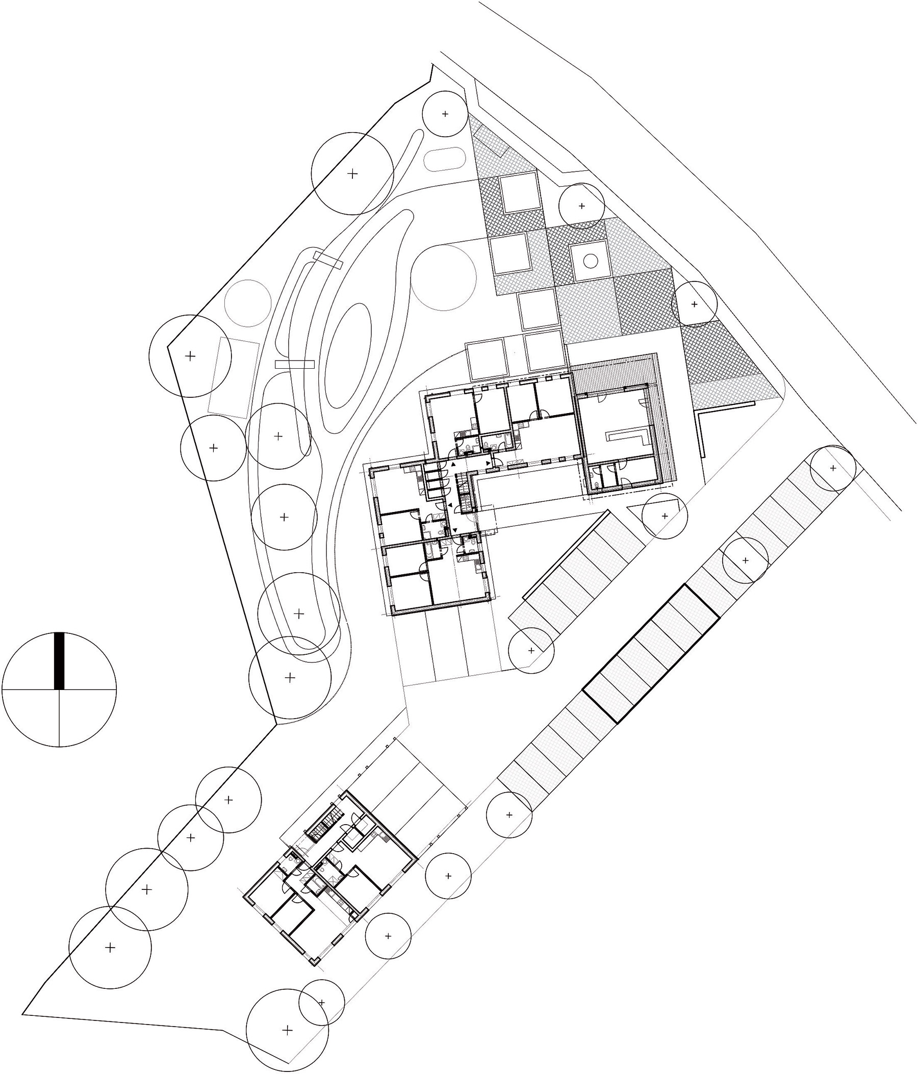
Pozemok s bytovými domami sa nachádza v pôvodnom areáli materskej škôlky, ktorá už doslúžila a bola zbytočnou záťažou pre obec ako nevyužitý pozemok. Ten je na okraji obce, kde vďaka výstavbe týchto dvoch bytových domov a rekonštrukcii priľahlej krčmy vzniká nová miestna časť, ktorá je nezávislá od centra.
Súčasťou bytových domov Salajňa je kaviareň na prízemí a park situovaný pozdĺž toku malej riečky, ktorú architekti začlenili do celkovej kompozície zelene. Keďže ide o nízkonákladové bývanie, byty sú určené najmä pre mladých ľudí a osamelých dôchodcov. Parkovanie je riešené na odstavných plochách čiastočne prekrytých prístreškami.
„Chceli sme vytvoriť domácke prostredie, pripomínajúce predvojnovú výstavbu malých bytových domov v obciach na spôsob Baťových mestečiek,“ približuje projekt architekt Ivan Jarina. „Komunitná záhrada v zadnej časti výstavby by mala nahradiť úžitkové záhrady, ktoré sú obvyklou súčasťou bývania na dedine. Prízemné byty budú terasou spojené priamo s okrasnou záhradou, byty na poschodiach majú veľké francúzske okná.
Chodbu nahradí široká zasklená pavlač, ktorá spojí štyri byty. Tá bude slúžiť ako verejný priestor a bude ukončená jednoramenným schodiskom. Súčasťou bude aj kaviareň, ktorá je pridanou hodnotou pre prítomnú knižnicu a ponúkne možnosť organizovať komorné podujatia.“
Domy majú vyzerať ako roztancované stodoly. Želaný vizuálny efekt sa preto architekti snažili dosiahnuť rozihraním sedlových striech.
Nízkonákladové byty
Byty sú koncipované ako malometrážne s rozlohou od 42 do 60 m2. Ich podobu však ovplyvňoval rozpočet stavby, ktorý sa upravoval ešte počas projektových prác. Napriek tomu, že sú navrhnuté kvalitné obkladové materiály – drevo, klinker –, celkové náklady sa podarilo optimalizovať tak, aby dodávateľ stavby neprekročil rozpočet určený Štátnym fondom rozvoja bývania. „Väčší bytový dom, ktorý je hmotovo rozdelený na dve časti, bude realizovaný zo ŠFRB a bude ponúkaný na nájomné bývanie,“ hovorí Ivan Jarina.
Projekt mal pripomínať malé bytové domy na spôsob Baťových mestečiek.
„Druhý bytový dom, s vyšším štandardom, je určený na predaj a jeho realizácia sa uskutoční nezávisle od štátnej dotácie. Pôvodne mala byť stavba o jedno poschodie nižšia, ale pri ekonomickej optimalizácii projektu vznikla požiadavka na zvýšenie. Keďže sme nechceli, aby objekty vyčnievali z okolitej zástavby, ich výšku sme opticky znížili dreveným obkladom.“
Roztancované stodoly
Architekti sa inšpirovali členitým reliéfom okolitej krajiny, ktorý sa pretavil do tvaroslovia strechy. Vypracovanie štúdie však bolo koncepčne náročné, pretože sa musel vytvoriť nový druh dvorovej zástavby, ktorý zatiaľ na Slovensku nebol realizovaný v takom rozsahu. „Čerpali sme inšpiráciu zo slovenskej rurálnej architektúry, kde sa domy spájajú v dvoroch,“ dodáva Ivan Jarina.
Projekt mal pripomínať malé bytové domy na spôsob Baťových mestečiek.
„Aj preto mali domy vyzerať ako roztancované stodoly. Želaný vizuálny efekt sme sa snažili dosiahnuť roztancovaním sedlových striech, ktoré sú diagonálne osadené.“ Kolaudácia projektu bytových domov Salajňa v Starej Bystrici je naplánovaná koncom tohto roka.
Situácia
BYTOVÉ DOMY SALAJŇA
Miesto: Stará Bystrica, okres Čadca
Architekti: Ateliér VAN JARINA s. r. o.
Ivan Jarina, Martin Kubovský, Štefan Šuster
Investor: EURO-KP, s.r.o.
Výstavba: jeseň 2016 – december 2017
Veľkosti bytov:
- nájomný bytový dom – 10 b. j., 1- až 3-izbové byty, priemerná plocha 60 m2
- bytový dom na predaj – 6 b. j., 2- až 3-izbové byty, priemerná plocha 60 m2
Počet parkovacích miest: 29
STARÁ BYSTRICA
TEXT: ĽUDOVÍT PETRÁNSKY,
VIZUALIZÁCIE, DOKUMENTÁCIA: ATELIÉR VAN JARINA
Článok bol uverejnený v časopise ASB 4/2017.












