Bory sa chcú stať novou mestskou štvrťou Bratislavy
V júni 2013 spustila skupina Penta medzi bratislavskými mestskými časťami Lamač a Devínska Nová Ves výstavbu obchodno-zábavného centra Bory Mall. Uskutoční sa v dvoch etapách, prvá by mala byť ukončená koncom budúceho roka. Celková investícia bude vyššia ako 150 mil. eur.
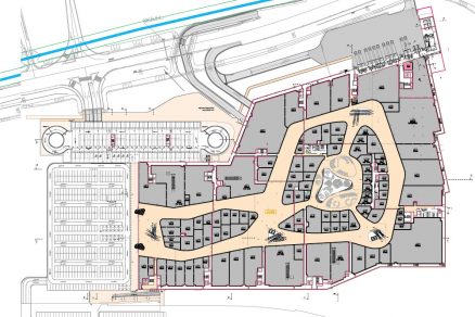
V jarných mesiacoch prebiehali zemné práce, výstavba sietí a komunikácií, v súčasnosti sa už uskutočňuje výstavba samotného obchodno-zábavného centra Bory Mall. V prvej etape projektu vznikne vyše 50-tisíc štvorcových metrov prenajímateľnej plochy, pričom v súčasnosti je s nájomcami dohodnutá na prenájom viac ako polovica. Po ukončení prvej etapy je plánovaná ďalšia výstavba.V Bory Mall budú mať prevádzku napríklad: H & M, Lindex, New Yorker, Intersport, A3 sport, Alltoys, Billa, Panta Rhei a ďalšie predajne, veľké fitness centrum. Pripravuje sa aj široká ponuka služieb a občerstvenia. Súčasťou bude aj koncept pre deti, umiestnený v interiéri aj v exteriéri. V lokalite Bory, v ktorej bude centrum postavené, je už vybudovaná infraštruktúra, komunikácie i okružné križovatky.
Lokalita je tak pripravená na výstavbu ďalších obchodov. Prvým, ktorý tu bol vybudovaný, je Metro Cash & Carry. V apríli 2013 bol otvorený Hornbach zameraný na stavbu a záhradu. Ďalšie prevádzky, ktoré sú v súčasnosti vo fáze vybavovania povolení potrebných na výstavbu, sú Decathlon a Merkury Market. Projekt Bory má ambíciu stať sa novou mestskou štvrťou Bratislavy, ktorá rozšíri mesto smerom na severozápad a prinesie do spádovej oblasti doteraz chýbajúce možnosti nakupovania a trávenia voľného času. Ide o prvý development takéhoto rozsahu na Slovensku.
Spája v sebe možnosti nákupu, miesto na relax, občiansku vybavenosť, administratívne priestory a rezidenčné komplexy. Projekt sa uskutoční v dvoch etapách na území s rozlohou 220 hektárov. Skladá sa z komerčnej zóny Bory Stores, obchodno-zábavného centra Bory Mall a rezidenčnej štvrte Bory Home. Nákupné centrum Bory Mall bude slúžiť obyvateľom mestských častí Devínska Nová Ves, Lamač, Dúbravka, ale aj zákazníkom zo Záhorskej Bystrice, Devína i priľahlého Záhoria.
| BORY MALL Miesto: lokalita Bory medzi mestskými časťami Lamač a Devínska Nová Ves Investor: Penta/Bory Mall Architekt: Massimiliano Fuksas Začiatok výstavby: 1/2013 Ukončenie výstavby: 10/2014 Celková investícia: asi 150 mil. eur Zastavaná plocha budovy: asi 48-tis. m2 Úžitková plocha: asi 115-tis. m2 Prenajímateľná plocha: 53-tis. m2 |
TEXT: ĽUDOVÍT PETRÁNSKY
VIZUALIZÁCIE, DOKUMENTÁCIA: PENTA INVESTMENTS
Článok bol uverejnený v časopise ASB.










