Apartmány a bazén na vode
Bývanie a oddych na vode? Pre takých Holanďanov nič mimoriadne, ale pri pohľade na Wellness/spa v nemeckom Wolfsburgu by sa aj oni presvedčili, že táto alternatívna „bytovka“ sa dá urobiť stále po novom. „Nechceli sme robiť nič zložité, ba práve naopak, snažili sme sa o minimalizáciu tvarov,“ hovorí pre ASB nemecký architekt Max Wehberg, ktorý realizoval túto stavbu neďaleko centrály Volkswagenu. Vznikol tak Ringhaus s výraznými črtami puristickej architektúry či slovami architekta „akési obytné wellness na pontóne“.
Voda ako životné mystérium
Dizajnér a architekt Max Wehberg (1973) je absolventom Univerzity výtvarného umenia v Hamburgu u profesora L. Rosenbuscha, u ktorého získal kvalitné znalosti o tradičných hodnotách produktového dizajnu. Tieto princípy dlhej životnosti ho viedli k vytvoreniu osobitého čistého štýlu, v ktorom odmietol kalkulácie zbytočnej hry s kompozíciou hmôt. Z jeho realizácií vyžaruje záujem o materiál a priemyselné komponenty, pričom sám hovorí o východiskách z architektúry cisterciánskych kláštorov či o japonskom výraze strohosti a jednoduchosti. Ani výsledný tvar Wellness/spa nie je náhodný. Vychádza z Wehbergových produktov malej mestskej architektúry (verejné odpadkové koše, držiaky na bicykle, chodníkové zátarasy pre autá) i z nábytkového dizajnu. Spočiatku ako „freelancer“, dnes už ako odborný konzultant koncernu VW Autostadt, Wolfsburg si Wehberg získava čoraz širší priestor na presadzovanie svojich dizajnérskych myšlienok.

Čistý interiérový dizajn a výrazná pozdĺžna dispozícia vyvoláva u diváka koncentráciu na vzájomný vzťah vody a svetla. Osobitá atmosféra izieb vychádza z použitia dvoch základných materiálov: ľahkého dreva a pohľadového betónu. Svetlo prichádza do stavby veľkorozmernými oknami, ktoré zase zvnútra ponúkajú užívateľovi panoramatický pohľad na okolité mesto. Dom je konštruovaný polopriehľadnými oddelenými stenami, čím sa zabezpečuje zvolená funkcia priestorov, ich intimita, a to bez narušenia príťažlivej atmosféry.
Zostavte si vlastný priestor
Systém usporiadania izieb v Ringhause korešponduje so želaniami a s potrebami súčasného človeka. Flexibilné využitie obývacích a pracovných priestorov sa v dnešnom uponáhľanom svete stáva čoraz dôležitejším. Takáto architektúra môže pružne meniť svoj účel, a to aj bez zmeny montovaných prvkov. Apartmány na vode sú špecifickým typom stavieb, pretože sa môžu umiestniť pozdĺž brehu kanála a zároveň sú energeticky sebestačné s vlastnou čističkou vody. Nehovoriac už o luxuse plaveckého bazéna pod holým nebom, ktorý je osadený pred plávajúcimi apartmánmi na vodnom kanále pretekajúcom cez stred Wolfsburgu.

„Samozrejme, ani zďaleka to nemusí byť len apartmán ako v našom prípade,“ hovorí Max Wehberg. „Ľudia si môžu poskladať dom, rôzne administratívne priestory, ateliéry či výstavné siene. To všetko umožňuje ich jednoduchá konštrukcia.“
Apartmány na vode sa postupne stávajú atrakciou Wolfsburgu a návštevníkov neďalekého luxusného hotela Ritz Cartlon. Je pôsobivým odkazom na niekdajšie nemecké „hausbóty“ (len v Berlíne ich dodnes funguje okolo pätnásť), navyše fungujú ako samostatná jednotka. Je ponukou architektúry tretieho tisícročia na realizáciu domu podľa vlastných predstáv. Pri čoraz vyšších cenách pozemku „na súši“ je to zároveň alternatíva lacnejšieho bývania.
Názov: Wellness/spa, Ringhaus
Miesto: Wolfsburg, Nemecko
Architektúra a dizajn interiéru: Büro Wehberg
Investor: Autostadt GmbH, Wolfsburg
Dekorácie a styling: Büro Angelika Vogt
Stavebná firma: JS – Services GmbH, Kaufungen
Fasády, interiérové obklady, podlahy – sklocementové dosky typu fibre C: Rieder Beton, spol. s r. o.
Dokončenie: 8/2005
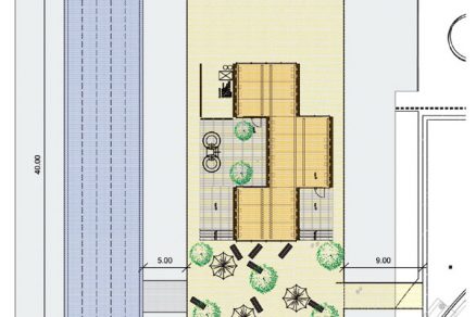
Technické parametre: dĺžka 40 m, šírka 9 m, hĺbka ponoru 1,35 m, úžitková plocha 320 m2
Ľudo Petránsky
Foto: Büro Wehberg











