Apartmánový dom dizajnovo prepojí storočia
Uplynulý mesiac sa začala výstavba nového apartmánového domu, ktorý je projektom Architektonickej kancelárie Jančina. Architektúra zachováva čistotu línií, jasne definovanú hmotu a prvky použité na fasáde.
Pôvodný objekt sa nachádza v širšom centre Starého mesta – na rohu ulíc Žilinská a Štefanovičova. Bol postavený v 40. rokoch minulého storočia a slúžil ako objekt občianskej výstavby. „Keďže išlo o samostatne stojacu budovu polyfunkčného charakteru, svojou náplňou a vhodnou lokalizáciou bola ideálna pre využitie ako bytovo-obchodný komplex,“ hovorí hlavný autor konceptu Ing. arch. Juraj Jančina.
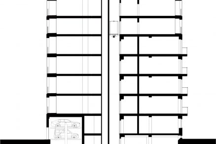
Prístavba apartmánového domu k existujúcemu objektu Žilinská predstavuje nadstavbu 6., 7. a 8. nadzemného podlažia nad existujúcou budovou. Nadstavba a prístavba budú pôsobiť architektonicky odlišne voči pôvodnému objektu – nielen farebne, ale aj vďaka architektonickému prvku lodžií.
„Pôvodná päťposchodová budova pozostávala z kombinovaného noseného a železobetónového skeletu, ktorý sme doplnili o tri novovybudované podlažia s moderným a variabilným architektonickým riešením. Navrhovaná nadstavba a prístavba apartmánového domu bude svojou hmotou z hľadiska urbanistickej zástavby dotvárať jeho riešenie a zároveň definovať novú hmotu a tvar budovy.“
Samotný objekt ukončuje ulicu, rad domov teda pôsobí dominantne v mestskej zástavbe. Napriek tomu deklaruje ľahkosť architektonického štýlu. Časť fasády na nároží ulíc Žilinská a Štefanovičova vytvára priestor na obchodné priestory s možnosťou umiestnenia výkladu. Objekt je z troch strán nezastavaný a svojim budúcim nájomcom ponúkne pôsobivé výhľady na panorámu Bratislavy.
Kompaktnosť výrazu
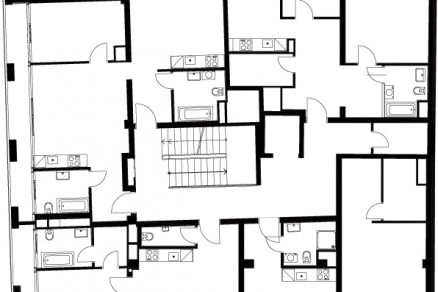
Nový apartmánový dom bude niesť prvky modernej architektúry. Tvorí ho 1 podzemné a 8 nadzemných podlaží. Prístavba apartmánového domu k existujúcemu objektu Žilinská predstavuje nadstavbu 6., 7. a 8. nadzemného podlažia nad existujúcou budovou. Architektonická hmota celého objektu vystihuje, v duchu požiadaviek investora, svetový trend, pričom čisté línie definujú jej kompaktnosť. Nadstavba a prístavba budú pôsobiť architektonicky odlišne voči pôvodnému objektu – nielen farebne, ale aj vďaka architektonickému prvku lodžií. Ďalší moderný prvok objektu je výťah nachádzajúci sa v novej prístavbe, ako aj umiestnenie parkovacieho zakladača na 1. PP a 1. NP, ktorý rozšíri počet parkovacích miest na malom priestranstve suterénu pristavenej budovy.
Nájomné priestory na 1. PP – 3. NP sú určené pre kancelárie alebo služby. Na 4. NP v časti prístavba a na vyšších podlažiach sa nachádzajú apartmánové byty rôznej kategórie a dispozície. Inšpiráciu v podobe interiérového dizajnu pripravil Ateliér Jančina Architekti s použitím dizajnového nábytku Ligne Roset. Prístup do nájomných obchodných priestorov bude okrem hlavného vstupu aj z nárožia budovy cez zníženú časť prízemia. Tento priestor bude prepojený so suterénom s jestvujúcim schodiskom. Technologické miestnosti sú minimalizované na elektrickú kotolňu v suteréne. Ďalšie doplnkové priestory sú komory na podlažiach 2. – 8. NP.
Dokončenie najnovšieho diela Ateliéru Jančina Architekti sa predpokladá v septembri 2016. „Veríme, že sa stane architektonickým dielom, ktoré nielen spríjemní život obyvateľom, ale bude aj centrom s dobrou energiou,“ dodáva Juraj Jančina.
Nadstavba a prístavba apartmánového domu k existujúcemu objektu Žilinská
Miesto: Žilinská č. 2, Bratislava
Autor: Ing. arch. Juraj Jančina, AKJ s. r. o.
Investor: TTT Real s. r. o.
Úžitková plocha: 2 744,51 m2
Zastavaná plocha: 3 326,35 m2
Obostavaný objem: 12 886 m3
Začiatok výstavby: január 2015
Ukončenie výstavby: september 2016
Ľudovít Petránsky
VIZUALIZÁCIE, DOKUMENTÁCIA: AKJ, s. r. o.
Článok bol uverejnený v časopise ASB 01-02/2015















