Brána mieru do sveta hospicu
Idea realizovať zariadenie sociálnej starostlivosti v bratislavskej časti Ružinov sa zrodila už pri koncipovaní miestneho cirkevného centra v roku 1991. Investor, Rímskokatolícky farský úrad Misijnej spoločnosti sv. Vincenta de Paul v Prievoze, včlenil okrem kostola a iných objektov do zámeru aj objekty opatrovateľskej služby pre starých a chorých a škôlky pre postihnuté deti. Postupným vývojom sa myšlienka vykryštalizovala do zámeru vybudovať väčšie viacfunkčné zariadenie, kde hospicová starostlivosť je jeho podstatnou súčasťou, ale integruje aj iné formy sociálnej starostlivosti a penzión pre dôchodcov.
Väzby a limity
Autori tak otvorili celý uličný front areálu, ktorý akoby vytváral ochrannú bariéru pred negatívnym vplyvom rušnej ulice. Tento moment sleduje aj základné formovanie dispozície, ktoré je viac uzavreté a orientované dovnútra okolo veľkého vnútorného svetlíka. Otvorené je len vo východnej a južnej orientácii do pokojovej zóny.
Orientácia jednej fasády hospicu k rušnej Tomášikovej ulici zmierňuje okrem stavebnotechnických a akustických opatrení pás nízkej a vysokej zelene pozdĺž cesty. Potvrdzuje to zelená relaxačná záhrada vo vnútroblokovom priestore, do ktorého sú orientované veľké terasy aj balkóny izieb.
Dispozícia
V suteréne je pre prevádzku hospicu navrhnutá práčovňa, sušiareň a žehliareň, sklady bielizne a sklad zdravotníckeho materiálu. Ako samostatný celok sa tu nachádzajú aj priestory rehabilitácie – telocvičňa, sauna, masáž a elektroliečba. V podzemnom podlaží je aj parkovacia garáž pre 86 osobných automobilov s vjazdovou rampou z Petzvalovej ulice.
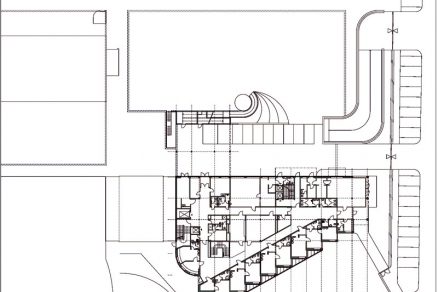
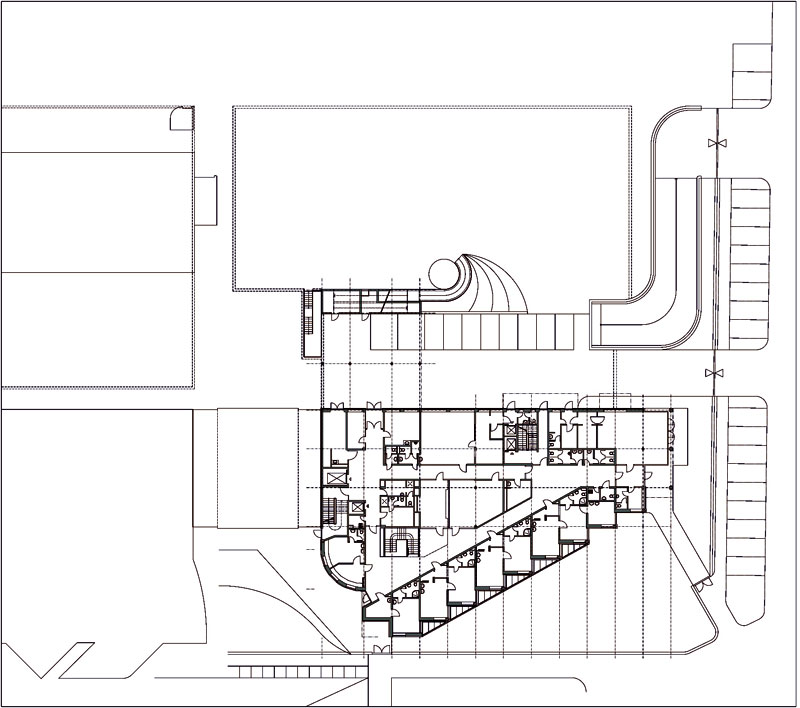
Pôdorys 1. NP
Na 2. NP budú izby s hospicovými lôžkami, priestory denného stacionára, časť oddelenia opatrovateľskej služby pre pacientov s krátkodobým pobytom, vyšetrovňa lekára, vrchná sestra, prípravňa a sklad liekov, kúpeľňa, čistiaca miestnosť, denná miestnosť s jedálňou pre chodiacich pacientov, výdaj stravy a terasa s prístupom do záhrady areálu. Podobné riešenie bude mať aj 3. NP a celé bude slúžiť potrebám opatrovateľskej služby pre pacientov s krátkodobým pobytom.
Na 4. a 5. NP bude penzión pre dôchodcov, ktorý je doplňujúcou funkciou hospicu. Určený bude pre krátko- aj dlhodobé ubytovanie penzistov. Na 4. NP bude spoločenská miestnosť – jedáleň s výdajom stravy, ďalej sklady bielizne, miestnosť pre upratovačku, miestnosť dozoru a zimná záhrada. 6. NP bude od Tomášikovej ulice ustupovať, časť jeho pôdorysu tvorí zelená relaxačná terasa s možnosťou oddychu pre personál. Sú tu navrhnuté priestory ubytovania rádových sestier – klauzúra a ubytovanie pre stážistov, ako aj samostatné oddelenie administratívy pre vedenie hospicu.
Konštrukcia a materiály
Obvodové steny nadzemných podlaží sa konštrukčne navrhnú so zvýšenou zvukovou nepriezvučnosťou, aby eliminovali hluk z dopravy z Tomášikovej ulice. Suterénne steny, nosné steny a stužujúce steny sú monolitické železobetónové. Schodiská budú monolitické.
Strecha je plochá, časť strechy na 6. NP je navrhnutá ako zelená, relaxačná terasa. Fasádne výplne otvorov, okná, balkónové dvere sú drevené, zasklené izolačným dvojsklom, a okná obytných miestností orientované na Tomášikovu ulicu budú mať v najexponovanejších polohách vyšší index zvukovej nepriezvučnosti podľa akustického výpočtu. Ostatné výrobky a materiály budú štandardné.
Rez
Hospic Pax Porta
Investor: Rímskokatolícka cirkev, Farnosť Bratislava-Prievoz, Nadácia J. Murgaša, Bratislava, Občianske združenie SLNEČNICA Slovensko
Autori: akad. arch. Eduard Šutek, Ing. arch. Andrej Šutek
Generálny projektant: ARCHITEKTI B.K.P.Š., s. r. o., Bratislava
Spolupráca: Ivana Kučerová, Pavol Foltán
Generálny dodávateľ: vo výberovom konaní
Úžitková plocha: 5 423 m2 + 2 161 m2 (podzemná garáž)
Celkové investície: asi 180 mil. Sk
Začiatok stavby: 2008/2009
Koniec stavby: 2010
(pet)
Vizualizácie: B.K.P.Š.









