aj prezentacnu halu na obrabacie stroje zverte architektovi
Galéria(9)

Aj prezentačnú halu na obrábacie stroje zverte architektovi

Nová budova, napriek tomu, že stojí nemalé finančné prostriedky, dokáže posunúť biznis spoločnosti dopredu. A keď úspech naštartuje samotné architektonické riešenie, je o dôvod viac na radosť.

aj prezentacna halu na obrabacie stroje zverte architektovi 7255 big image
situacia delta05 pre asb model big image
pilart rez pozdlzny big image
pilart pohlady big image
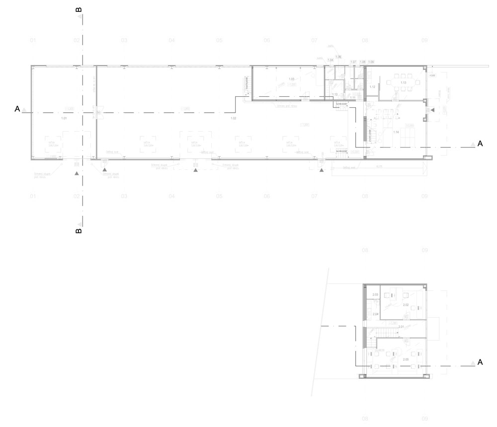
pilart 1np 2np big image
mg 9721 big image
mg 9685 big image
mg 9642 big image
Čo sa dá očakávať od haly určenej na prezentáciu drevo- a kovoobrábacích strojov, ku ktorej treba doplniť nevyhnutné zázemie pre zamestnancov a malú administratívu? Koľkí investori by bez váhania zadali takúto zákazku do rúk architekta v časoch, keď sa šetrí na každom kroku?

Nadchla skica
„Tvar budovy, ktorý navrhol architekt, sa stal našou poznávacou značkou v okolí. Nová budova nás skvele reprezentuje,“ hovorí David Mauder, jeden z konateľov spoločnosti Pilart. Pôvodné priestory v centre mesta Blansko už nevyhovovali požiadavkám firmy na prevádzku. Majitelia si vyhliadli svahovitý pozemok nad mestom a kúpili ho rovno s hotovým projektom na veľkopriestorovú halu. Ešte pred výstavbou však do hry vstúpila spoločnosť Delta Projektconsult, ktorá investorov presvedčila o zmene projektu. „Jednoduchá architektonická skica majiteľov nadchla a mohli sme sa pustiť do projektovania. Podmienkou však bolo, aby sme dodatočnými prácami neprekročili pôvodný rozpočet o viac než 3 až 4 %,“ vysvetľuje architekt Adam Cifra z Delta Projektconsultu. „Udržať financie v stanovených medziach nebolo počas výstavby jednoduché. Vyžadovalo si to náš neustály dohľad počas prípravnej aj realizačnej fázy. Podstatné však bolo to, že nápad, ako pretaviť zameranie firmy priamo do jej budovy, investorov nadchol a stotožnili sa s ním.“

Sivá ako pozadie
Už samotná poloha objektu je jeho veľkou výhrou. Je totiž veľmi dobre viditeľný z oboch smerov hlavnej cesty, ktorá sa vinie malebným údolím. Výrazný motív dohora otočených ozubov píly je natoľko dominantný, že mu bolo podriadené dotvorenie celého objemu stavby. Od terénu je hlavná hmota odsadená metrovým soklom, čím sa ju podarilo odľahčiť a zharmonizovať vzťah výšky a dĺžky objektu. Farebnosť v exteriéri aj v interiéri je veľmi striedma, dva odtiene sivej vytvárajú príjemné pozadie na výrazne červené logo firmy aj na inventár. Dvojpodlažná administratíva je schovaná za zvýraznenou časťou s logom, jej jednoduchý kubus s pásovými oknami sa pozorovateľovi ukáže až na príjazdovej komunikácii. Keďže kancelárie sú otočené na juh, fasádu ozvláštňujú kovové lamely, ktoré majú hlavne tieniacu funkciu, ich dekoratívnosť je druhoplánová. Hlavný vstup do firmy je relatívne malý, je však akcentovaný markízou. Návštevník sa hneď dostane do predajne s náhradnými dielmi. Veľké sklenené dvere umožňujú priehľady aj do výstavnej haly, kde sú umiestnené obrábacie stroje. Ozuby na fasáde majú svoj význam, týmto tvarom sa podarilo dosiahnuť veľkorysé presvetlenie zo severnej strany. „Svetlo je príjemné, rozptýlené, vhodné na prezentáciu strojov. Tým, že sú okná otočené na sever, interiér sa zbytočne neprehrieva,“ vysvetľuje architekt a dodáva: „… navyše, pri vstupe do haly vzniká zaujímavý efekt, keď sú pásy okien zoradené pod sebou.“

Stavať v kríze?
Oceľová konštrukcia dostala plášť z PUR panelov so zateplením. Toto riešenie drží platby za energie na prijateľnej úrovni, pretože halu treba v chladnom období vykúriť na približne 17 až 18 °C. „Stavať v krízových časoch sa v podstate oplatí,“ vysvetľuje konateľ spoločnosti rozhodnutie investovať do novej budovy. „Všetky stavebné materiály sú aj o 30 % lacnejšie.“ Nadšenie investora sa pri výstavbe prenieslo aj na realizátorov. Výsledkom je kvalitná stavba, ktorú firmy používajú ako svoju referenciu. „Stáva sa nám, že prídu aj ďalší investori, ktorí majú záujem investovať v okolí a naša budova ich oslovila,“ pripomína David Mauder a na záver vysloví pochvalu všetkým, ktorí sa na stavbe podieľali: „Usilovali sme sa o zastúpenie významného nemeckého výrobcu v našom regióne. Dôveru sme získali okrem iného aj tým, v akej budove sídlime. Obchodného partnera oslovil jej tvar a kvalita vyhotovenia. Mohli sme prijať ďalších ľudí a náš biznis to posunulo na úplne inú úroveň.“


TEXT: Mária Nováková
FOTO: Dano Veselský

Článok bol uverejnený v časopise ASB.