Škola a plaváreň
Hoci Tonstad nemá viac ako tisíc obyvateľov, na investícii do infraštruktúry a do vzdelania Nóri nešetria a aj v takomto malom sídle, ktoré je na naše pomery skôr stredne veľká obec, poskytnú deťom vynikajúce podmienky na vzdelávanie.
Mestečko Tonstad leží v južnej časti Nórska na brehu jazera Sildarsvatner pri ústí rieky Sira. Moderné priestory v areáli bokom od centra mesta za riekou slúžia škole s pridruženou plavárňou. Na Slovensku nepredstaviteľné, takúto budovu by sme hľadali márne, či už v malej obci, alebo vo väčšom meste. V Nórsku je to však príjemná realita. Sympatické na ich prístupe je, že sa neboja nechať na deti pôsobiť jednoduchú funkčnú architektúru s kvalitným interiérovým dizajnom.
Plášť tmavý ako nórsky les
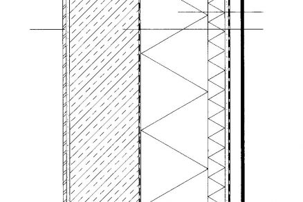
Škola a plaváreň v Tonstade vznikli rekonštrukciou a prestavbou bývalého skladu v spojení s novou prístavbou. Výsledná realizácia tieto priestory zjednotila rovnako poňatou fasádou s obkladom z tmavosivých cementovotrieskových panelov. Farebne stroho poňatú fasádu oživuje svetlý dubový obklad a sčasti aj farebné vkladané panely. Architekti tiež citlivo pracovali s veľkoplošnými oknami a pravidelnými rastrami menších okien. Tmavý plášť objektu vytvára prvý plán vnímania objektu. Javí sa ako prirodzená súčasť drsného severského lesa v pozadí. V druhom pláne sivú hmotu odľahčujú zasunuté závetria ako vstupy do jednotlivých tried so svetlým dreveným obkladom a subtílnymi stĺpmi. Týmto zasunutím vznikla okolo budovy chránená ochodza. Celkový dojem z exteriéru rozveseľujú modré a zelené pásy na okenných osteniach. V rôznych uhloch pohľadu vykúkajú na pozorovateľa ako zvedavé deti.
Vestibul patrí všetkým
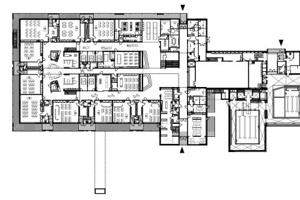
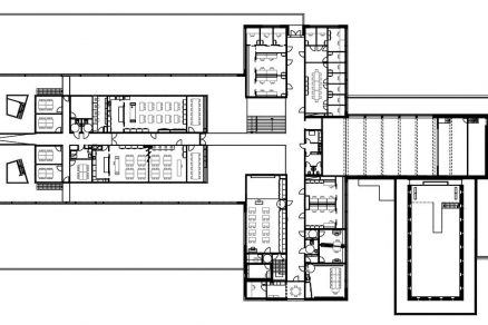
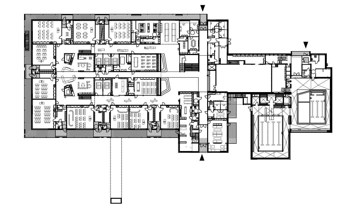
Dvojpodlažná budova je v pôdoryse pomerne členitá, vychádza však z daného lokalitného programu. Vyučovanie prebieha v novej budove v západnom krídle. Nahradila dva staré bloky, pri ktorých už rekonštrukcia neprichádzala do úvahy. Žiaci prichádzajú do tried samostatnými vchodmi. Tie sú rozmiestnené po obvode budovy, takže majú dostatok denného svetla. Pred vstupom do každej triedy majú deti šatne a vlastné WC. Triedy majú vždy dvoje dvere, okrem tých zo šatne vedú ďalšie do spoločnej chodby. V strede školskej budovy sú umiestnené rôzne obslužné priestory, laboratóriá a schodiská. Denné svetlo sem dopadá z pásových okien bazilikálneho typu alebo sklenenými stenami otočnými do vestibulu. Západné a východné krídlo sa spájajú v rozľahlom školskom vestibule. Vzdušný svetlý interiér zaplavuje denné svetlo z okien umiestnených doslova pod krídlami strechy. Nadčasovú kombináciu sivej liatej podlahy, čierneho kovového zábradlia a bielej farby na stenách pretepľuje drevený funkčný mobiliár a drevený obklad stien z brezovej preglejky natretej nabielo. Dynamiku získava priestor nielen vďaka výraznej červenej čelnej stene východného krídla, ale najmä vďaka viacúrovňovému usporiadaniu. Živá komunikácia tak môže prebiehať na rôznych výškových úrovniach.
Architekti vymysleli vo vestibule rôzne relaxačné zóny, ktoré sú vhodné nielen na oddychové aktivity, ale aj ako neformálne študovne či symbolické auditórium. Z vestibulu sa predchádza do východného krídla s viacúčelovou sálou a dvoma bazénovými halami. Fascinujúce je najmä ich minimalistické poňatie so stropmi z pohľadového betónu doplnené o typicky škandinávsky brezový akustický obklad. Jediným grafickým výstrelkom, ak sa to dá vôbec tak nazvať, ktorý narúša dokonalú jednoduchosť priestoru, sú rôzne skrátené drevené lamely. Vytvárajú nepravidelnú krivku, ktorá necháva fantázii voľný priebeh, či už v nej vidíte rytmus srdca, siluetu mesta, vrcholce stromov, alebo niečo iné.
Škola v Tonstade vyzerá na prvý pohľad nenápadne. Ponúka však toľko možností kochať sa v dokonale zvládnutej severskej architektúre, až sa pozorovateľ nevyhnutne dopracuje k otázke: Môže základná škola vyzerať takto aj na Slovensku?
Škola a plaváreň
Miesto: Tonstad, Sirdal, Nórsko
Architekt: Filter Arkitekter
Kolaborator: Richard Engelbrektson
Krajinný architekt: Bar Bakke
Obklad fasády: EBM
Text: Mária Nováková
Foto: Nils Petter Dale/EBM

















