Späť na článok
Trvalo udržateľný víkendový dom
12 / 14
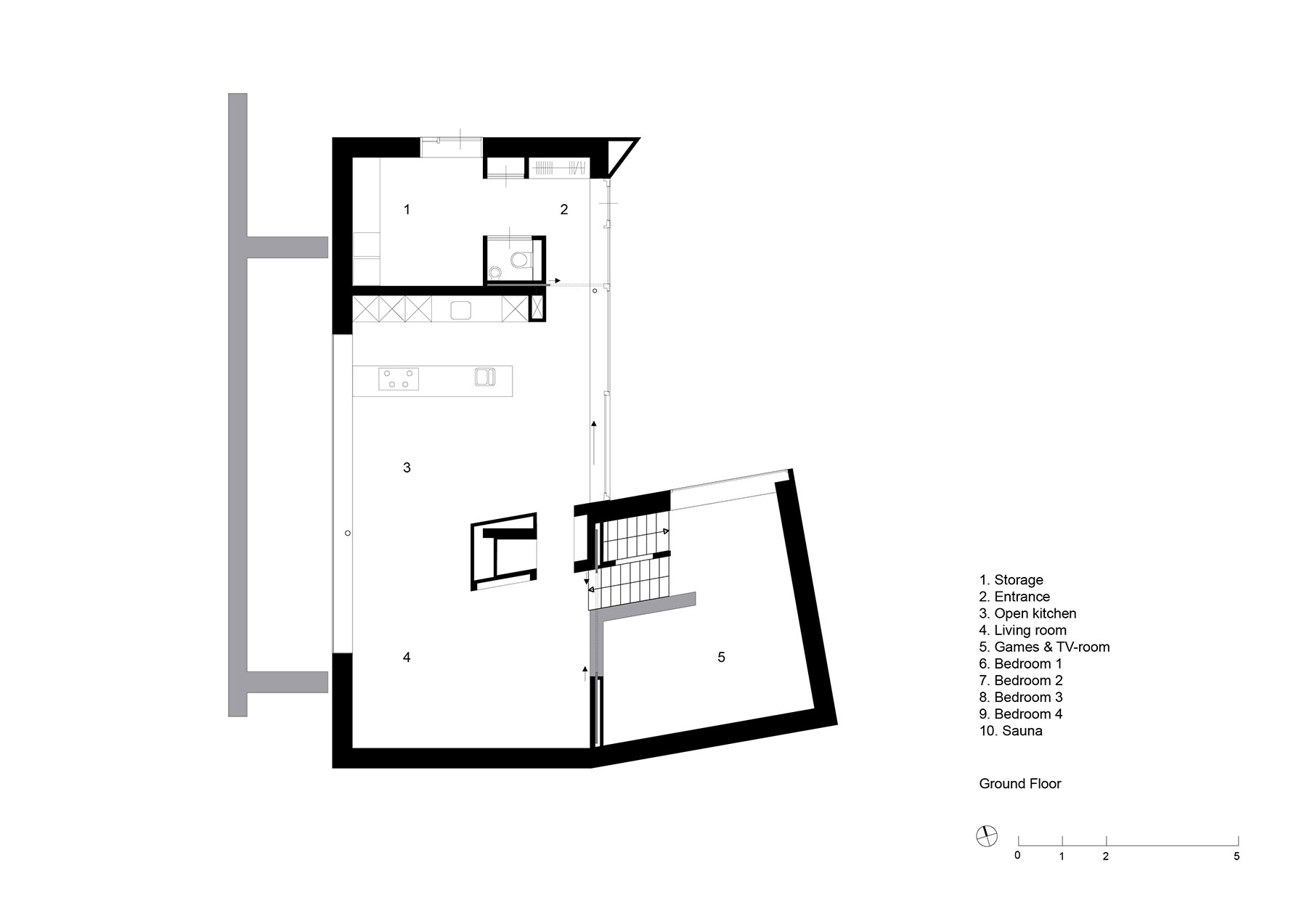
10 DZH DockbootHolidayHome 02 GroundFloor