Späť na článok
Trvalo udržateľný víkendový dom
11 / 14
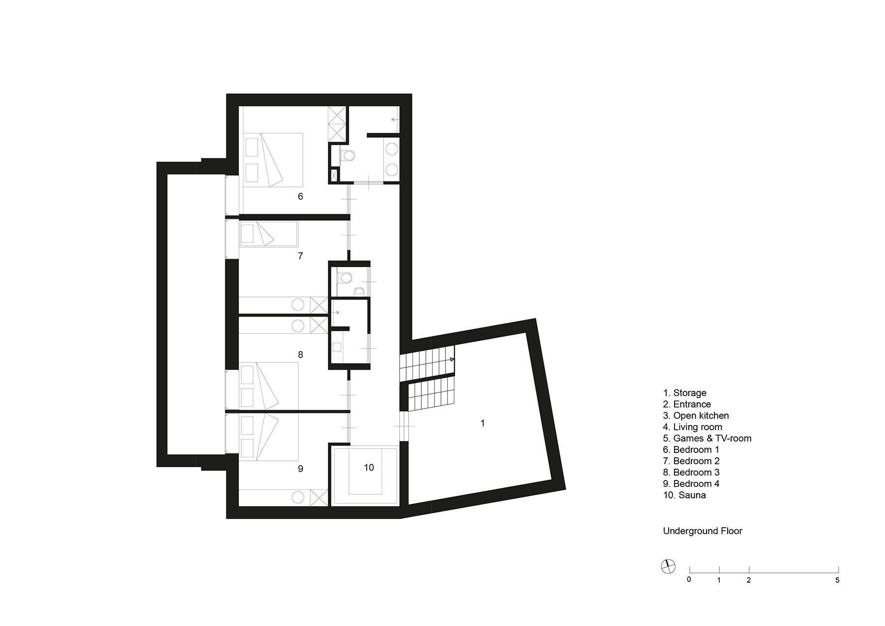
09 DZH DockbootHolidayHome 03 UndergroundFloor