Späť na článok Starý dom v novej podobe s kamennou fasádou a „čipkovaným“ tienením
18 / 20
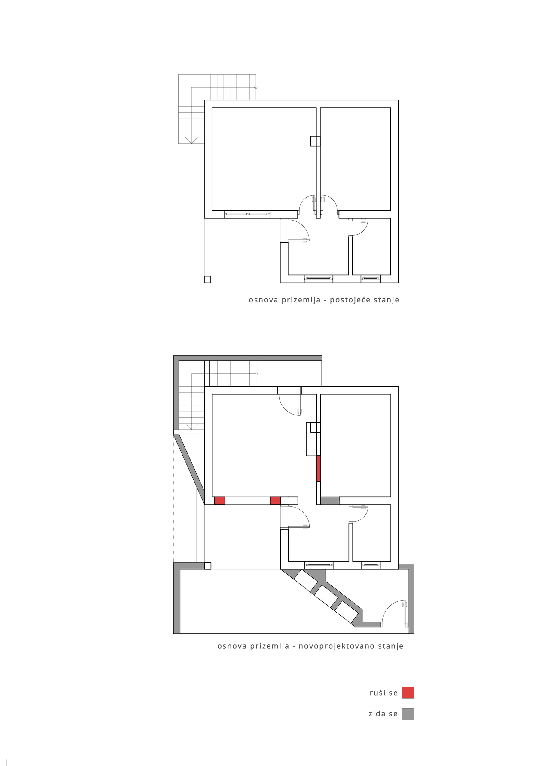
Rusi se zida se prizemlje
Rusi se zida se prizemlje
ASB Logo ASB Logo