Späť na článok Starý dom v novej podobe s kamennou fasádou a „čipkovaným“ tienením
17 / 20
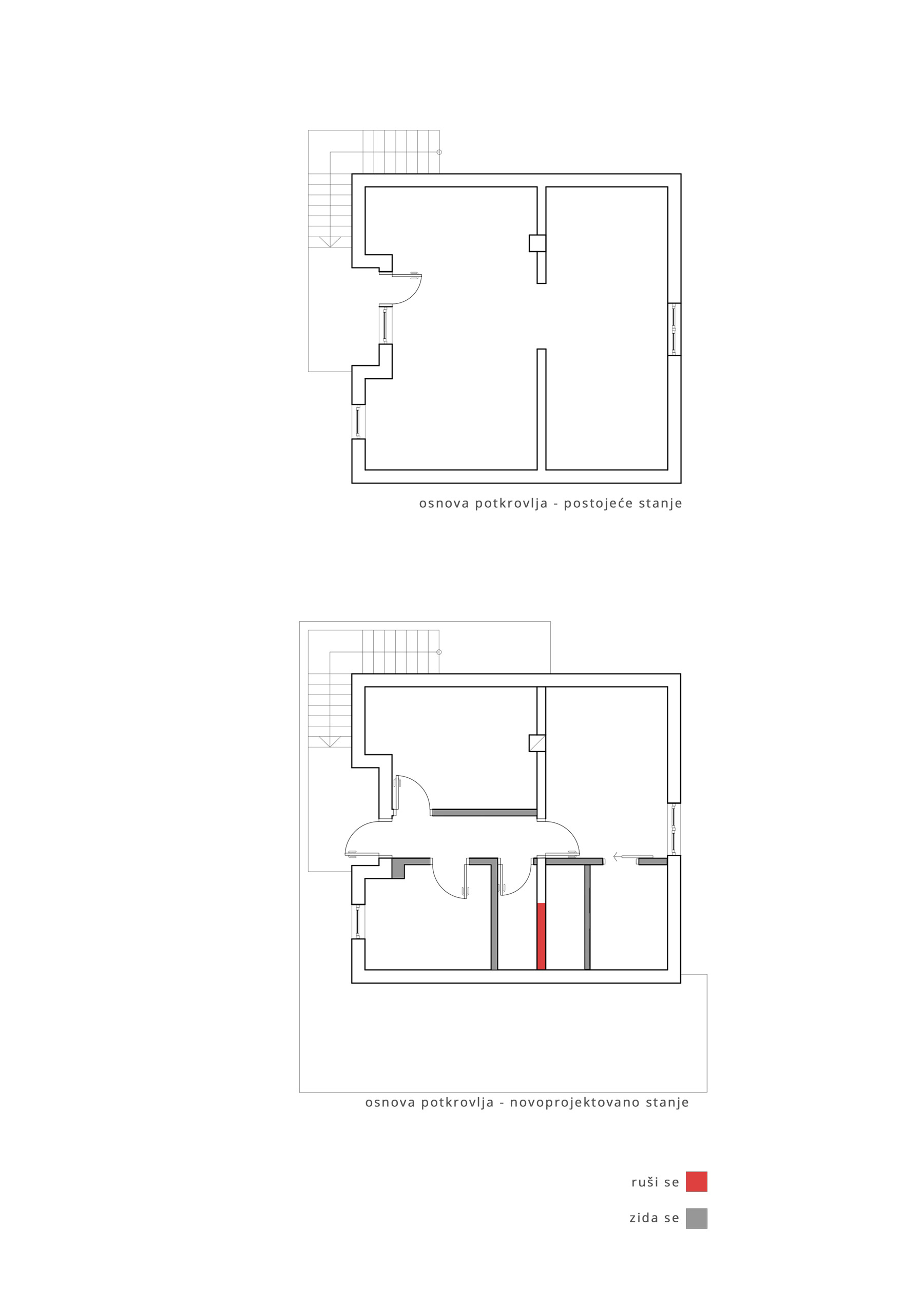
Rusi se zida se potkovlje
Rusi se zida se potkovlje
ASB Logo ASB Logo