Späť na článok Bývanie pre architekta
16 / 19
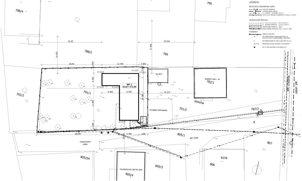
V Situacia