Späť na článok Bývanie pre architekta
15 / 19
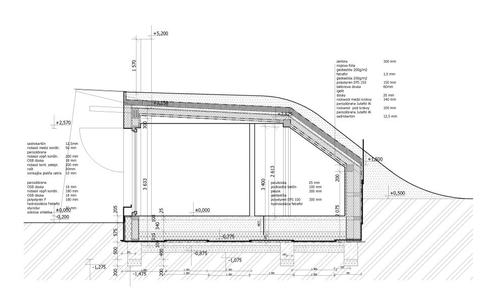
V priecny rez