Späť na článok
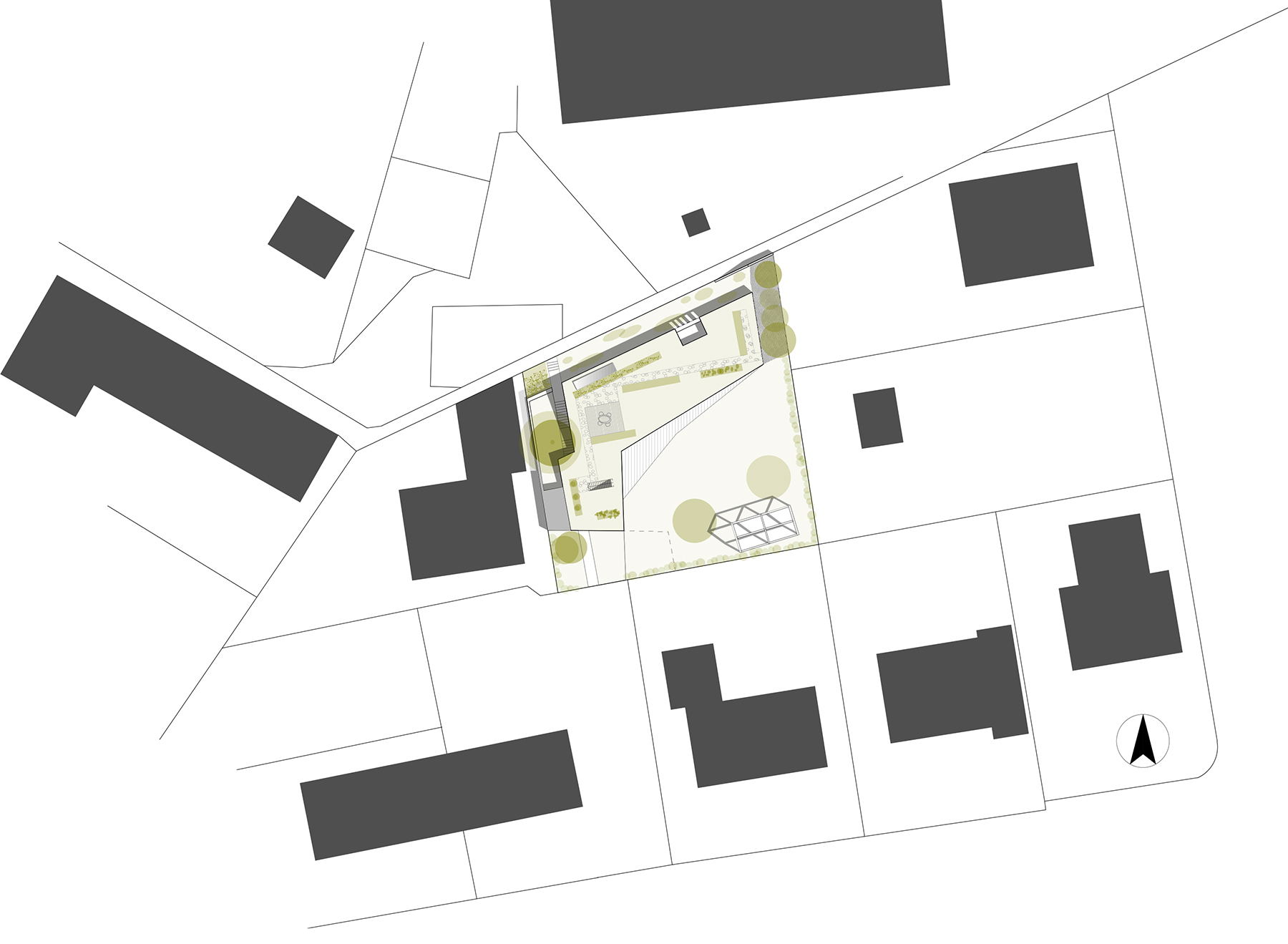
Gartenhouse – železobetón a záhrada aj na streche
9 / 38
1324 Publikationsplan 5