Späť na článok
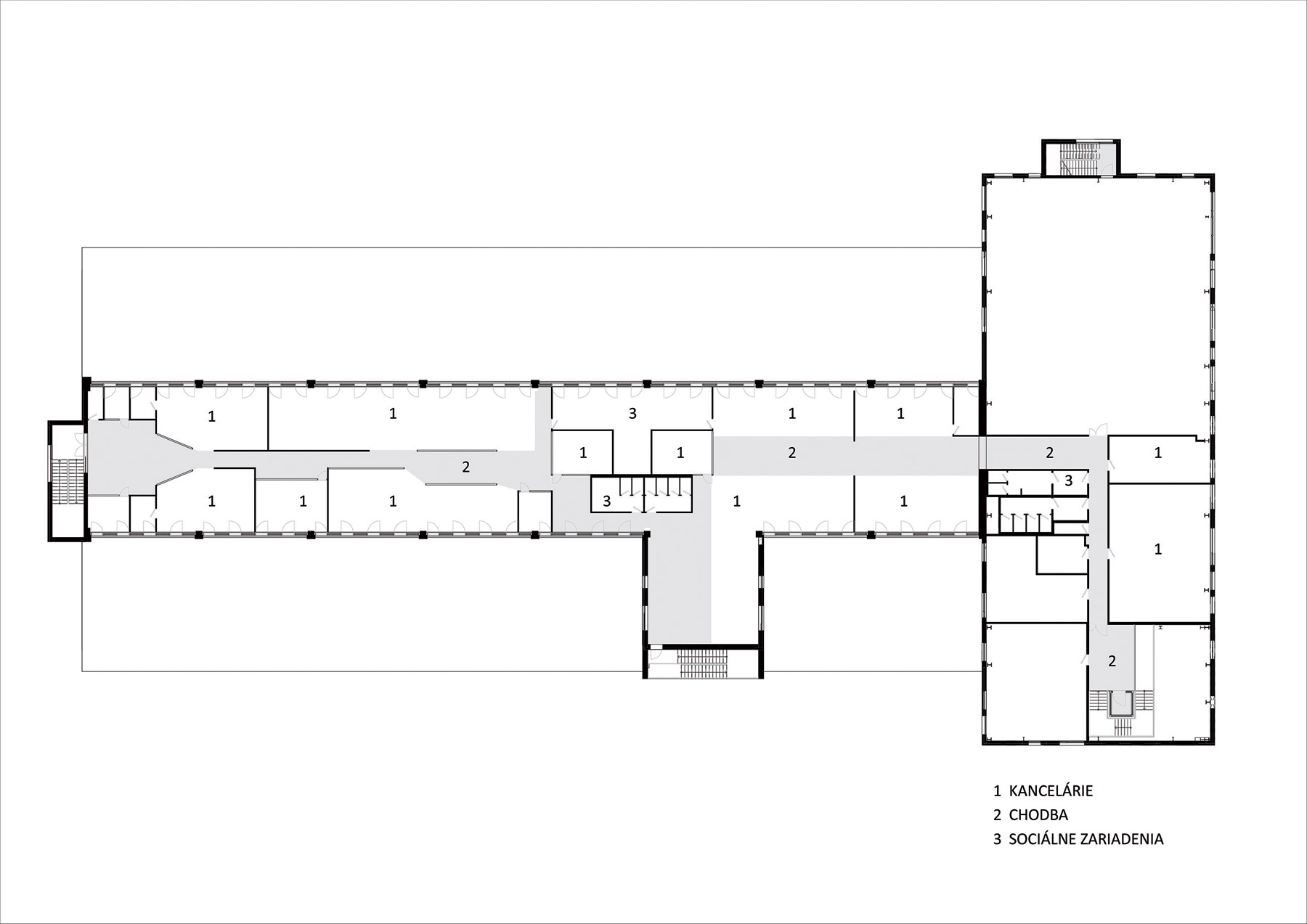
Obnova starej priemyselnej haly na kancelársku budovu
9 / 12
340 Sliacka Podorysy 3