Späť na článok
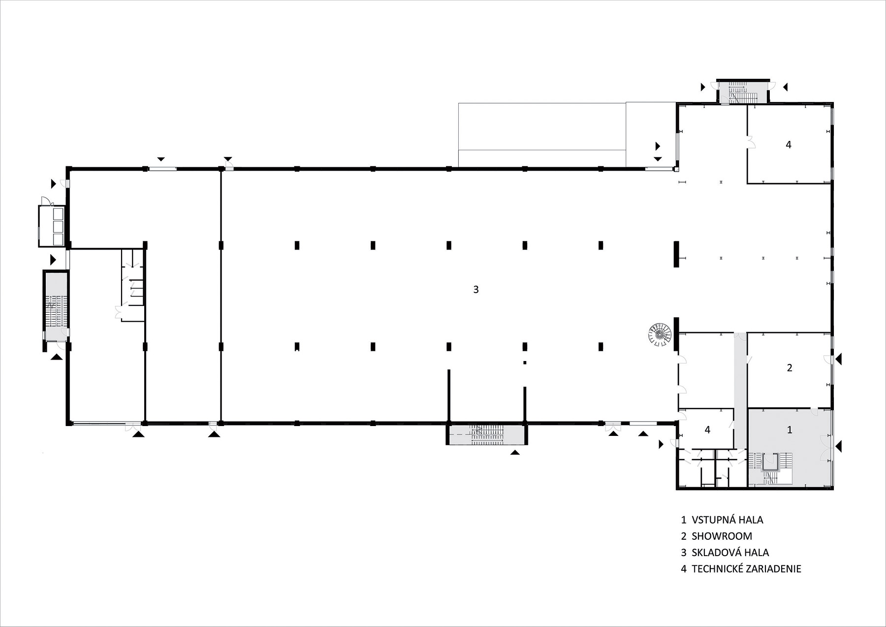
Obnova starej priemyselnej haly na kancelársku budovu
8 / 12
340 Sliacka Podorysy 1