Späť na článok Dostavba areálu MZV
12 / 13
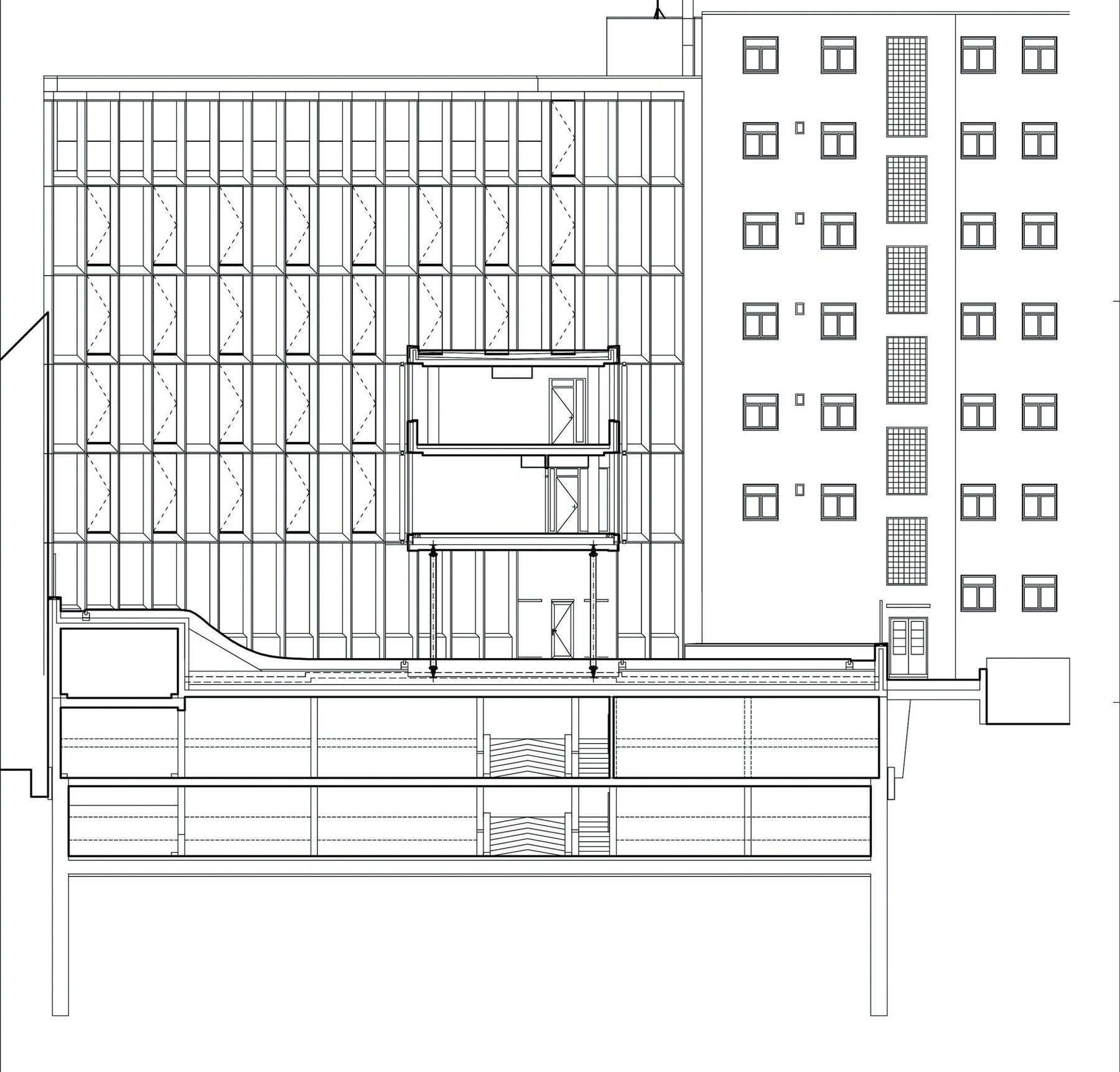
rezopohlad 7 zapad