Späť na článok Bytový dom Miletičova 60
10 / 11
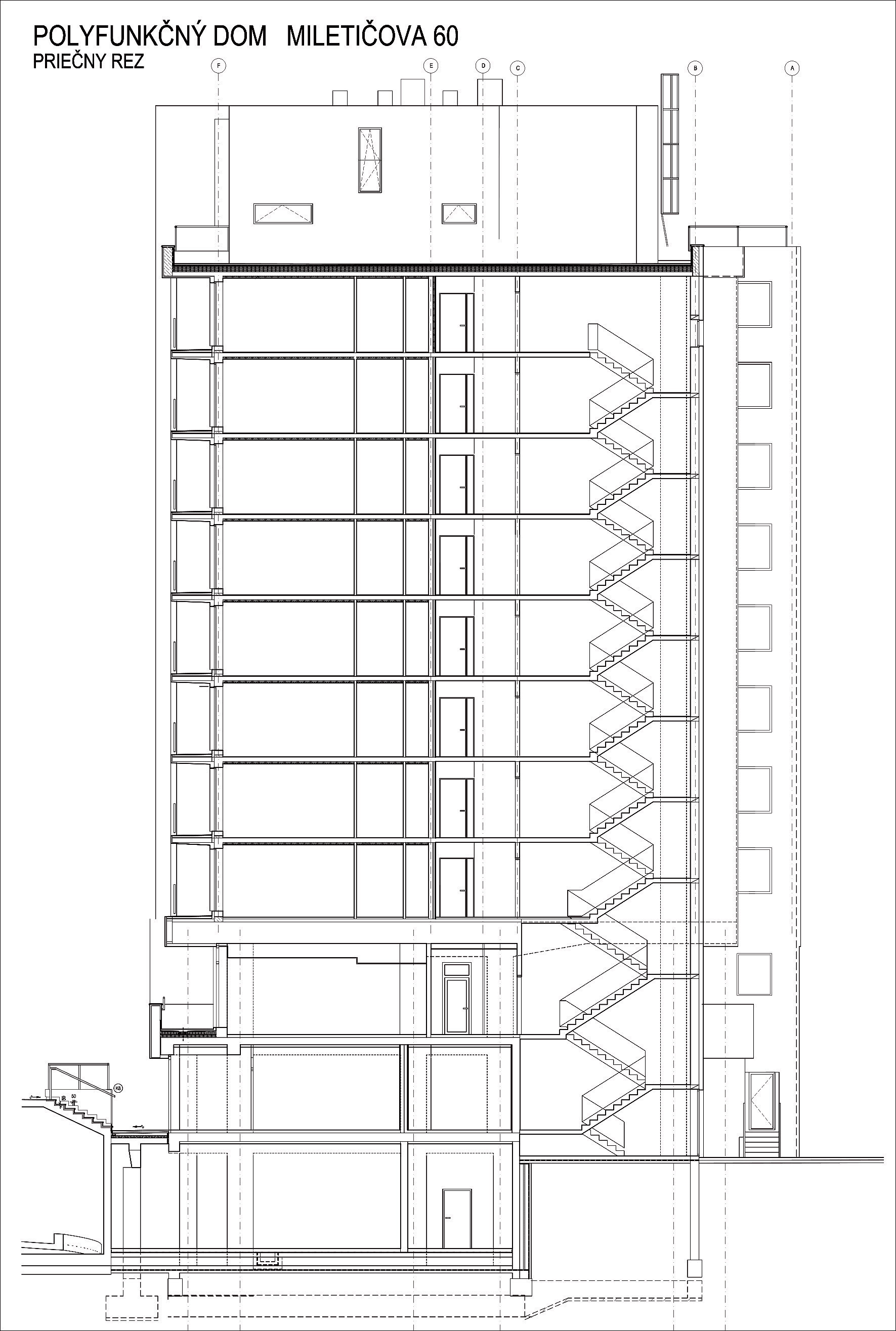
priecny rez