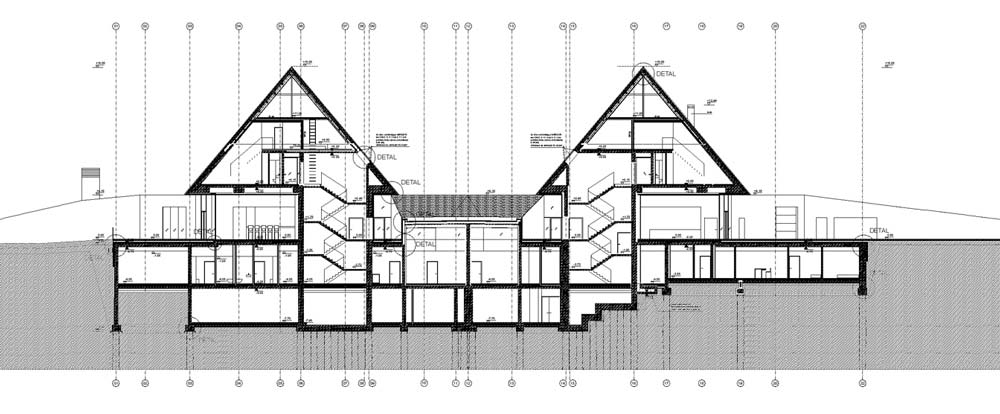
Späť na článok Strecha, ktorá trčí z kopca
11 / 16
11 big image