Späť na článok
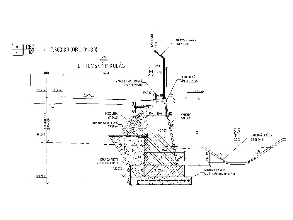
Vystužené zemné konštrukcie na stavbe D1 Dubná Skala – Turany
7 / 13
05 maccaferri big image