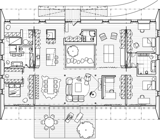
Späť na článok Vila, ktorá ukrýva átrium
6 / 10
podorys 550 big image