Späť na článok
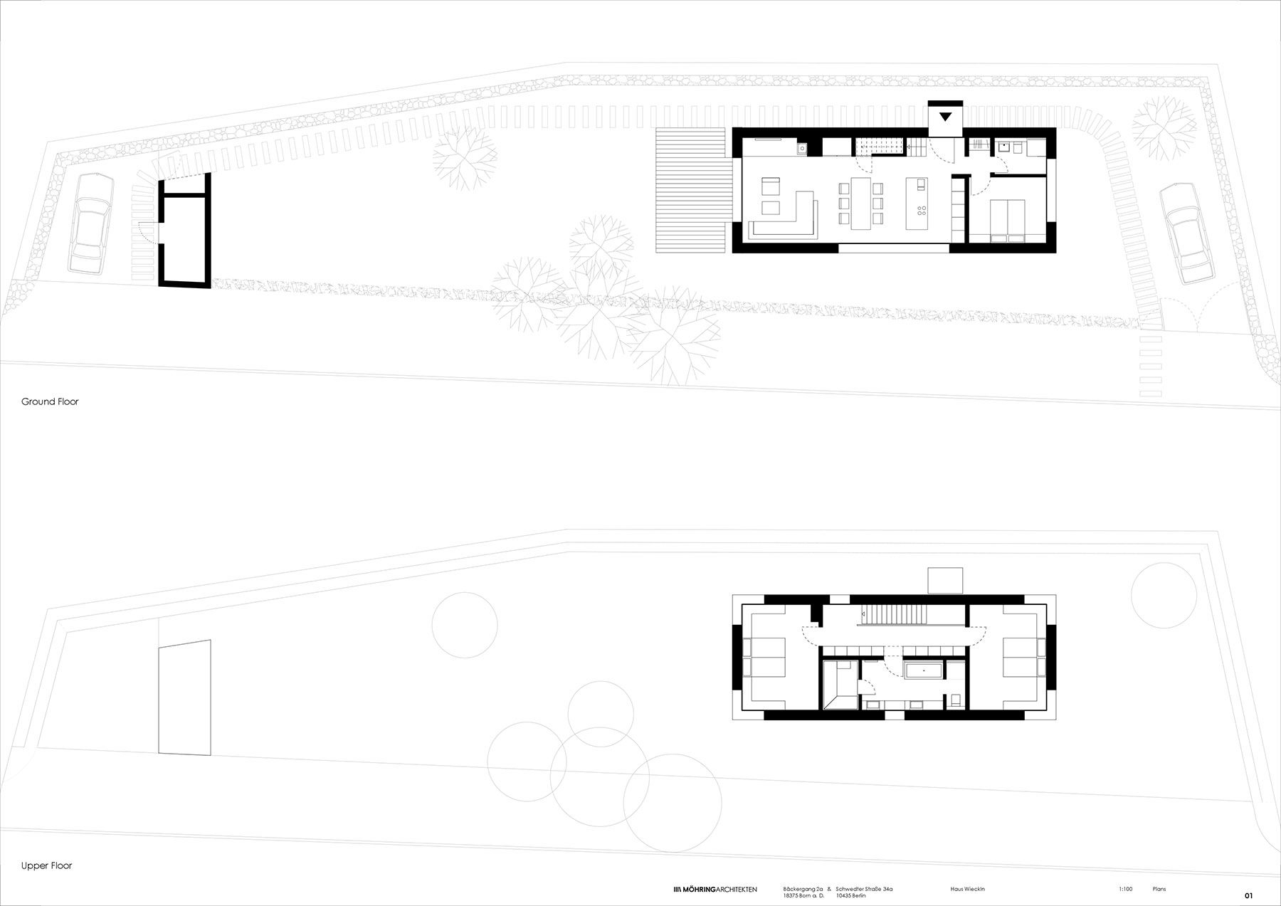
Víkendová stodola bola výzvou – priúzky pozemok nedal veľa možností
29 / 31
58 WieckIn Mohring Architekten Plans