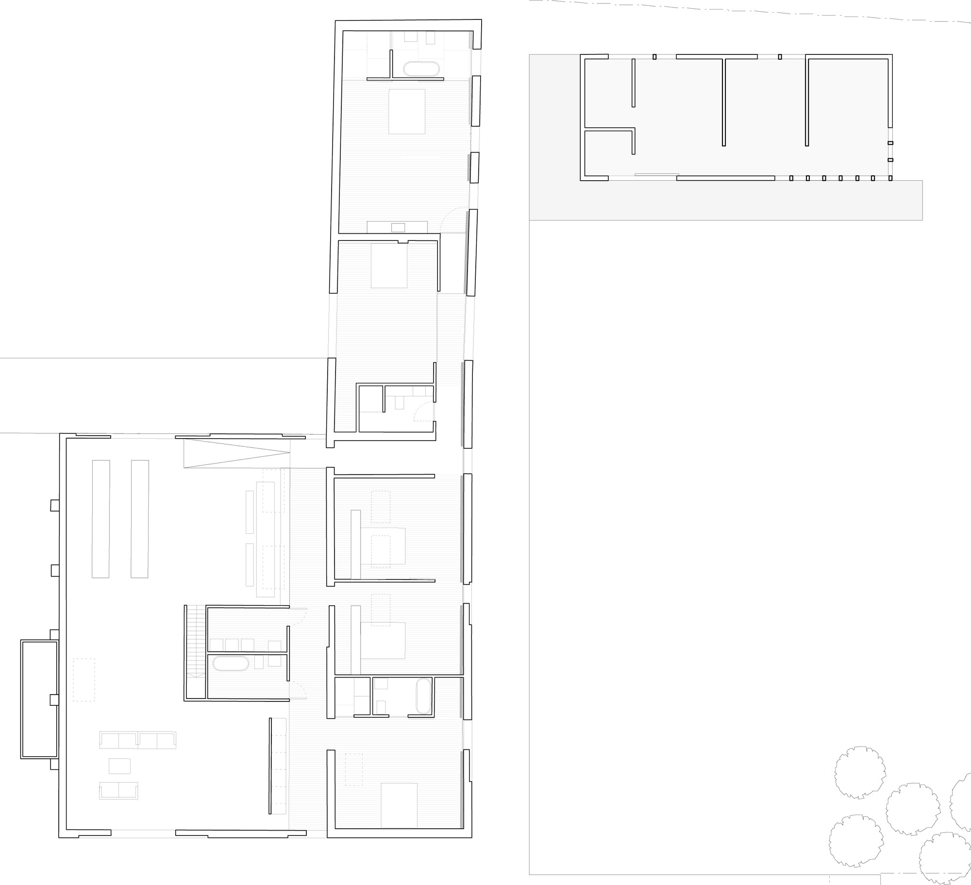
Späť na článok Prestavba starej stodoly na multifunkčné sídlo
14 / 26
plan  4
plan 4
ASB Logo ASB Logo