Späť na článok Revolučný fenomén v stavebníctve – pozitívny dom ako unikátny prefabrikát
15 / 17
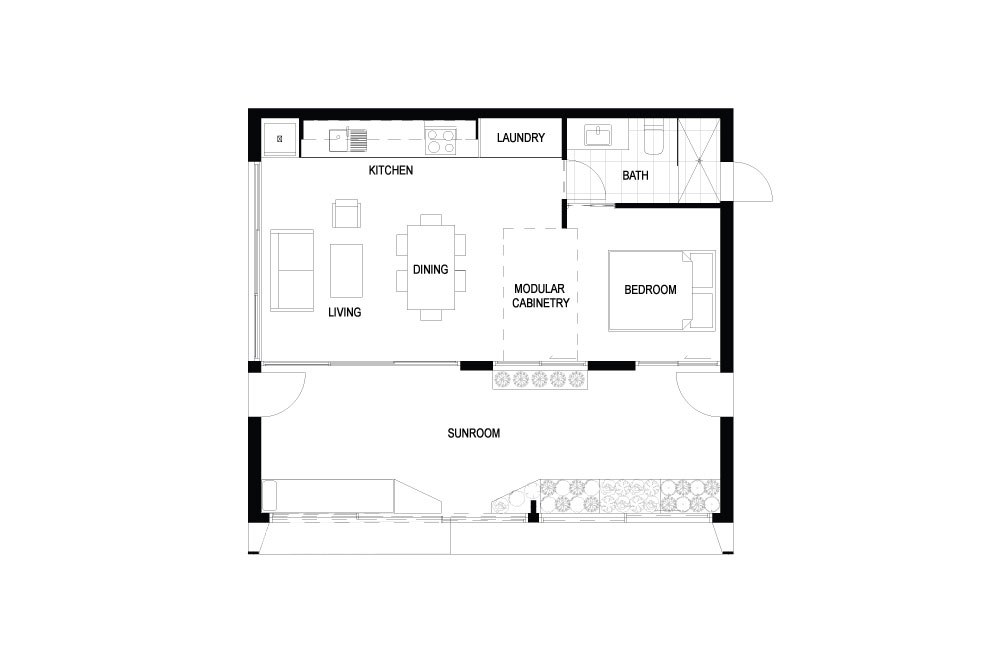
Podorys
Podorys
ASB Logo ASB Logo