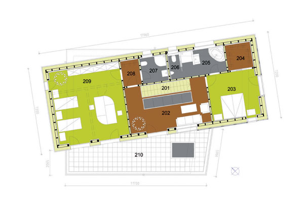
Späť na článok Dom natočený k slnku
3 / 15