Späť na článok Náročná rekonštrukcia historického domu premenila starú jedáleň na charizmatické bývanie pre veľkú rodinu
29 / 30
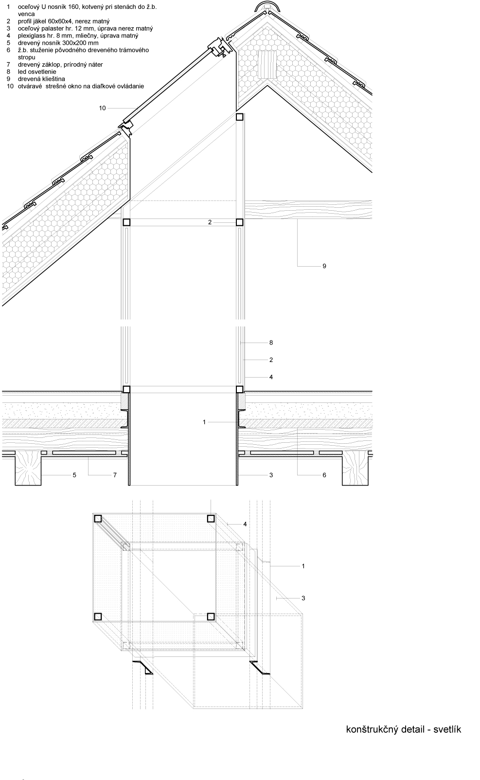
RD Levoca pdf vykresy 7
RD Levoca pdf vykresy 7
ASB Logo ASB Logo