Späť na článok
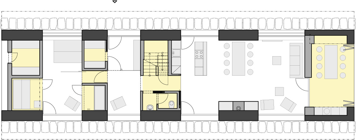
Klasická stodola z moderných materiálov
6 / 26
03 first floor 100 A4