Späť na článok Dom z radovej zástavby dostal novú tvár a praktické „hniezdo“
2 / 26
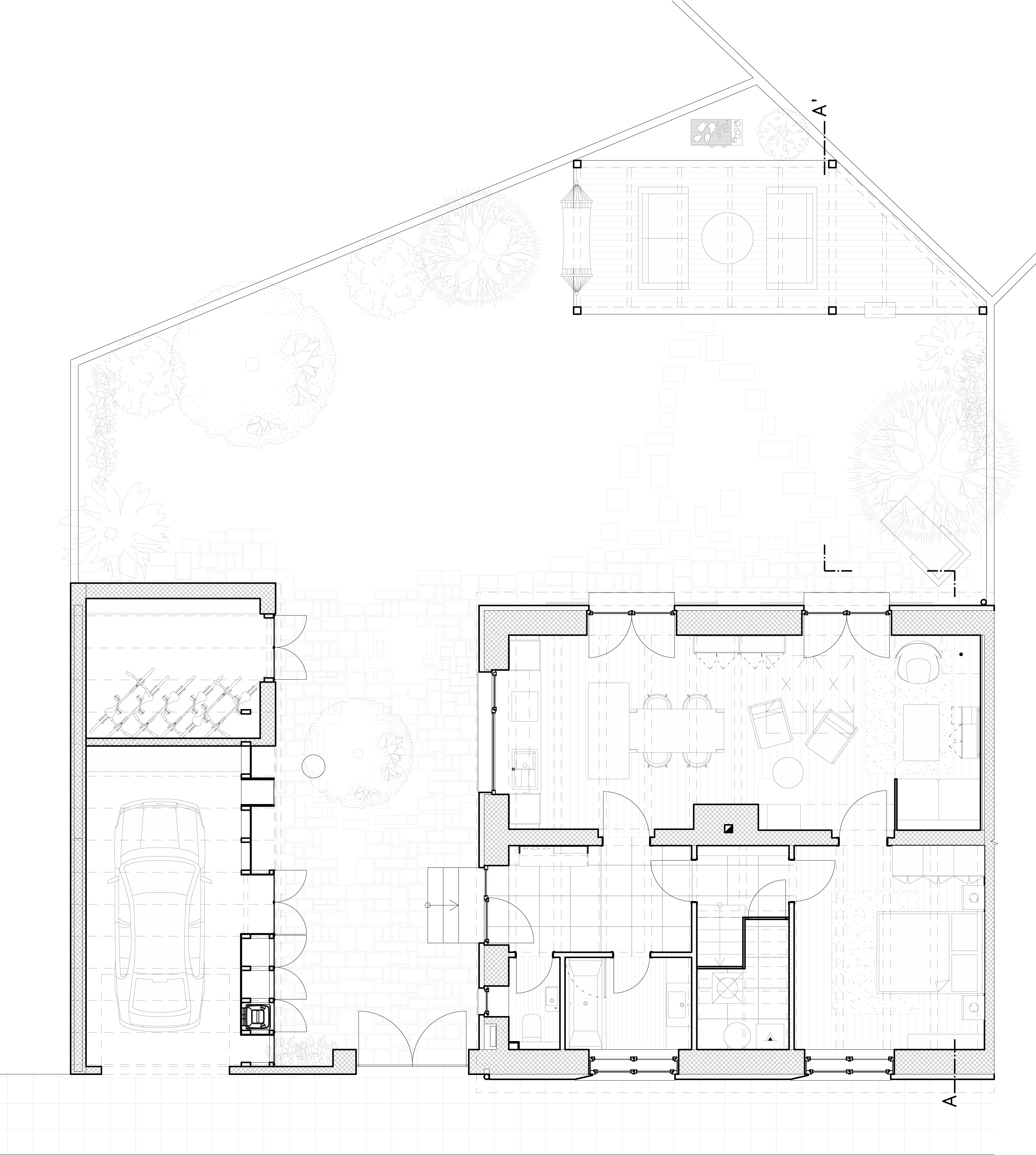
1np
1np
ASB Logo ASB Logo