Späť na článok Dom s dôrazom na detail
24 / 32
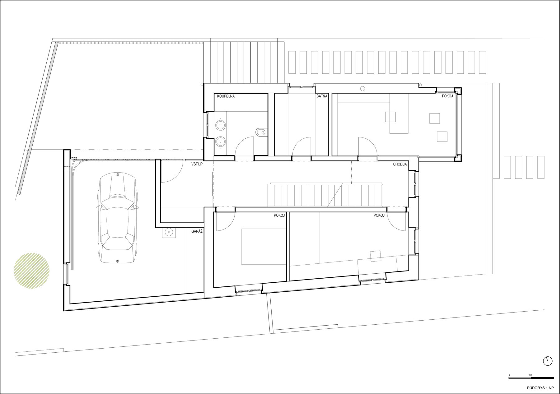
02 ZEBETIN PUDORYS 1