Späť na článok
Trendy v oblasti stavby rodinných domov
4 / 6
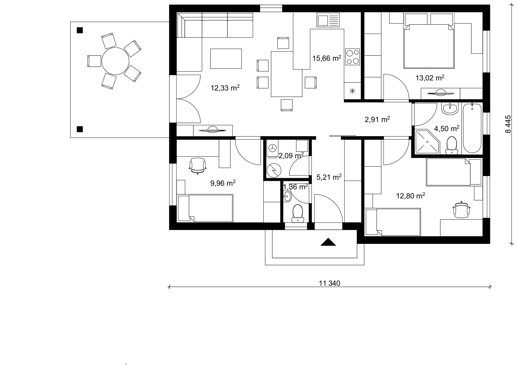
Podorys domu Mondo od Inovadomy