Späť na článok Malý dom s veľkým priestorom
2 / 24
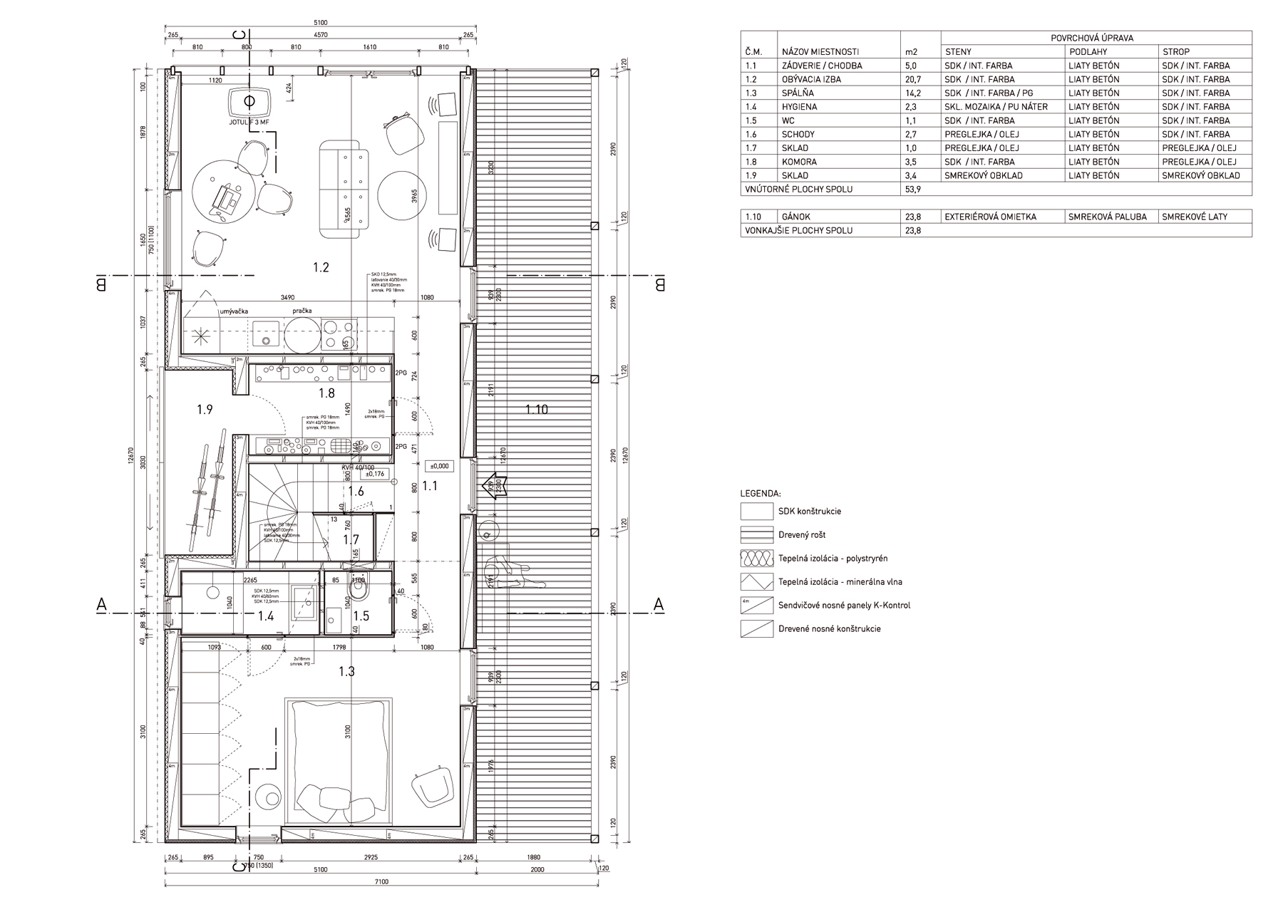
1np